Semi-detached house for sale in Derby DE3, 4 Bedroom

Derby, Derby, UK

Quick Summary

Property Type:
Semi-detached house
Status:
For sale
Price
£ 264,995
Beds:
4
Baths:
2
Recepts:
2
County
Derbyshire
Town
Derby
Outcode
DE3
Location
"Kingsville" at Woodcock Square, Mickleover, Derby DE3
Marketed By:
Barratt Homes - Barratt Homes @Mickleover
Posted
2024-04-19
DE3 Rating:





More Info?
Please contact Barratt Homes - Barratt Homes @Mickleover on 01332 494276 or Request Details

Property Description

The Kingsville is a bright and flexible 3/4 bedroom, 3-storey home. Downstairs is a stylish kitchen with family and dining areas and the fourth bedroom, which can be used as a study. On the first floor you'll find the relaxing lounge area and the spacious master bedroom, with an en suite. Upstairs to the second floor you'll find a double bedroom, a single bedroom and family bathroom.

Rooms


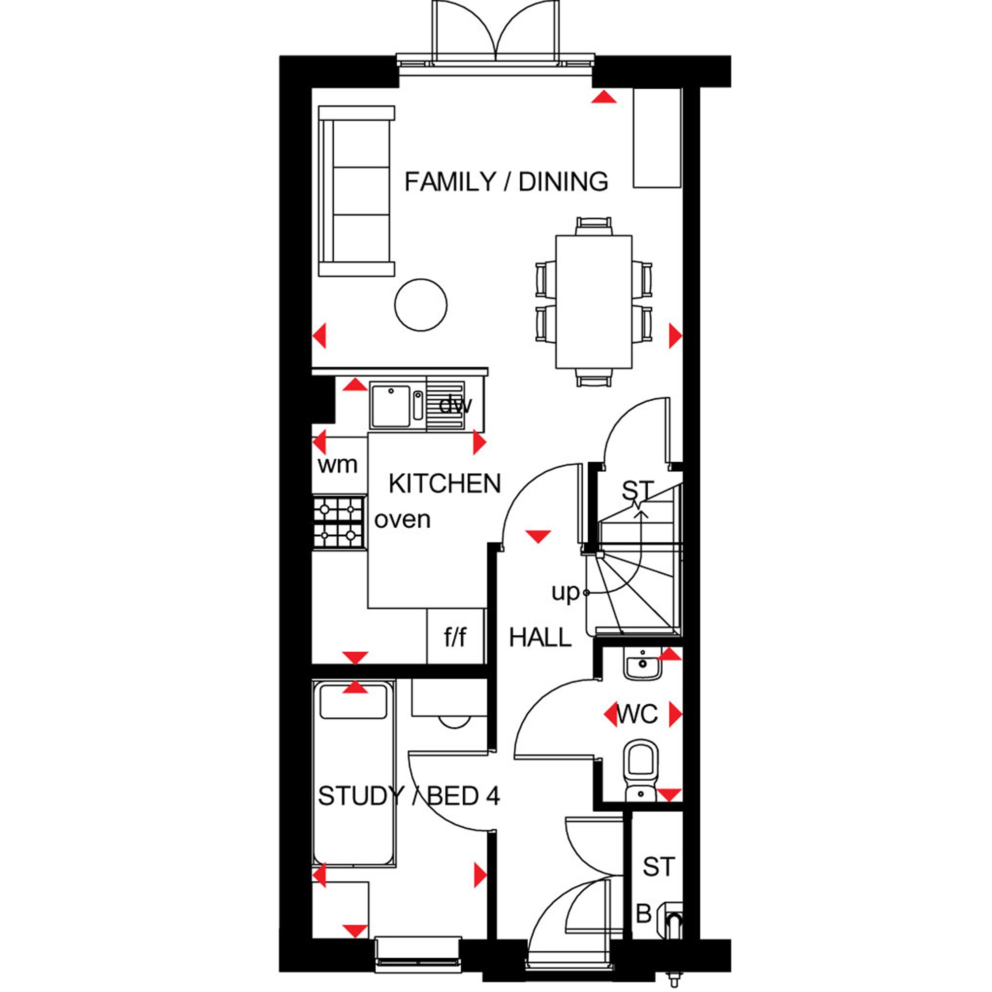
Ground
  • Kitchen (1.87 x 3.06m (6'1'' x 10'0''))
  • Family / Dining (3.94 x 4.82m (12'10'' x 15'9''))
  • Bedroom 4 (Single) (1.87 x 2.75m (6'1'' x 9'0''))
  • Wc (0.86 x 1.65m (2'9'' x 5'4''))
First
  • Lounge (3.94 x 3.63m (12'10'' x 11'10''))
  • Bedroom 1 (Double) (3.94 x 3.04m (12'10'' x 9'11''))
  • Ensuite 1 (1.55 x 2.16m (5'1'' x 7'1''))
Second
  • Bedroom 2 (Double) (3.94 x 3.51m (12'10'' x 11'6''))
  • Bedroom 3 (Single) (3.94 x 3.33m (12'10'' x 10'10''))
  • Bathroom (1.8 x 1.96m (5'10'' x 6'5''))

About Barratt Homes @Mickleover


Fantastic offers available on selected homes including help towards your moving costs, flooring, integrated appliances and more. With our Part Exchange scheme you could be spending Christmas in your brand new home! Visit us or call to find out more.

Situated close to open countryside, Barratt Homes @Mickleover is a new development of 2,3 and 4 bedroom homes that have been designed with your family's needs in mind.

Located in the renowned location of Mickleover, this stunning semi-rural development is just a stone's throw away from Derby, meaning you'll be within easy reach of the shops, bars and restaurants. You'll benefit from great transport links with the A516, A38 and A50 close by and a number of schooling options for children of all ages in the area.
Barratt Homes @Mickleover is the ideal place to call home for first time buyers, working professionals and growing families alike.

Opt in to receive our marketing and to be kept up-to-date with our special offers and new releases!

Leisure


Enjoy spending time in the great outdoors as a family? Then grab your walking boots and head to the Mickleover Circular walk. Is retail therapy is more your thing? Then why not visit Intu Derby? With all the high street stores you know and love plus a number of eateries it is the ideal place to enjoy some well-deserved down time. You can even catch a movie at the Showcase Cinema de Lux.

Education


There are great schooling options for children of all ages.

Shopping


Mickleover high street offers a range of shops, pubs, cafés and restaurants. An M&S Simply Food, Sainsbury's Local and Tesco are all a short drive from your new home.

Transport


By car you are a stone's throw away from the A38, and a short drive from the Derby by pass (the A50), taking you to towards the M1 or the M6.

If you use public transport a bus stop is situated just outside the development taking you towards Derby and Burton-Upon-Trent.

Four Acres is ideally situated between three train stations that are all within 10 miles of your new home.

Health


The Royal Derby Hospital, Mickleover Doctors surgery, Old Forge House Dentist and Boots pharmacy are all within close proximity

Opening Hours


Monday 12.30pm - 5.30pm and Thursday to Sunday 10am - 5.30pm

Directions


Etwall Road, Mickleover, derby, DE3 0BY

Disclaimer


Please note that all images (where used) are for illustrative purposes only.

Floor Plans

Property Location

Marketed by Barratt Homes - Barratt Homes @Mickleover



By submitting this form, you accept our Terms of Use.

Disclaimer Property descriptions and related information displayed on this page are marketing materials provided by Barratt Homes - Barratt Homes @Mickleover. estateagents365.uk does not warrant or accept any responsibility for the accuracy or completeness of the property descriptions or related information provided here and they do not constitute property particulars. Please contact Barratt Homes - Barratt Homes @Mickleover for full details and further information.