Detached house for sale in Huddersfield HD7, 3 Bedroom

Huddersfield, Huddersfield, UK

Quick Summary

Property Type:
Detached house
Status:
For sale
Price
£ 254,995
Beds:
3
Baths:
2
Recepts:
2
County
West Yorkshire
Town
Huddersfield
Outcode
HD7
Location
"Andover" at Grange Road, Golcar, Huddersfield HD7
Marketed By:
Barratt Homes - Weavers Chase
Posted
2019-02-21
HD7 Rating:





More Info?
Please contact Barratt Homes - Weavers Chase on 01484 973992 or Request Details

Property Description

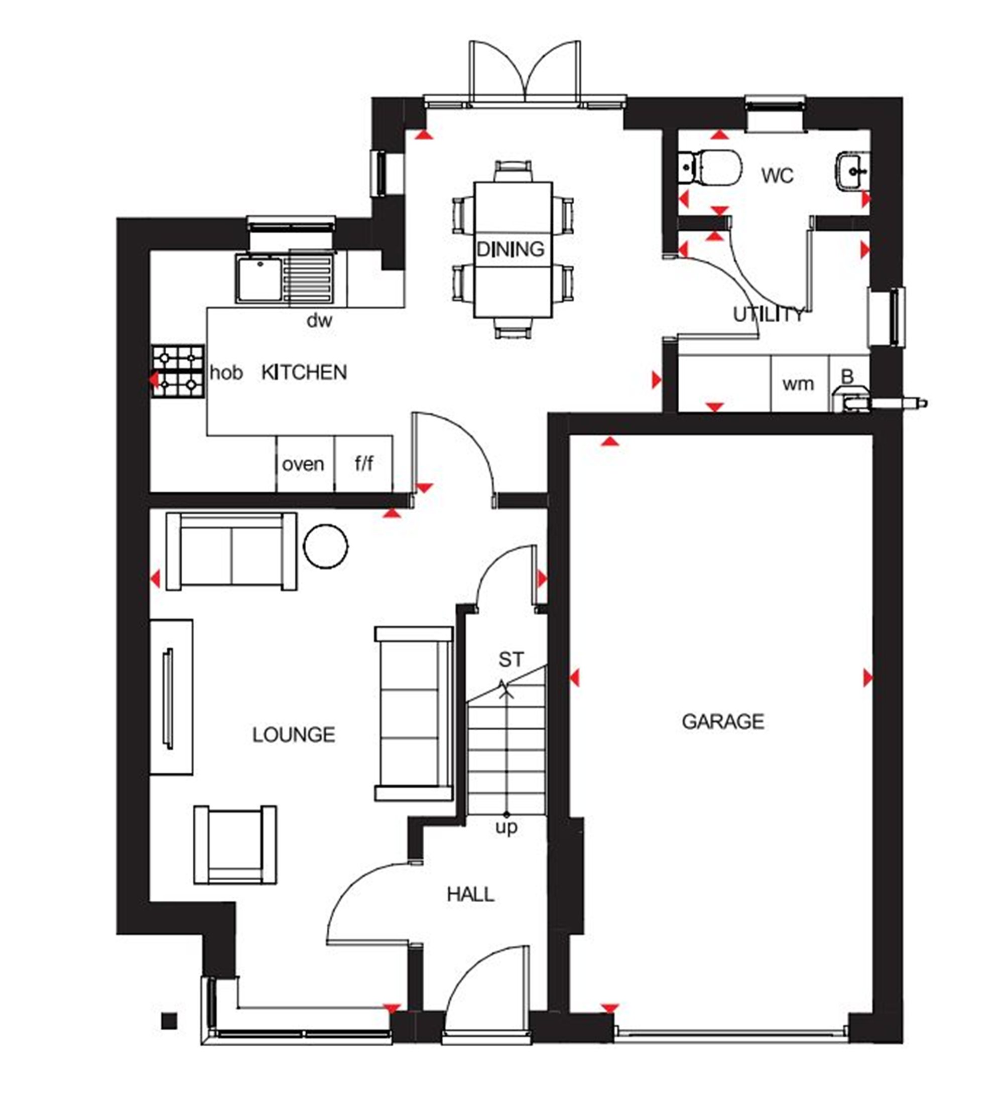
Stylish 3 bedroom family home with a private driveway and integral garage. On the ground floor you will find a spacious lounge and open-plan dining kitchen with french doors leading to the south facing back garden. There is also a downstairs cloakroom and a useful utility room. On the first floor there are 3 bedrooms including master with dressing area and en suite. The family bathroom can also be found on the first floor.

Rooms


Ground
  • Kitchen / Dining (3.99 x 5.32m (13'1'' x 17'5''))
  • Lounge (3.99 x 5.32m (13'1'' x 17'5''))
  • Utility (1.89 x 2m (6'2'' x 6'6''))
  • Wc (0.9 x 2m (2'11'' x 6'6''))
First
  • Bedroom 1 (Double) (3.26 x 3.66m (10'8'' x 12'0''))
  • Dressing (1.75 x 2.11m (5'8'' x 6'11''))
  • Ensuite 1 (1.42 x 2.11m (4'8'' x 6'11''))
  • Bedroom 2 (Double) (3.18 x 3.56m (10'5'' x 11'8''))
  • Bedroom 3 (Single) (2.09 x 3.29m (6'10'' x 10'9''))
  • Bathroom (1.91 x 1.95m (6'3'' x 6'4''))

About Weavers Chase, Golcar


Don't miss out! Our highly anticipated Show Homes are now open. Visit us this weekend; we have the 3 bedroom Maidstone and 4 bedroom Alderney available to view. Book your appointment now.

Enjoy traditional village life on a pleasant hillside setting with picturesque surroundings in Golcar. Weavers Chase is a collection of 3 & 4 bedroom family homes built in stone to reflect the local architecture. Placed in a quiet location just west of Huddersfield, you'll have amenities and transport links right on your doorstep.

Leisure


The Colne Valley has an abundance of walks and close by there is the beautiful Blackmoorfoot reservoir. The Rex cinema is a great place to visit for an evening out. Situated in Elland, this retro picture house shows a small selection of the latest films with its old-fashioned charm. There's also the nearby popular Titanic Spa which is the uk's first Eco-Spa and leading health spa.

Shopping


There is a Co-op within walking distance and for bigger shops, Lidl and Sainsbury's are both accessible by car. In Huddersfield town centre you'll find Marks & Spencer, House of Fraser and many more big names. A little further, Bradford's Broadway Centre and Leeds's Trinity Shopping Centre are both reachable within a short distance by car.

Transport


If you are travelling east, Ainley Top J24 of the M62 is just a 9 minute drive's distance and for journeys west J23 of the M62 is just a 5 minute drive.

Health


Longwood Village Surgery – 0.9 miles
Lindley Dental – 2.1 miles
Huddersfield Royal Infirmary – 2.2 miles

Opening Hours


Open Thursday-Sunday 10.00am to 5.30pm, Monday 12.30pm to 5.30pm

Directions


Type in 'HD7 4QZ' into Sat Nav
Take J24 off the M62
Take the first exit onto the A643 at the roundabout and follow signs towards Rochdale
Continue along the A643 until you reach the roundabout
Take the first exit onto New Hey Road towards Huddersfield
Take the first right onto Longwood Edge Road
Continue along this road and follow the yellow signs to Weavers Chase

Disclaimer


Please note that all images (where used) are for illustrative purposes only.

Floor Plans

Property Location

Marketed by Barratt Homes - Weavers Chase



By submitting this form, you accept our Terms of Use.

Disclaimer Property descriptions and related information displayed on this page are marketing materials provided by Barratt Homes - Weavers Chase. estateagents365.uk does not warrant or accept any responsibility for the accuracy or completeness of the property descriptions or related information provided here and they do not constitute property particulars. Please contact Barratt Homes - Weavers Chase for full details and further information.