Semi-detached house for sale in Leicester LE4, 3 Bedroom

Leicester, Leicester, UK

Quick Summary

Property Type:
Semi-detached house
Status:
For sale
Price
£ 239,950
Beds:
3
County
Leicestershire
Town
Leicester
Outcode
LE4
Location
Off Hallam Fields Road, Birstall, Leicester LE4
Marketed By:
Roy Green Estate Agents
Posted
2024-05-14
LE4 Rating:





More Info?
Please contact Roy Green Estate Agents on 0116 448 8819 or Request Details

Property Description

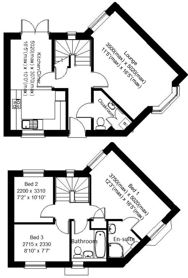
The Exton is a 3 bedroom Semi-Detached house comprising of Lounge, Kitchen, Cloakroom, 3 Bedrooms (en-suite to master) & Family Bathroom. Garden to rear & parking.

Key Features:
Fitted Kitchen with single aeg fan assisted electric oven.
4 burner aeg gas hob with Stainless Steel Canopy Chimney hood.
Single Stainless Steel bowl sink.
Space for Fridge Freezer.
Plumbing and electrics for washing machine.
White Triple Spotlight fitting.
Ceramic flooring to Kitchen only.
Full gas central heating. (or alternative system if gas not available).
White Sanitary ware to Bathroom with co-ordinating wall tiles.
Thermostatic shower in shower cubicle to En-suite & co-ordinating wall tiles. Shaver Socket & White Heated Towel Rail to the Bathroom & En-suite.
BT. Telephone point to Lounge next to TV. Aerial point, and Bed 1.
T.V aerial point in Lounge & Bed 1.
Wiring only for future Intruder Alarm for keypad, control panel and bell box.
Smoke detectors and security locks to all external doors.
Fenced rear garden. Turfing to front and rear gardens (where applicable). N.H.B.C. 10 year warranty.
Carpets from the Jelson selected range.

For more information please contact:
Hallam Fields Show Home
off Loughborough Road
Birstall
Leicester
LE4 3LH

Call the Sales Office on Show Homes open daily 11.00am - 5.00pm

Hallam Fields is an innovative and exciting new development creating a new community which will become part of the popular and thriving suburb of Birstall, Leicestershire.
Designed to create one of the most significant developments in Leicestershire, Hallam Fields at Birstall offers around 50 styles of property ranging from one to six bedroom homes each one designed to complement the other and the existing area of Bristall. With consideration given to local architecture and design detail, Jelson ensures your new home in Hallam Fields is not only modern and stylish but has recognisable local identity.

Floor Plans

Property Location

Marketed by Roy Green Estate Agents


By submitting this form, you accept our Terms of Use.

Disclaimer Property descriptions and related information displayed on this page are marketing materials provided by Roy Green Estate Agents. estateagents365.uk does not warrant or accept any responsibility for the accuracy or completeness of the property descriptions or related information provided here and they do not constitute property particulars. Please contact Roy Green Estate Agents for full details and further information.