End terrace house for sale in Pontefract WF8, 3 Bedroom

Pontefract, Pontefract, UK

Quick Summary

Property Type:
End terrace house
Status:
For sale
Price
£ 184,995
Beds:
3
Baths:
2
Recepts:
2
County
West Yorkshire
Town
Pontefract
Outcode
WF8
Location
"Maidstone" at Cobblers Lane, Pontefract WF8
Marketed By:
Barratt Homes - Ashmeade Park
Posted
2024-04-02
WF8 Rating:





More Info?
Please contact Barratt Homes - Ashmeade Park on 01977 308782 or Request Details

Property Description

£7,000 towards your deposit, £1,000 towards moving costs & stamp duty paid (worth £1,199) when you reserve this weekend. Opening out into garden through French doors, the free-flowing dining kitchen is filled with natural light. Also downstairs, there's a spacious lounge and handy cloakroom. Three bedrooms are upstairs, including the en suite master bed, and a generous family bathroom.

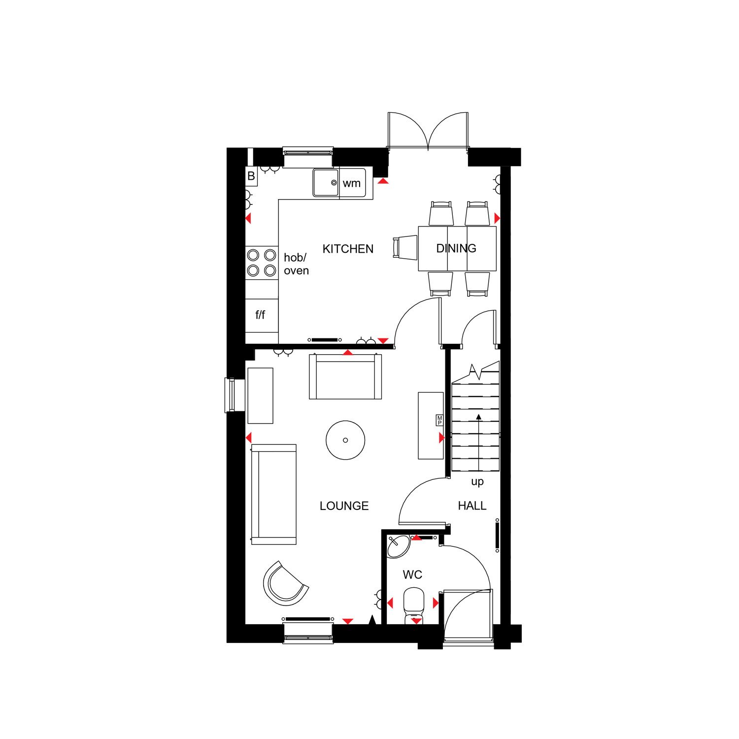
Rooms


G
  • Kitchen / Dining (3202mm x 4598mm (10'6'' x 15'1''))
  • Lounge (4955mm x 3604mm (16'3'' x 11'9''))
  • Wc (932mm x 1620mm (3'0'' x 5'3''))
1
  • Bedroom 1 (Double) (4204mm x 2592mm (13'9'' x 8'6''))
  • Ensuite 1 (1365mm x 2592mm (4'5'' x 8'6''))
  • Bedroom 2 (Double) (3112mm x 2592mm (10'2'' x 8'6''))
  • Bedroom 3 (Single) (2676mm x 1918mm (8'9'' x 6'3''))
  • Bathroom (1702mm x 1918mm (5'7'' x 6'3''))

About Ashmeade Park, Pontefract


Hurry! Our homes at ashmeade park are selling fast. Visit us this weekend to find out how you can buy with just A 5% deposit.
A collection of stylish two, three and four bedroom homes with garages built by a 5 star homebuilder. These homes are situated in an ideal location with great transport links and a range of amenities close by. These homes are situated a short 5 minute drive east of Pontefract’s historic town centre and located within easy reach of Pontefract Monkhill railway station, the A1 and M62 motorways providing easy connections to Wakefield, Leeds and Doncaster.
Register your details today to get updates on exclusive deals, new releases and latest news from our sales office.

Leisure


Ashmeade Park is nearby to a range of traditional pubs, curry houses and fisheries both walking distance and a short drive away. Xscape Leisure Complex is just a twelve minute drive from your new home. You'll find squash, skiing, tennis, snowboarding, horse racing, rugby golf and swimming all within 15 minutes of your new home.

Education


Holy Family & St Michael's Catholic Primary School0.1 miles
Cherry Tree Acaemy 0.1 miles
Pontefract De Lacy Primary School0.5 miles

Carleton Community High School1.6 miles
The King's High School2.1 miles
St Wilfrid's Catholic High School3.9 miles

Shopping


For groceries, four supermarkets are within a 10 minute drive from your new home. Pontefract town centre has range of local and big name shops as well as Junction 32 Designer Outlet and Park Road Retail Park in short driving distance. Meadowhall Shopping Centre is 40 minutes away and Trinity Leeds just a 30 minute drive.

Transport


The site is situated a short 5 minute drive east of Pontefract's historic town centre and is located within easy reach of Pontefract's railway stations, the A1 and M62 motorways providing easy connections to Wakefield, Leeds and Doncaster.

Opening Hours


Open Tuesday-Sunday 10.00am to 5.30pm, Monday 12.30pm to 5.30pm

Directions


From Junction 33 M62
. At roundabout head north on the A162 towards Pontefract
. Keep left for A645
. Turn right at the T junction onto A645 towards Pontefract
. Continue along A645 for 1 mile
. As the speed changes from 40 to 30 prepare to turn left
. Turn left at the Cobbler Pub onto Cobbler's Lane
. Continue down Cobbler's Lane for 0.5 mile

Disclaimer


Please note that all images (where used) are for illustrative purposes only.

Floor Plans

Property Location

Marketed by Barratt Homes - Ashmeade Park



By submitting this form, you accept our Terms of Use.

Disclaimer Property descriptions and related information displayed on this page are marketing materials provided by Barratt Homes - Ashmeade Park. estateagents365.uk does not warrant or accept any responsibility for the accuracy or completeness of the property descriptions or related information provided here and they do not constitute property particulars. Please contact Barratt Homes - Ashmeade Park for full details and further information.