Detached house for sale in Ruthin LL15, 3 Bedroom

Ruthin, Ruthin, UK

Quick Summary

Property Type:
Detached house
Status:
For sale
Price
£ 379,950
Beds:
3
Baths:
3
Recepts:
3
County
Denbighshire
Town
Ruthin
Outcode
LL15
Location
Tan Y Foel, Gellifor, Ruthin LL15
Marketed By:
Williams Estates
Posted
2024-04-30
LL15 Rating:





More Info?
Please contact Williams Estates on 01824 543981 or Request Details

Property Description

If you are looking for a substantial family home ready to move straight in to then look no further. Williams Estates are delighted to introduce to the market this large family house occupying a large plot in the popular village of Gellifor. The property has recently undergone a scheme of improvements including new windows and doors throughout, a new kitchen, new bathrooms and new electrics. Briefly the accommodation comprises entrance porch, dual aspect lounge, large, modern fitted kitchen with dining area, an office which could be utilised as an extra bedroom or additional reception room, downstairs WC, utility, feature landing with sitting area, three bedrooms with en suite and walk in wardrobe to the master and large family bathroom. The property is located in a highly sought after area and is within walking distance of an award winning primary school, local pubs and village amenities, as well as being within close proximity to neighbouring towns Ruthin and Denbigh. To the rear of the property there is a large private garden mainly laid to lawn with a patio area. The rear garden enjoys a private and sunny aspect. There is also a detached double garage. Internal viewing essential. EPC tbc.

Accommodation

Attractive solid wood door opens into:

Entrance Porch (9' 9'' x 6' 1'' (2.97m x 1.85m))

With amtico flooring, power points, double glazed full length windows to front and side elevations and glass doors lead into:

Reception Hall

With stairs off, under stairs storage cupboard, radiator and doors off.

Office/Bedroom Four/Reception Room (9' 9'' x 9' 6'' (2.97m x 2.89m))

With wood effect flooring, coving, radiator, power points, uPVC double glazed window to the front with views and uPVC double glazed double doors lead out to the side of the property.

Lounge (22' 8'' x 12' 6'' (6.90m x 3.81m))

A beautifully presented dual aspect room which is naturally bright, featuring a dual fuel stove with tiled hearth and wooden surround, wall light points, television point, radiator, power points, coving, uPVC double glazed window to the front with views and uPVC double glazed double doors lead out to the rear patio.

Kitchen/Dining (19' 3'' x 10' 6'' (5.86m x 3.20m))

A naturally bright and airy kitchen featuring a range of modern wall, drawer and base units with complimentary wood effect work surfaces over, ceramic one and a half bowl sink with drainer grooves, integrated fridge and freezer, integrated larder unit, integrated dishwasher, tall oven housing unit with grill, above, four ring electric Induction hob with extractor over, tile effect flooring, uPVC double glazed window to the side and rear elevations overlooking the garden. Opening into:

Conservatory (12' 2'' x 9' 6'' (3.71m x 2.89m))

The perfect space for relaxing, with tiled floor, radiator, power points, uPVC double glazed windows, self cleaning glass roof and uPVC double glazed double doors lead out to the rear patio.

Utility Room (12' 5'' x 8' 5'' (3.78m x 2.56m))

With quarry tiled floor, wall and base units, plumbing and space for washing machine, space for tumble dryer, stainless steel sink with drainer, tiled splash backs, power points, radiator and uPVC double glazed door with obscured glass panel leads out to the side of the property.

Downstairs WC

With low flush WC, corner sink unit and uPVC double glazed obscured window to the side.

First Floor Landing

A large open plan landing with spindled balustrade, feature sitting area with stunning views across farmland to the Clwydian Hills, uPVC double glazed window to the rear and and double glazed full length ceiling to floor windows to the front elevation.

Master Bedroom (16' 4'' x 13' 0'' (4.97m x 3.96m))

An excellent size bedroom with ample space for bedroom furniture, radiator, power points and uPVC double glazed window to front elevation.

En Suite

Featuring a three piece white suite comprising double shower enclosure, push button flush WC and inset sink with vanity unit. With tiling to floor with underfloor heating, chrome ladder style towel rail, LED down lights and uPVC double glazed obscured window to rear elevation.

Walk In Wardrobe/Dressing Room

With radiator and Velux roof window.

Bedroom Two (13' 8'' x 9' 8'' (4.16m x 2.94m))

With radiator, power points and uPVC double glazed window to front enjoying views.

Bedroom Three (12' 5'' x 6' 10'' (3.78m x 2.08m))

With radiator, power points and uPVC double glazed window to the rear.

Family Bathroom (12' 4'' x 8' 5'' (3.76m x 2.56m))

A large bathroom featuring a four piece suite comprising dual valve shower enclosure, bath, low flush WC and sink set into mirror fronted cabinet unit. With tiled splash backs, linoleum flooring, loft access hatch, radiator and uPVC double glazed obscured glazed window to the side.

Detached Double Garage (25' 0'' x 19' 0'' (7.61m x 5.79m))

With electric up and over down, personal door to the side, security lighting to exterior, power points and double glazed window to the rear.

Outside

The property is approached by wooden gates and leads into a large driveway which provides ample parking for multiple vehicles. There is a lawned area to the front of the property and access around the side to the rear. To the rear there is a large lawned garden with established shrubs, trees and plants as well as a range of well stocked borders. There is an patio area which would be the perfect space for alfresco dining during the summer months. There is also a shed, a wood store and a greenhouse. The rear is bound by wooden fencing and enjoys a sunny aspect.

Directions

Leave Ruthin on the A494 in the direction of Llanbedr DC and turn left opposite the Griffin Inn. Continue along this road for approximately 2 miles until you reach the village of Gellifor and the property can be found on the right hand side by way of our For Sale board.

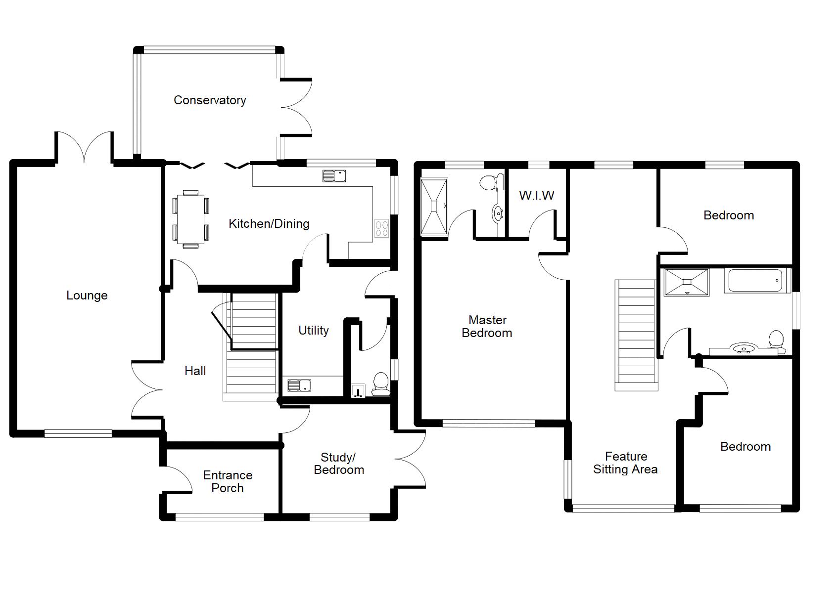
Floor Plans

Property Location

Marketed by Williams Estates



By submitting this form, you accept our Terms of Use.

Disclaimer Property descriptions and related information displayed on this page are marketing materials provided by Williams Estates. estateagents365.uk does not warrant or accept any responsibility for the accuracy or completeness of the property descriptions or related information provided here and they do not constitute property particulars. Please contact Williams Estates for full details and further information.