Detached house for sale in Glasgow G46, 3 Bedroom

Glasgow, Glasgow, UK

Quick Summary

Property Type:
Detached house
Status:
For sale
Price
£ 325,000
Beds:
3
Baths:
2
Recepts:
2
County
Glasgow
Town
Glasgow
Outcode
G46
Location
Ailsa Drive, Giffnock, East Renfrewshire G46
Marketed By:
Countrywide Scotland - Clarkston
Posted
2018-09-08
G46 Rating:





More Info?
Please contact Countrywide Scotland - Clarkston on 0141 376 8793 or Request Details

Property Description

Located within one of Giffnocks most sought after addresses and presented to a high standard throughout, this traditional detached bungalow provides spacious accommodation over two levels and is sure to appeal to a wide range of prospective purchasers.
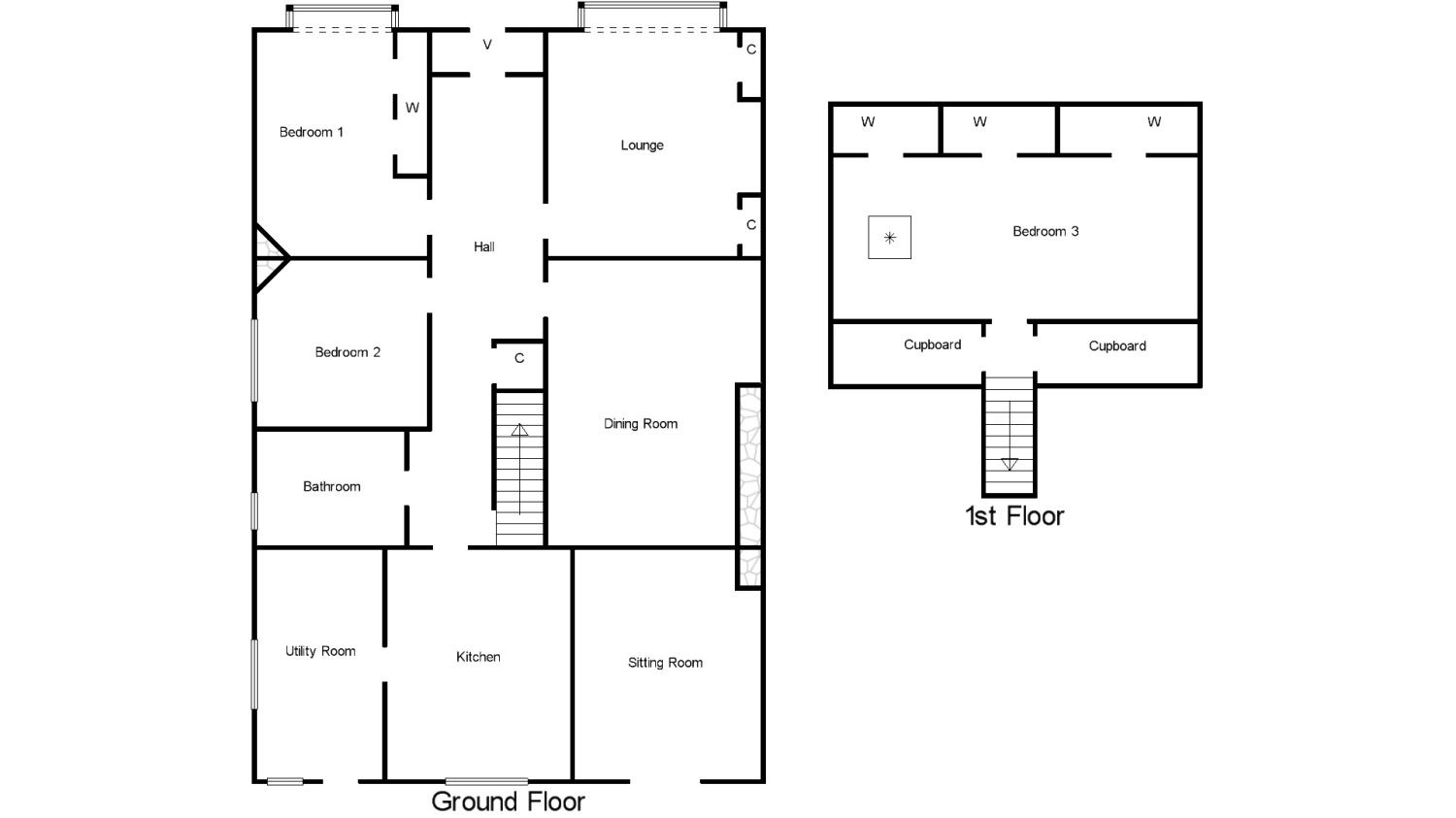
Comprises entrance vestibule, reception hallway with Amtico flooring, formal lounge with limestone feature fireplace, dining room with adjoining sitting room which benefits’ from French door access to the rear gardens, modern style fitted kitchen with a good range of wall and floor standing storage units, large utility room, two double bedrooms and a well appointed three piece shower- room.
Upstairs provides a spacious double bedroom with eaves storage, walk-in wardrobe and additional deep set cupboard which houses the gas boiler.
Externally the home sits within beautifully maintained gardens to the front and rear with feature decked patio and tended lawns, with a good sized mono-bloc driveway giving off street parking for several vehicles.
Giffnock boast access to top performing schools, excellent local and high st shopping facilities, nearby regular rail service, and local sports and recreational facilities including David Lloyd Rouken Glen, Parklands Country Club, numerous Golf Clubs and East Renfrewshire Councils own excellent sports complex at Eastwood Toll, and Rouken Glen Park voted best park in the U.K is also within easy walking distance.
Viewing highly recommended.


Floor Plans

Property Location

Marketed by Countrywide Scotland - Clarkston


By submitting this form, you accept our Terms of Use.

Disclaimer Property descriptions and related information displayed on this page are marketing materials provided by Countrywide Scotland - Clarkston. estateagents365.uk does not warrant or accept any responsibility for the accuracy or completeness of the property descriptions or related information provided here and they do not constitute property particulars. Please contact Countrywide Scotland - Clarkston for full details and further information.