Semi-detached house for sale in Manchester M19, 3 Bedroom

Manchester, Manchester, UK

Quick Summary

Property Type:
Semi-detached house
Status:
For sale
Price
£ 295,000
Beds:
3
Baths:
1
Recepts:
1
County
Greater Manchester
Town
Manchester
Outcode
M19
Location
Lindsay Road, Burnage M19
Marketed By:
Lancashire Properties
Posted
2024-04-25
M19 Rating:





More Info?
Please contact Lancashire Properties on 0161 937 5496 or Request Details

Property Description

Description

Lancashire Properties are delighted to present this Semi detach three good size bedroom family house situated between main Kingsway and Stockport Road, Manchester, M19. Located within the heart of Burnage, it's excellent location benefits from being close to all amenities with a Tesco Metro, as well as take-ways and restaurants open till late on Main A6 within a few minutes walk. Centrally located with easy access to schools such Acacias Community Primary School, Cringle Brook Primary School, Alma Park Primary School etc all within easy walking distance. There is an excellent commute network with frequent buses on Kingsway as well as Stockport Road linking towards Manchester and stockport City Centres.

The property briefly comprises of an entrance hall with a large reception room and kitchen on the ground floor, whereas three good size bedrooms and a family bathroom on the first floor. It is a recently renovated semi-detached house with brand new carpets, window blinds, paint work, kitchen & bathroom units, electric & plumbing system. Benefiting from spacious rooms, gas central heating & electric and is fully uPVC double glazed. Modern bathroom design with beautiful white floor tiles contrasting with grey wall tiles which has fittings including a WC, Wash Basin and a bathtub fitted with a shower head. Kitchen includes grey floor tiles, and brand new wall & base units with work top over incorporating a bowl sink with mixer tap and a gas cooker alongside an extractor. Externally there is a rear yard to enjoy the sunny summer as well as a front drive space for off-road parking.

Ideal property for a family looking to buy their first home close to local schools and amenities.

Don't miss this opportunity! Call now to arrange a viewing!

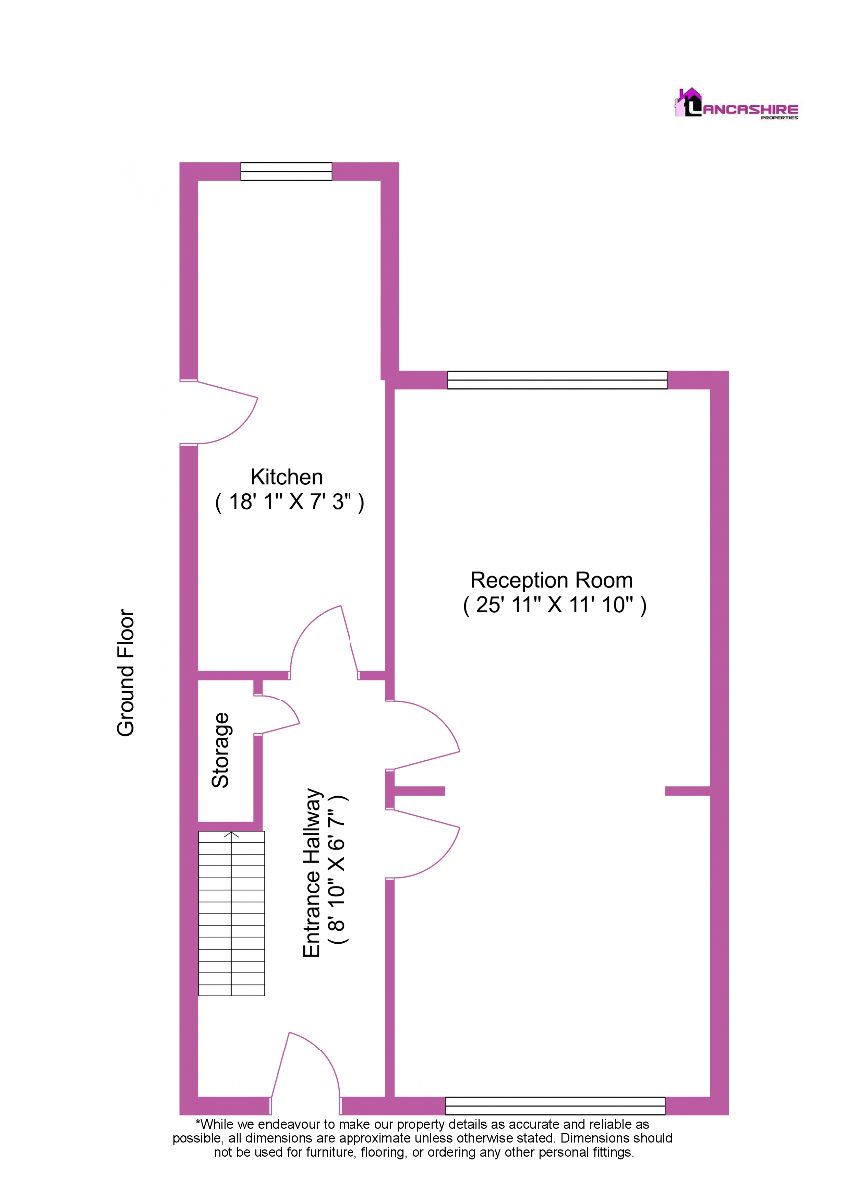
Dimensions:

Entrance Hallway ( 8' 10" X 6' 7" )
Ceiling light point. Carpeted floor. Heating radiator. Access to Reception Room, Kitchen and First Floor Landing.

Reception Room ( 25' 11'' X 11' 10'' )
Double glazed window to the front and rear aspect. Ceiling light point. Carpeted floor. Power points. Heating radiator.

Kitchen ( 18' 1'' X 7' 3")
Double glazed window to the rear aspect. Ceiling light point. Tiled Floor. Fitted is a range of wall and base units with work top over, incorporating a bowl sink with drainer unit and mixer tap. Space for appliances. Power points. Access to the rear yard.

First Floor Landing ( 8' 2'' X 7' 7'' )
Access to the bedrooms, and bathroom. Ceiling light point. Carpeted floor.

Master Bedroom ( 14' 1'' X 11' 10'' )
Double glazed window to the front aspect. Ceiling point. Carpeted floor. Power points. Heating radiator.

Bedroom 2 ( 12' 6'' X 10' 2" )
Double glazed window to the rear aspect. Ceiling point. Carpeted floor. Power points. Heating radiator.

Bedroom 3 ( 9' 6'' X 8' 6" )
Double glazed window to the rear aspect. Ceiling point. Carpeted floor. Power points. Heating radiator.

Bathroom ( 6' 7'' X 6' 7" )
Double glazed window to the front aspect. WC. Wash Basin. Bathtub fitted with a shower head. Ceiling Light point.

*Please note: All dimensions are maximum unless otherwise stated. Dimensions should not be used for furniture, flooring, or ordering any other personal fittings.

Notice:
The mention of any appliances and/or services within these sales particulars does not imply they are in full and efficient working order.
Please note that all measurements are approximate and should not be relied upon if considering carpets, curtains, along with any other fixtures and fittings.
While we endeavour to make our property details accurate and reliable, if there is any point, which is of particular interest to you, please contact the office and we will be pleased to check the information.

Floor Plans

Property Location

Marketed by Lancashire Properties



By submitting this form, you accept our Terms of Use.

Disclaimer Property descriptions and related information displayed on this page are marketing materials provided by Lancashire Properties. estateagents365.uk does not warrant or accept any responsibility for the accuracy or completeness of the property descriptions or related information provided here and they do not constitute property particulars. Please contact Lancashire Properties for full details and further information.