Semi-detached house for sale in Leicester LE6, 3 Bedroom

Leicester, Leicester, UK

Quick Summary

Property Type:
Semi-detached house
Status:
For sale
Price
£ 215,000
Beds:
3
Baths:
1
Recepts:
2
County
Leicestershire
Town
Leicester
Outcode
LE6
Location
Bell Close, Ratby, Leicester LE6
Marketed By:
Newton Fallowell - Leicester Forest East
Posted
2024-04-21
LE6 Rating:





More Info?
Please contact Newton Fallowell - Leicester Forest East on 0116 484 9751 or Request Details

Property Description

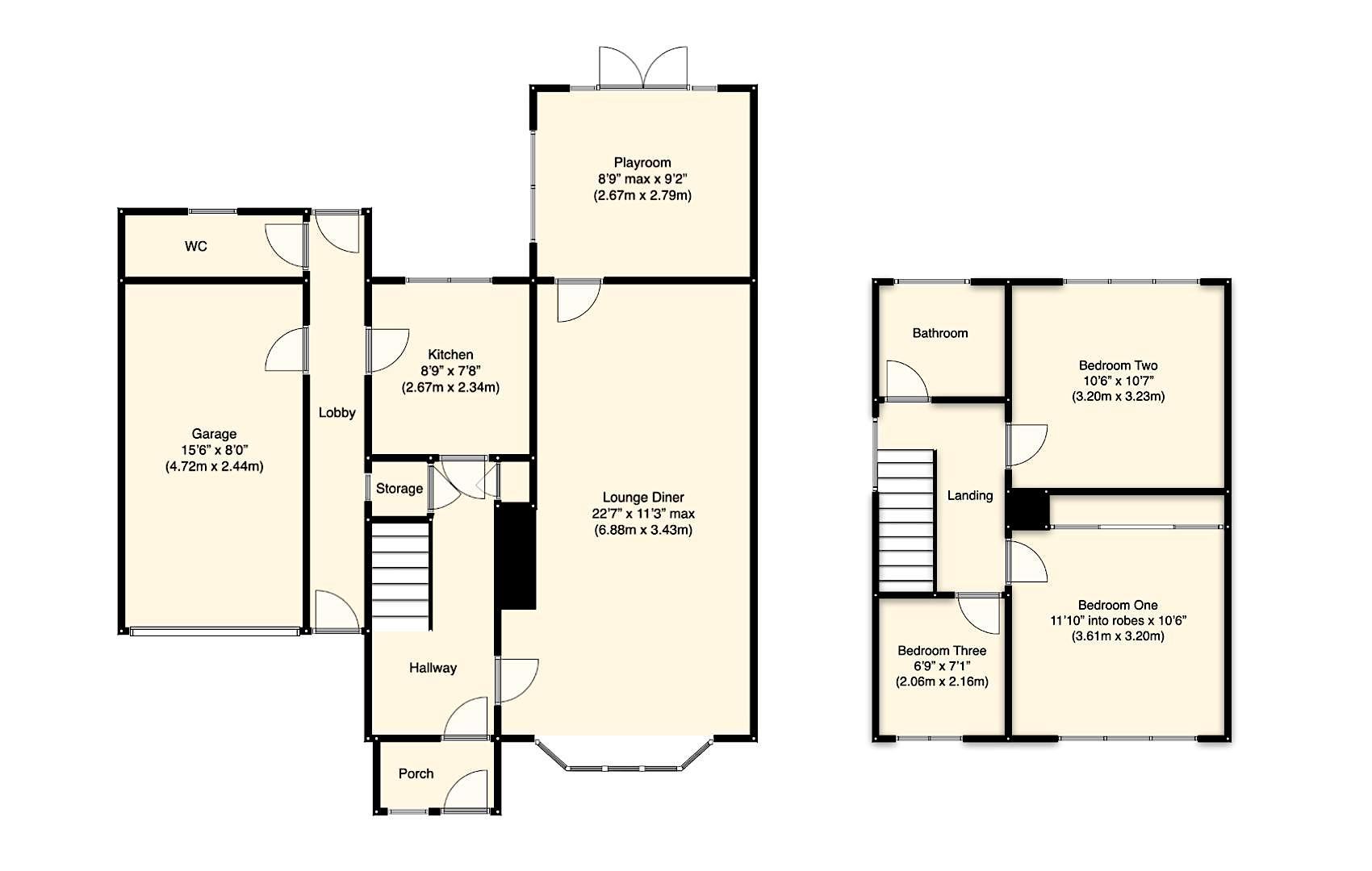
Situated in the highly sought after village of Ratby with an excellent range of local facilities and easy access to major road networks, lies this extended traditional semi-detached family home offered to the market with no upward chain. An ideal home for first time buyers or growing families, the gas centrally heated and double glazed accommodation includes an entrance porch and hallway, lounge diner, playroom/snug, modern kitchen and downstairs WC. Upstairs you will find three bedrooms and bathroom, all found within a pleasant plot which allows for off street parking and a garage with a private rear garden. An early viewing is strongly recommended to avoid disappointment. EPC C.

Accommodation

A front entrance door opens into the;

Entrance Porch

Offering plenty of space for coats and shoes, the useful entrance porch offers a window to the front and a door leading to the;

Entrance Hallway

A welcoming entrance hallway featuring a staircase rising to the first floor, central heating radiator with decorative cover, useful storage cupboard, under stairs storage cupboard with gas meter and light. With a doors to the kitchen and to the;

Lounge Diner (6.88m x 3.43m max (22'7" x 11'3" max))

Affording space for formal dining and comfortable sitting, the refreshed lounge diner offers a bay window to the front elevation. With two central heating radiators, carpet flooring, ceiling coving, electric log burner with surround and door leading to the;

Playroom/Office (2.67m max x 2.79m (8'9" max x 9'2"))

Created by an extension to the rear, the additional downstairs reception space is ideal for use as a playroom, office, snug or dining room. With a window to the side, wood effect flooring, french doors opening out into the garden and central heating radiator.

Kitchen (2.67m x 2.34m (8'9" x 7'8"))

Enjoying views of the garden through a double glazed window, the kitchen is fitted with a modern range of wall mounted and base gloss fronted units with complementary solid wood work surfaces over and brick effect tiled surrounds. Features include a built in double electric oven, inset bowl with mixer tap, integrated fridge and dishwasher, wall mounted TV and a four ring gas hob with extractor hood above. With spotlighting, and a door leading to the;

Side Lobby

Presented with quarry tilling, there are doors to both the front and rear and giving access to the downstairs WC and the;

Garage (4.72m x 2.44m (15'6" x 8'0"))

With a new felted roof with guarantee, light, power and an up and over front door. There is also space for appliances.

Downstairs Wc

Fitted with a two piece suite comprising a low level WC and wash hand basin, with an obscure window to the side, quarry tiling and a heater.

First Floor Landing

Stairs rise to the first floor landing which gives access to three bedrooms and bathroom. With a window to the side, newly fitted carpet and hatch to the partially boarded loft which houses the central heating Vaillant combination boiler. There is also a loft ladder.

Bedroom One (3.61m into robes x 3.20m (11'10" into robes x 10'6)

A double room featuring built in wardrobes with sliding doors and drawers, new fitted carpet flooring, central heating radiator and a window overlooking the front elevation.

Bedroom Two (3.20m x 3.23m (10'6" x 10'7"))

A second double room offering a window to the rear, central heating radiator, feature wall and wood effect flooring.

Bedroom Three (2.06m x 2.16m (6'9" x 7'1"))

A neutrally decorated third bedroom with a window to the front, central heating radiator and newly fitted carpet flooring.

Family Bathroom (1.40m x 2.08m (4'7" x 6'10"))

Fitted with a contemporary three piece suite comprising a Jacuzzi bath with shower over, hand basin and WC, all with complementary tiling. With spotlighting and an obscure window to the rear aspect.

Outside

The property occupies a cul-de-sac position perfect for families, with a driveway providing off street parking for 2 cars and leading to the garage. To the rear is a shaped patio area that has steps leading up to the lawn. With fencing to boundaries, further seating areas and a range of plants and shrubs to borders.

To Find The Property

From our office on Hinckley Road in Leicester Forest East, head east along Hinckley Road. At the Braunstone crossroad traffic lights, turn left onto Ratby Lane and proceed along. Take the first exit at the roundabout and continue into Kirby Muxloe. Take the second exit at the next roundabout and continue straight. As you approach the village of Ratby, Ratby Lane becomes Station Road. Take an eventual right turning onto Danehill. Turn right onto Bell Close where the property can be found.

Tenure

Freehold with vacant possession upon completion.

Council Information

Hinckley & Bosworth Borough Council, Regent Road, Hinckley, Leics (Tel: Tax Band C. Please be advised that when a property is sold, local authorities reserve the right to re-calculate the council tax band.

Viewing Arrangements

Viewings are strictly by appointment only. Please contact Zak, Tom or Tabitha on or you can send an email to .

Money Laundering

In line with current money laundering regulations, prospective buyers will be asked to provide us with photo I.D. (e.G. Passport, driving licence, bus pass etc) and proof of address (e.G. Current utility bill, bank statement etc). We ask for your cooperation in this matter as this information will be required before a sale can be agreed.

Agents Note

These particulars, whilst believed to be accurate are set out as a general outline only for guidance and do not constitute any part of an offer or contract. Details are given without any responsibility, and any intending purchasers, lessees or third parties should not rely on them as statements of representation of fact, but must satisfy themselves by inspection or otherwise as to their accuracy. All photographs, measurements, floor plans and distances referred to are given as a guide only and should not be relied upon for the purchase of carpets or any other fixtures or fittings. All services and appliances have not and will not be tested by Newton Fallowell. Lease details, service ground rent (where applicable) are given as a guide only and should be checked and confirmed by your solicitor prior to exchange of contracts. No person in this firms employment has the authority to make or give any representation or warranty in respect of the property. We retain the copyright in all advertising material used to market this Property.

Thinking Of Selling Your Home?

If you have a house to sell then we would love to provide you with a free no obligation valuation.

Floor Plans

Property Location

Marketed by Newton Fallowell - Leicester Forest East



By submitting this form, you accept our Terms of Use.

Disclaimer Property descriptions and related information displayed on this page are marketing materials provided by Newton Fallowell - Leicester Forest East. estateagents365.uk does not warrant or accept any responsibility for the accuracy or completeness of the property descriptions or related information provided here and they do not constitute property particulars. Please contact Newton Fallowell - Leicester Forest East for full details and further information.