Semi-detached house for sale in Leicester LE3, 3 Bedroom

Leicester, Leicester, UK

Quick Summary

Property Type:
Semi-detached house
Status:
For sale
Price
£ 159,950
Beds:
3
Baths:
2
Recepts:
2
County
Leicestershire
Town
Leicester
Outcode
LE3
Location
New Parks Boulevard, Leicester LE3
Marketed By:
Newton Fallowell - Leicester Forest East
Posted
2024-04-21
LE3 Rating:





More Info?
Please contact Newton Fallowell - Leicester Forest East on 0116 484 9751 or Request Details

Property Description

Boasting a downstairs shower room, this three bedroom semi detached home would make a fantastic first purchase or family home situated within close proximity to major road links, Glenfield Hospital and Beaumont Leys Shopping. The double glazed and gas centrally heated accommodation includes an entrance hall, lounge, dining room, kitchen, rear lobby ideal for storage and ground floor shower room, with the first floor offering three bedrooms and bathroom. The plot features parking to the front with a lawned garden at the rear. An early viewing is strongly recommended to avoid disappointment.

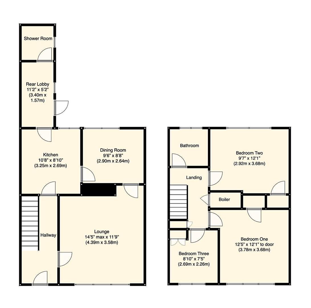
Accommodation

Front entrance door opens into the;

Entrance Hallway

Giving access to the lounge and kitchen, the entrance hallway is presented with wood effect laminate flooring and offers a staircase rising to the first floor, useful built in storage cupboard, central heating radiator and door to the;

Lounge (4.39m max x 3.58m (14'5" max x 11'9"))

Positioned around a feature gas fireplace with surround, the primary reception space offers a window overlooking the front elevation. With wood effect laminate flooring, central heating radiator, dado rail and door to the;

Dining Room (2.90m x 2.64m (9'6" x 8'8"))

Ideal for formal dining and enjoying views of the garden, the second reception room offers tiled flooring, dado rail and central heating radiator.

Kitchen (3.25m x 2.69m (10'8" x 8'10"))

Featuring a window to the rear elevation, the kitchen is fitted with a range of wall mounted and base units with complementary work surfaces over and tiled surrounds. Features include a built in oven with hob over and extractor hood above, stainless steel sink and drainer with mixer tap, plumbing for washing machine and space for fridge freezer. With tiled flooring and a door to the;

Rear Lobby (3.40m x 1.57m (11'2" x 5'2"))

Providing useful storage space, there is a side access door to the garden, central heating radiator, tiled flooring, side elevation window and door to the;

Shower Room (1.75m x 1.57m (5'9" x 5'2"))

Fitted with a three piece suite comprising a corner shower enclosure, WC and wash hand basin with storage beneath. Complemented with tiled surrounds, there is ceramic tiled flooring, heated towel rail and an obscure window to the side elevation.

First Floor Landing

Stairs rise to the first floor landing which gives access to three bedrooms and bathroom. With two built in storage cupboards (one of which houses the central heating boiler) and access to the loft space.

Bedroom One (3.78m x 3.68m to door (12'5" x 12'1" to door))

A double room offering a window to the front elevation, with a central heating radiator, useful built in storage cupboard and wood effect laminate flooring.

Bedroom Two (2.92m x 3.68m (9'7" x 12'1"))

A second double room offering a window to the rear elevation, with a built in cupboard, central heating radiator and laminate flooring.

Bedroom Three (2.69m x 2.26m (8'10" x 7'5"))

A third bedroom affording ample space for a single bed, with a window overlooking the front elevation, central heating radiator, built in storage and wood effect flooring.

Bathroom (1.63m x 1.73m (5'4" x 5'8"))

Fitted with a three piece suite comprising a bath tub with shower over, pedestal wash hand basin with mixer tap and WC, complemented with tiled surrounds. Having a central heating radiator and an obscure window to the rear elevation.

Outside

The plot offers a low maintenance driveway providing off road parking with gated access to the side leading to a mainly laid to lawn garden with patio area and fencing and hedging to boundaries.

To Find The Property

From our office on Hinckley Road in Leicester Forest East, head east along Hinckley Road. At the roundabout take the first exit onto New Parks Road. At the next roundabout take the second exit and continue along. At the next roundabout, take the second exit and continue along New Parks Road. At the traffic lights, turn right onto Aikman Avenue and then take an immediate left onto New Parks Boulevard where the property can be found on the right hand side.

Tenure

Freehold with vacant possession upon completion.

Council Information

Leicester City Council, City Hall, 115 Charles Street, Leicester (Tel: Tax Band A. Please be advised that when a property is sold, local authorities reserve the right to re-calculate the council tax band.

Viewing Arrangements

Viewings are strictly by appointment only. Please contact Zak, Tom or Tabitha on or you can send an email to .

Money Laundering

In line with current money laundering regulations, prospective buyers will be asked to provide us with photo I.D. (e.G. Passport, driving licence, bus pass etc) and proof of address (e.G. Current utility bill, bank statement etc). We ask for your cooperation in this matter as this information will be required before a sale can be agreed.

Agents Note

These particulars, whilst believed to be accurate are set out as a general outline only for guidance and do not constitute any part of an offer or contract. Details are given without any responsibility, and any intending purchasers, lessees or third parties should not rely on them as statements of representation of fact, but must satisfy themselves by inspection or otherwise as to their accuracy. All photographs, measurements, floor plans and distances referred to are given as a guide only and should not be relied upon for the purchase of carpets or any other fixtures or fittings. All services and appliances have not and will not be tested by Newton Fallowell. Lease details, service ground rent (where applicable) are given as a guide only and should be checked and confirmed by your solicitor prior to exchange of contracts. No person in this firms employment has the authority to make or give any representation or warranty in respect of the property. We retain the copyright in all advertising material used to market this Property.

Thinking Of Selling Your Home?

If you have a house to sell then we would be delighted to provide you with a free no obligation valuation.

Floor Plans

Property Location

Marketed by Newton Fallowell - Leicester Forest East



By submitting this form, you accept our Terms of Use.

Disclaimer Property descriptions and related information displayed on this page are marketing materials provided by Newton Fallowell - Leicester Forest East. estateagents365.uk does not warrant or accept any responsibility for the accuracy or completeness of the property descriptions or related information provided here and they do not constitute property particulars. Please contact Newton Fallowell - Leicester Forest East for full details and further information.