Semi-detached house for sale in Grays RM16, 3 Bedroom

Grays, Grays, UK

Quick Summary

Property Type:
Semi-detached house
Status:
For sale
Price
£ 450,000
Beds:
3
Baths:
2
Recepts:
1
County
Essex
Town
Grays
Outcode
RM16
Location
Fairway, Grays RM16
Marketed By:
YOPA
Posted
2024-05-07
RM16 Rating:





More Info?
Please contact YOPA on 01322 584475 or Request Details

Property Description



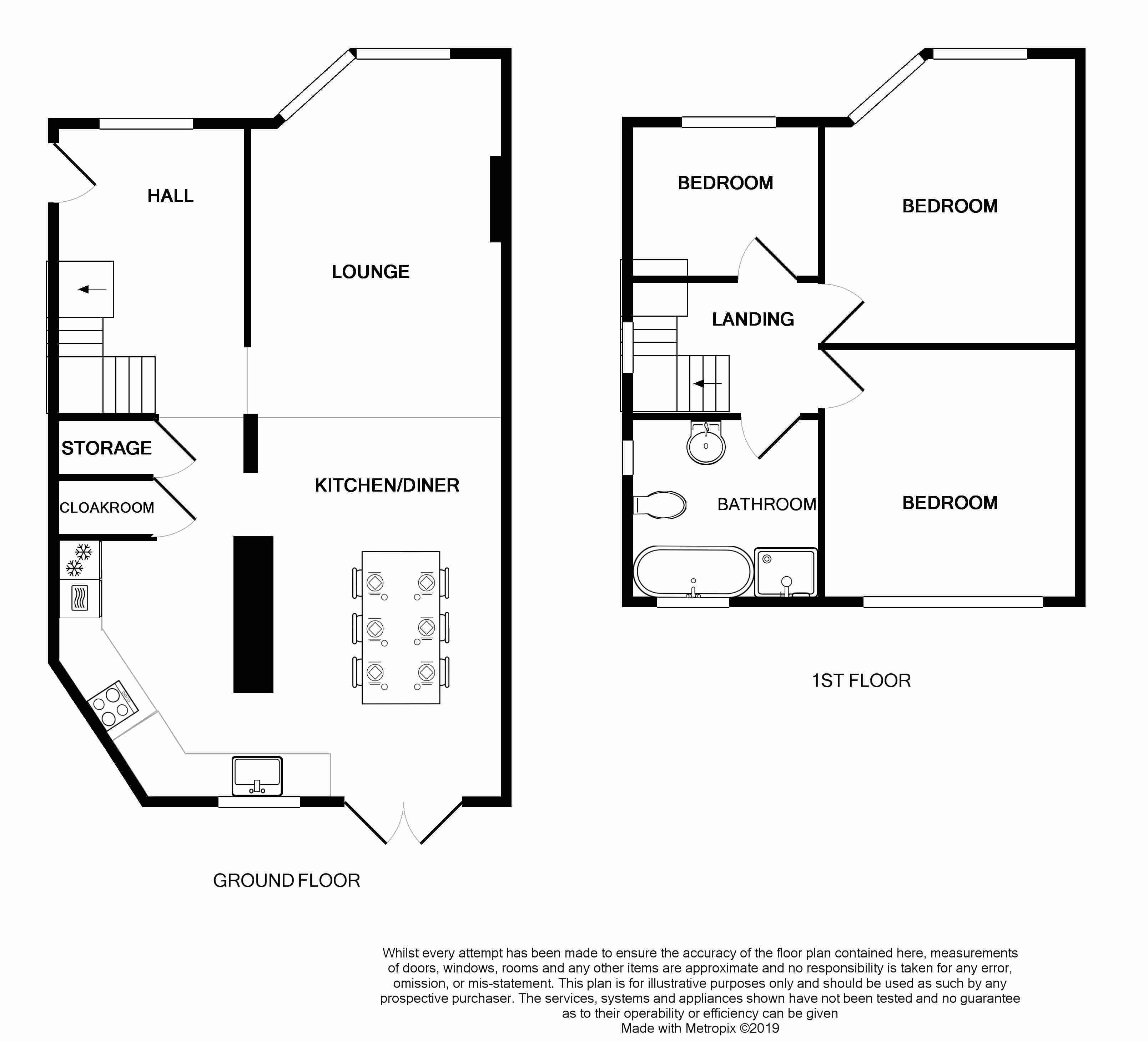
Attention to detail is at the heart of this modern contemporary home, which starts as you enter the reception hall with ample boot and coat storage. The attractive purpose built return staircase takes you to a pleasant first-floor landing with doors leading to three bedrooms and a luxury fitted bathroom.

On the ground floor, you will find the living accommodation is of an open plan style laid out in three distinctive areas of Kitchen, Lounge and dining area with double doors opening on to the attractive rear garden. There is the additional benefit of a ground floor cloakroom.

To the rear of the property, the garden commences with a patio area with side pedestrian access, leading to a substantial detached summer house. Bi Fold doors lead to a bar/lounge area, games area, and ample storage throughout. Attached to the summer house is an additional brick built storage room with own lockable door. To the back of the garden is an attractive children's play area which is mainly laid to lawn. To the front of the property, you will find ample off street parking.

The property is located in Fairway, Off Long Lane Grays and offers access to a number of local schools, and is a short walk to the local shopping parade. An internal viewing comes highly recommended.


Room sizes


Lounge Area: 17'7'' x 12'2''

Kitchen Area: 15' x 10' tappering to 6'7''

Dining Area: 14'8'' x 8'4''

Bedroom One: 11'8'' x 13'5'' into Robes and bay

Bedroom Two: 12'5'' x 11'3''

Bedroom Three: 8'9'' x 7'11''

Luxury Bathroom

Ground Floor Cloakroom

Attractive Rear Garden

Summer House: 31' x 11'6''

Store Room: 11'6 x 6'5''

Ample Off Street Parking

EPC band: D

Floor Plans

Property Location

Marketed by YOPA


By submitting this form, you accept our Terms of Use.

Disclaimer Property descriptions and related information displayed on this page are marketing materials provided by YOPA. estateagents365.uk does not warrant or accept any responsibility for the accuracy or completeness of the property descriptions or related information provided here and they do not constitute property particulars. Please contact YOPA for full details and further information.