Semi-detached house for sale in Chesterfield S40, 4 Bedroom

Chesterfield, Chesterfield, UK

Quick Summary

Property Type:
Semi-detached house
Status:
For sale
Price
£ 395,500
Beds:
4
Baths:
2
Recepts:
2
County
Derbyshire
Town
Chesterfield
Outcode
S40
Location
Chatsworth Road, Chesterfield S40
Marketed By:
Strada Estates
Posted
2024-05-31
S40 Rating:





More Info?
Please contact Strada Estates on 01246 398946 or Request Details

Property Description

Location The property is situated in this sought after district of Brookside within catchment area for Holymoorside, Brookfield and Westfield Schools, close to Somersall Park. Convenient for local shopping facilities, bus services and the town centre. Chatsworth Road boasts plenty of restaurants and specialist shops. Just a few miles away lies the stunning Peak District, which is home to some of England's best scenery and hundreds of walks. Well placed transport links including motorway network and train station. Golf courses and Leisure facilities at Brampton Manor and Queens Park including county cricket

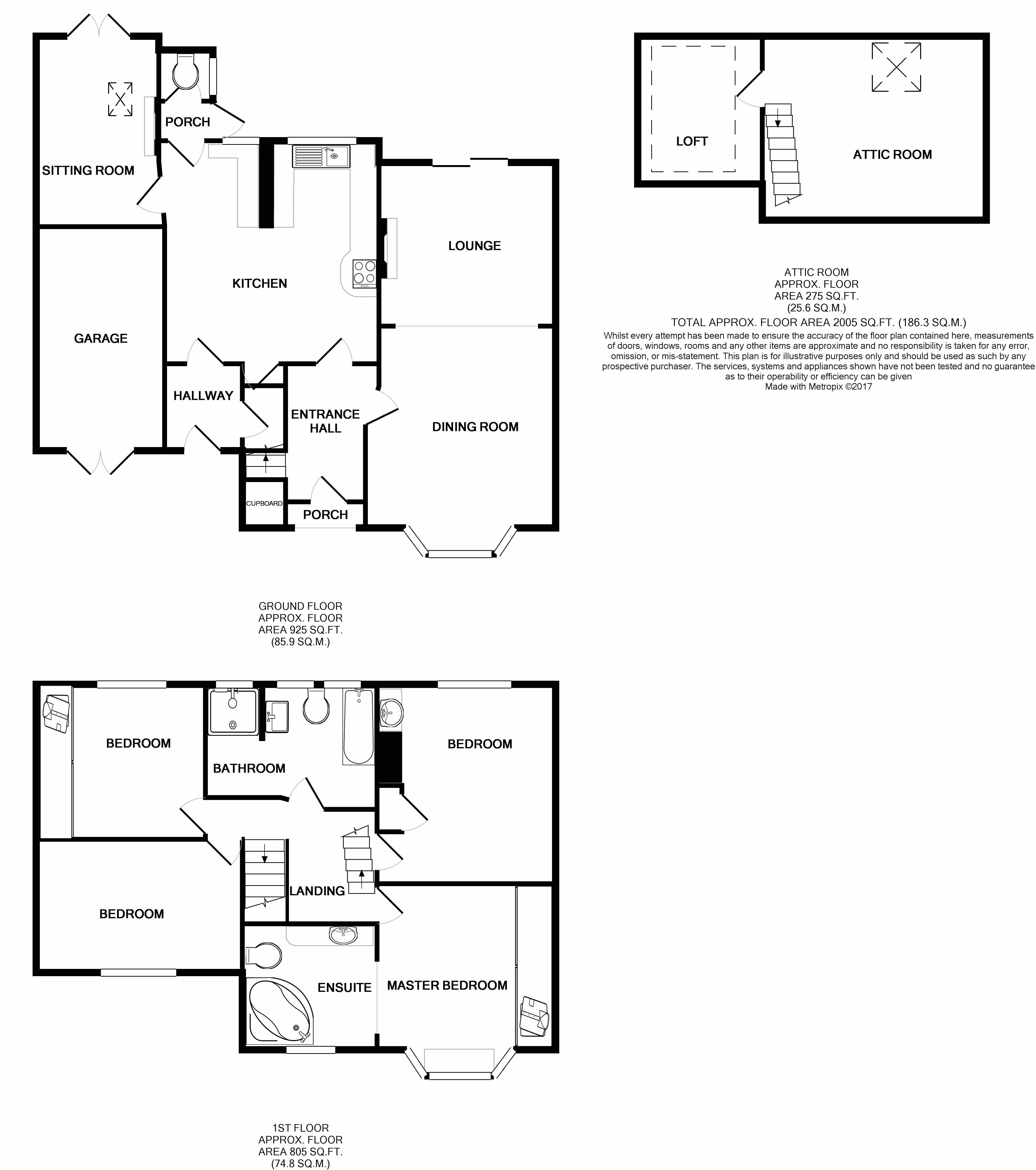
description Mature gardens and the driveway are to the front, the driveway can accommodate multiple vehicle's and leads to an integral garage. The main entrance porch leads into the hallway, with a cupboard at the foot of the stairs and access to the kitchen and lounge areas. The lounge through dining room sits to the right of the house with a feature bay window to the front and patio doors leading onto the enclosed mature garden and patio areas at the rear. The kitchen diner, with integrated hob and oven, look onto the rear garden and provide access to the Sitting room to the rear. The sitting room, benefitting from fireplace and period features such as exposed beams has French doors to the rear garden. To the front of the house, off the kitchen, is the garage with double doors and a store room plus an additional entrance. On the 1st floor are 4 double bedrooms and a family bathroom. The master room benefits from built in wardrobes and an Ensuite, the second room has a vanity unit with sink and a storage cupboard. The back bedroom also has built in storage available with views over the rear garden. The family bathroom benefits from a white 3 piece suite with a walk-in shower and tiled throughout. Access off the landing via pulldown ladders to the attic room which could be used in a multitude of ways, with boarded floor, velux window and electrics. There is also a door leading to the loft for further storage. The property benefits from gas central heating and double glazing.

Lounge 11' 1" x 13' 9" (3.4m x 4.2m)

dining room 14' 1" x 13' 1" (4.3m x 4.0m)

sitting room 16' 0" x 8' 6" (4.9m x 2.6m)

dining kitchen 15' 5" x 14' 1" (4.7m x 4.3m)

bedroom 12' 1" x 11' 9" (3.7m x 3.6m)

bedroom 12' 9" x 13' 5" (3.9m x 4.1m)

bedroom 13' 9" x 8' 10" (4.2m x 2.7m)

bedroom 8' 10" x 10' 5" (2.7m x 3.2m)

bathroom 11' 9" x 7' 6" (3.6m x 2.3m)

attic room 11' 5" x 16' 0" (3.5m x 4.9m)

Floor Plans

Property Location

Marketed by Strada Estates



By submitting this form, you accept our Terms of Use.

Disclaimer Property descriptions and related information displayed on this page are marketing materials provided by Strada Estates. estateagents365.uk does not warrant or accept any responsibility for the accuracy or completeness of the property descriptions or related information provided here and they do not constitute property particulars. Please contact Strada Estates for full details and further information.