End terrace house for sale in London SW19, 3 Bedroom

London, London, UK

Quick Summary

Property Type:
End terrace house
Status:
For sale
Price
£ 750,000
Beds:
3
Baths:
2
Recepts:
1
County
London
Town
London
Outcode
SW19
Location
Christchurch Road, Colliers Wood SW19
Marketed By:
Christopher St James Plc
Posted
2024-04-02
SW19 Rating:





More Info?
Please contact Christopher St James Plc on 020 3478 2980 or Request Details

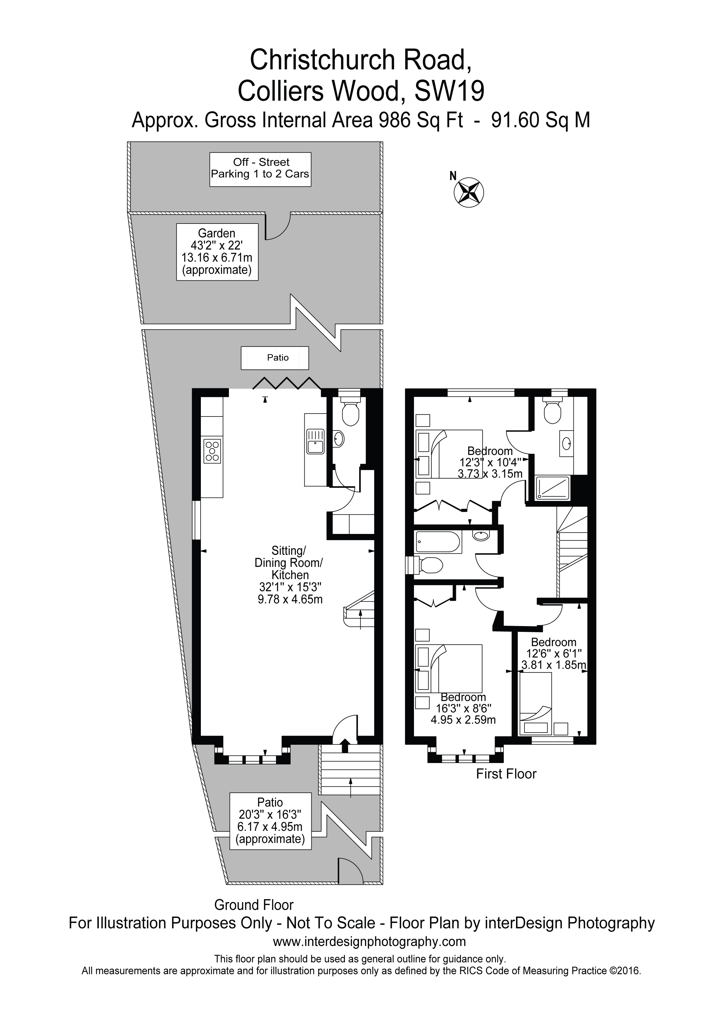
Property Description

Description csj Property Agents offer this brand new end of terrace house.

The property comprises a large 32 ft open plan space on the ground floor with kitchen / dining area to the rear overlooking landscaped gardens and lounge area to the front, a utility area, storage cupboard and cloakroom with wash basin and W/C".

The first floor comprises king size bedroom with en suite shower room and fitted wardrobes, double bedroom, single bedroom and family bathroom.

Outside: To the front is a walled boundary with Indian sandstone tiles and feature lighting inside the steps leading to the front door, the rear will have fenced boundaries, laid lawn and Indian sandstone patio, the property also benefits from off street parking also found to the rear.

The property is perfectly situated for transport links with both Colliers Wood Underground Station and Bus Stop just moments away.

Singlegate Primary School which has an outstanding rating by Ofsted is less than 5 minutes walk.

Sainsburys & M&S supermarkets are also right on your doorstep as well as the Aldi, Dunelm, Currys PCWorld and the Tandem Centre retail park where you will find Next, tk Max, wh Smiths, jd Sports, Moss Bros, New Look, Sports Direct, Boots, Starbucks, Nandos, Bella Italia and more.

Below is the list of appliance to be installed which are top of the range.

Siemens Gas Hob
Siemens Double Oven
Siemens Washer/dryer (integrated)
Caple under counter Wine cooler
Siemens Extractor hob
Siemens Fridge freezer (integrated)
Siemens Dishwasher (integrated)

Floor Plans

Property Location

Marketed by Christopher St James Plc


By submitting this form, you accept our Terms of Use.

Disclaimer Property descriptions and related information displayed on this page are marketing materials provided by Christopher St James Plc. estateagents365.uk does not warrant or accept any responsibility for the accuracy or completeness of the property descriptions or related information provided here and they do not constitute property particulars. Please contact Christopher St James Plc for full details and further information.