End terrace house for sale in London SE20, 3 Bedroom

London, London, UK

Quick Summary

Property Type:
End terrace house
Status:
For sale
Price
£ 425,000
Beds:
3
County
London
Town
London
Outcode
SE20
Location
St. Johns Cottages, Maple Road, London SE20
Marketed By:
Streets Ahead - Crystal Palace
Posted
2024-04-13
SE20 Rating:





More Info?
Please contact Streets Ahead - Crystal Palace on 020 3478 3452 or Request Details

Property Description

Location


**offers in excess of £425,000**
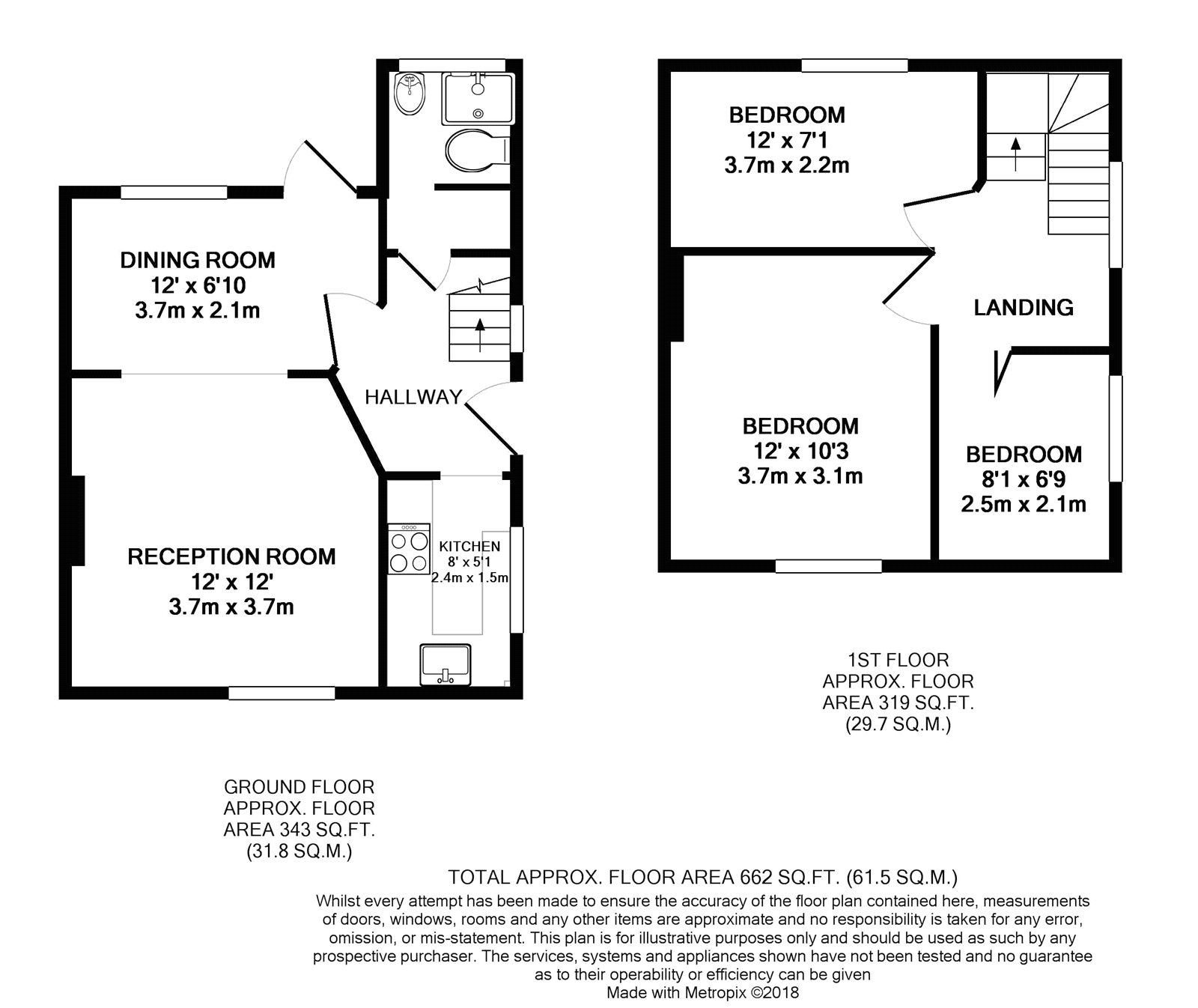
Charming 3 bedroom cottage which forms part of the renowned St Johns Cottages. Built as alms-houses in 1863 and designed by Edwin Nash, the cottages are famous locally for their beauty and the unique layout around a central communal garden. Accommodation includes reception room/dining room, fitted kitchen and downstairs shower room to the ground floor whilst the upper floor includes three bedrooms.
Further benefits include no chain, front garden and rear courtyard style garden.


Directions


St Johns Cottages are found on Maple Road which runs between Anerley Road (A214) and Penge High Street. Anerley Rail Way Station is within easy walking distance and is Betts Park and local shopping facilities. Easy access to Penge High Street and Crystal Palace is also offered, as is Crystal Palace National Sports Centre.


Transport


Penge East (approx 0.3 mile)
Penge West (approx 0.3 miles)
Anerley (approx 0.5 miles)


Floor Plans

Property Location

Marketed by Streets Ahead - Crystal Palace


By submitting this form, you accept our Terms of Use.

Disclaimer Property descriptions and related information displayed on this page are marketing materials provided by Streets Ahead - Crystal Palace. estateagents365.uk does not warrant or accept any responsibility for the accuracy or completeness of the property descriptions or related information provided here and they do not constitute property particulars. Please contact Streets Ahead - Crystal Palace for full details and further information.