Detached house for sale in Rotherham S60, 5 Bedroom

Rotherham, Rotherham, UK

Quick Summary

Property Type:
Detached house
Status:
For sale
Price
£ 500,000
Beds:
5
Baths:
2
Recepts:
4
County
South Yorkshire
Town
Rotherham
Outcode
S60
Location
Wickersley Road, Rotherham S60
Marketed By:
YOPA
Posted
2024-04-04
S60 Rating:





More Info?
Please contact YOPA on 01322 584475 or Request Details

Property Description



EPC band: D

Introducing to the market this highly desirable, prestigious family property that stands proudly upon a tree lined suburb of Rotherham. Offering spacious family living at its best with five bedrooms and four reception rooms and boasting huge landscaped gardens to both the front and rear, and early viewing is essential to avoid disappointment. The accommodation briefly comprises of:

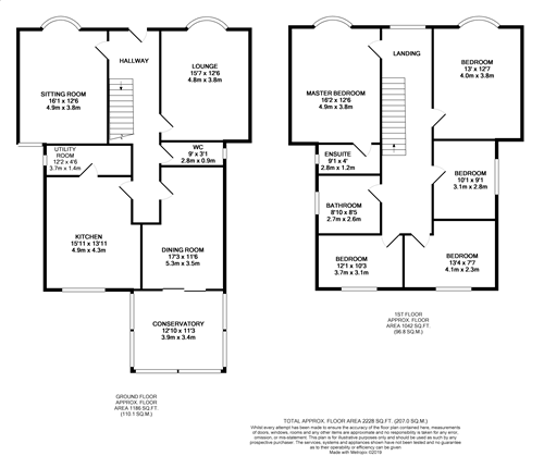
Rear entrance door leads into a good sized kitchen / breakfast area. With ample range of wall and base units beneath complimentary worktops. Central island unit which extends to provide a breakfast bar. Integrated one and a half stove type oven with 5 ring gas hob and extractor hood above. Integrated dishwasher and fridge freezer. Wooden floors and tiled splashbacks. An adjoining utility room which provides lots of storage space has plumbing for a washing machine, wooden flooring, side facing window and the wall mounted central heating boiler is in here. Access to a large dry cellar that could be used as a wine cellar for any connoisseurs. Large dining room with wooden floors which has patio doors leading into a very spacious conservatory which overlooks the beautiful rear garden. Lounge with front facing bay window and smaller rear facing window. Modern fireplace with marble hearth and back and fitted gas fire. Wooden flooring. Sitting room which has a real feeling of tranquillity. Stone effect fireplace with tiled hearth which has a wood burner within. Front facing bay and rear facing window, wooden flooring. Downstairs cloakroom with wash hand basin and wc. Feature tiled wall and wooden flooring. The delightful and spacious entrance hall gives access to all of the downstairs rooms. It has wooden flooring and a staircase leading to the first floor.

Large airy upper landing with front facing window and access to every room. Large master bedroom with fitted furniture comprising of six door wardrobes, drawers and bedside cabinets. Front facing bay window. En-suite shower room comprising of shower cubicle, wc. And wash hand basin. This room is fully tiled, has a side facing window and extractor fan. Second large double bedroom with front facing bay. Five door wardrobe fitment with matching drawer units and bedside cabinets. Access from this room to the loft which is boarded. Two further generous rear facing bedrooms. Bedroom five is of a good size and is currently used as an office, it is fully equipped with built in furniture to comprise of desk, built in cupboards, bookcases and shelving. Side facing window and wooden flooring. The family bathroom is again of generous size and comprises if bath with shower over, wash hand basin, bidet and wc. There is a built in airing cupboard housing the hot water tank. Fully tiled walls and wooden flooring. Side facing window.

To the side of the property is a brick built garage measuring 5.86m x 5.35m, with up and over door, power and light. At the rear of the garage and accessed from the garden is an outside toilet which is decorated in a Mediterranean theme, has a w. And wash hand basin and tiled floor. The gardens are huge to both front and rear and are beautifully maintained and presented with enormous lawns and well stocked borders etc. The rear garden is fully enclosed and private, ideal for your budding Rinaldo and David Beckham (in fact you could have the whole team round)….. A delightful patio seating area, ideal for entertaining. I long block paved driveway which extends into the front of the property provides off street parking for multiple vehicles. The front garden is also well stocked with mature trees and shrubs and again is enclosed and at the foot of the driveway there are large sliding wrought iron gates providing extra security.

This area of Rotherham is very popular and sought after. It is served by well regarded junior and secondary schools. Ideally placed for Rotherham town centre, Rotherham district hospital and the motorway networks. There are an abundance of local shops, bars and restaurants. An early viewing is essential to fully appreciate the accommodation on offer and the quality of fixtures and fittings within this exclusive family home.

Floor Plans

Property Location

Marketed by YOPA



By submitting this form, you accept our Terms of Use.

Disclaimer Property descriptions and related information displayed on this page are marketing materials provided by YOPA. estateagents365.uk does not warrant or accept any responsibility for the accuracy or completeness of the property descriptions or related information provided here and they do not constitute property particulars. Please contact YOPA for full details and further information.