Detached house for sale in Nottingham NG6, 3 Bedroom

Nottingham, Nottingham, UK

Quick Summary

Property Type:
Detached house
Status:
For sale
Price
£ 170,000
Beds:
3
Baths:
1
Recepts:
2
County
Nottingham
Town
Nottingham
Outcode
NG6
Location
Fairway Drive, Nottingham NG6
Marketed By:
Your Move - Nottingham
Posted
2024-05-16
NG6 Rating:





More Info?
Please contact Your Move - Nottingham on 0115 774 8845 or Request Details

Property Description



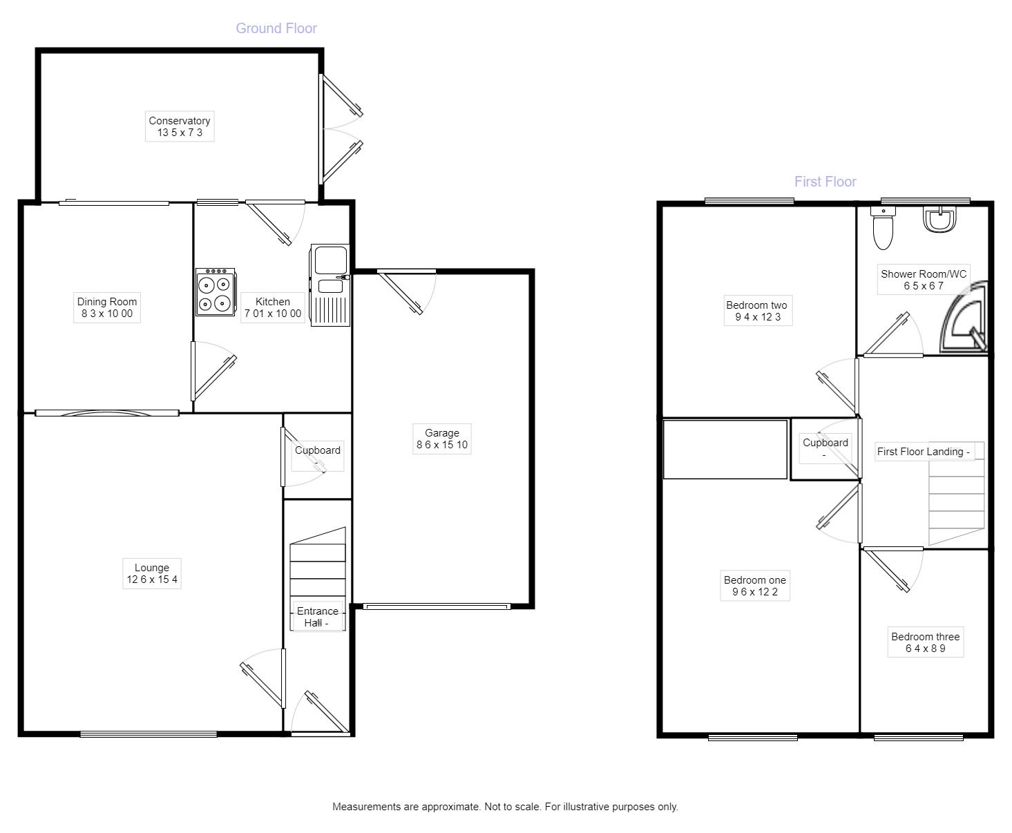
Guide price £170,000 to £180,000 conservatory! Cul de sac location! Roll up! Roll up! Roll up! Your Move are delighted to offer for sale this three Bedroom Detached House to which a viewing is recommended to appreciate the accommodation on offer. In brief the property comprises of to the Ground Floor an Entrance Hall, Lounge, Dining Room, Kitchen and Conservatory whilst to the first floor there are three Bedrooms and a Shower Room/WC. To the outside there are front and rear Gardens with a Driveway leading to a Garage and also further additional parking. The property also benefits from Double Glazing and Gas Central Heating. EPC Grade D.

Location

Local amenities include supermarkets, banks, public houses, leisure centre and local shops, a market in the city centre on Fridays, Saturdays and Tuesdays. Public transport includes bus routes and Tram Stop on St Albans Road, a tram station, and a bus station can be found in Bulwell Town Centre.

Our View

A well maintained property which has been looked after for many years by the current owners. Nestled is a quiet convenient Cul De Sac off sought after St Albans Road in Bulwell, this property is a Must To View. Please Call the office today to arrange your viewing.

Lounge (4.67m x 3.81m)

Dining Room (3.05m x 2.51m)

Kitchen (2.77m x 2.16m)

Conservatory (2.21m x 4.09m)

Bedroom (3.71m x 2.90m)

Bedroom (2nd) (3.73m x 2.84m)

Bedroom (3rd) (1.93m x 2.67m)

Shower Room / WC (2.01m x 1.96m)

Garage (4.83m x 2.59m)

Important note to purchasers:

We endeavour to make our sales particulars accurate and reliable, however, they do not constitute or form part of an offer or any contract and none is to be relied upon as statements of representation or fact. Any services, systems and appliances listed in this specification have not been tested by us and no guarantee as to their operating ability or efficiency is given. All measurements have been taken as a guide to prospective buyers only, and are not precise. Please be advised that some of the particulars may be awaiting vendor approval. If you require clarification or further information on any points, please contact us, especially if you are traveling some distance to view. Fixtures and fittings other than those mentioned are to be agreed with the seller.

/3

Floor Plans

Property Location

Marketed by Your Move - Nottingham



By submitting this form, you accept our Terms of Use.

Disclaimer Property descriptions and related information displayed on this page are marketing materials provided by Your Move - Nottingham. estateagents365.uk does not warrant or accept any responsibility for the accuracy or completeness of the property descriptions or related information provided here and they do not constitute property particulars. Please contact Your Move - Nottingham for full details and further information.