Detached house for sale in Glasgow G77, 4 Bedroom

Glasgow, Glasgow, UK

Quick Summary

Property Type:
Detached house
Status:
For sale
Price
£ 290,000
Beds:
4
Baths:
2
Recepts:
2
County
Glasgow
Town
Glasgow
Outcode
G77
Location
Glanderston Avenue, Newton Mearns, East Renfrewshire G77
Marketed By:
Slater Hogg & Howison - Newton Mearns
Posted
2024-04-20
G77 Rating:





More Info?
Please contact Slater Hogg & Howison - Newton Mearns on 0141 376 8802 or Request Details

Property Description

Ideally placed for excellent schooling and local amenities, this well presented four bedroomed detached villa is ideal for the family market.
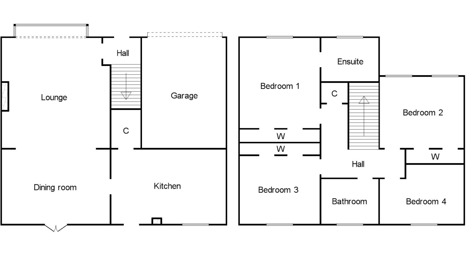
Comprises, entrance hall, lounge, dining room with patio door access to the rear gardens, modern style fitted kitchen, four double sized bedrooms ( master en-suite) and a three piece bathroom .
Externally the home sits within well maintained and mainly south facing gardens which is bound by border fencing, off street parking includes a driveway and single integral garage.
Newton Mearns offers excellent local services
and amenities in tranquil, leafy surroundings,
and is within easy reach of top performing primary and secondary schools, including Eastwood High School and further afield,
St Ninian’s High School.
Transport options are plentiful, with a local bus
service and good rail services to the city from Whitecraigs Station.
The M77 motorway to Ayrshire, Glasgow and beyond is just a short drive away.
A wide range of shops and independent stores
is located nearby, including Waitrose and The Avenue Shopping Centre, where Asda, Boots & Marks & Spencer’s.
Viewing highly recommended.

Floor Plans

Property Location

Marketed by Slater Hogg & Howison - Newton Mearns


By submitting this form, you accept our Terms of Use.

Disclaimer Property descriptions and related information displayed on this page are marketing materials provided by Slater Hogg & Howison - Newton Mearns. estateagents365.uk does not warrant or accept any responsibility for the accuracy or completeness of the property descriptions or related information provided here and they do not constitute property particulars. Please contact Slater Hogg & Howison - Newton Mearns for full details and further information.