Detached house for sale in Glasgow G77, 4 Bedroom

Glasgow, Glasgow, UK

Quick Summary

Property Type:
Detached house
Status:
For sale
Price
£ 445,000
Beds:
4
Baths:
2
Recepts:
2
County
Glasgow
Town
Glasgow
Outcode
G77
Location
Kinfauns Drive, Newton Mearns, Glasgow G77
Marketed By:
Home Connexions
Posted
2024-04-20
G77 Rating:





More Info?
Please contact Home Connexions on 0141 376 8969 or Request Details

Property Description

* Stunningly Presented, Bright & Spacious Detached Family Home In Sought After Newton Mearns Location

* Catchment area for Top East Renfrewshire Schools

* Truly Walk In Condition & Fully Renovated Throughout

* Multi Versatile Living With A Fantastic Open Plan Lounge Dining Room

* Modern Fitted Breakfasting Kitchen, Bathroom & Shower Room

* Four Bedrooms, GCH & dg, Well Managed Gardens

* Large Multi Car Driveway With Gated Access To Garage - Viewings Essential

Offered to the market place is this exquisite, newly refurbished detached family home, brimming with traditional character and charm, situated in the Broom area of Newton Mearns. Located in a highly sought after residential location within Glasgow's prestigious South Side, this property will appeal to the growing family buyer, professionals and downsizers alike due the flexibility of the living accommodation on offer.

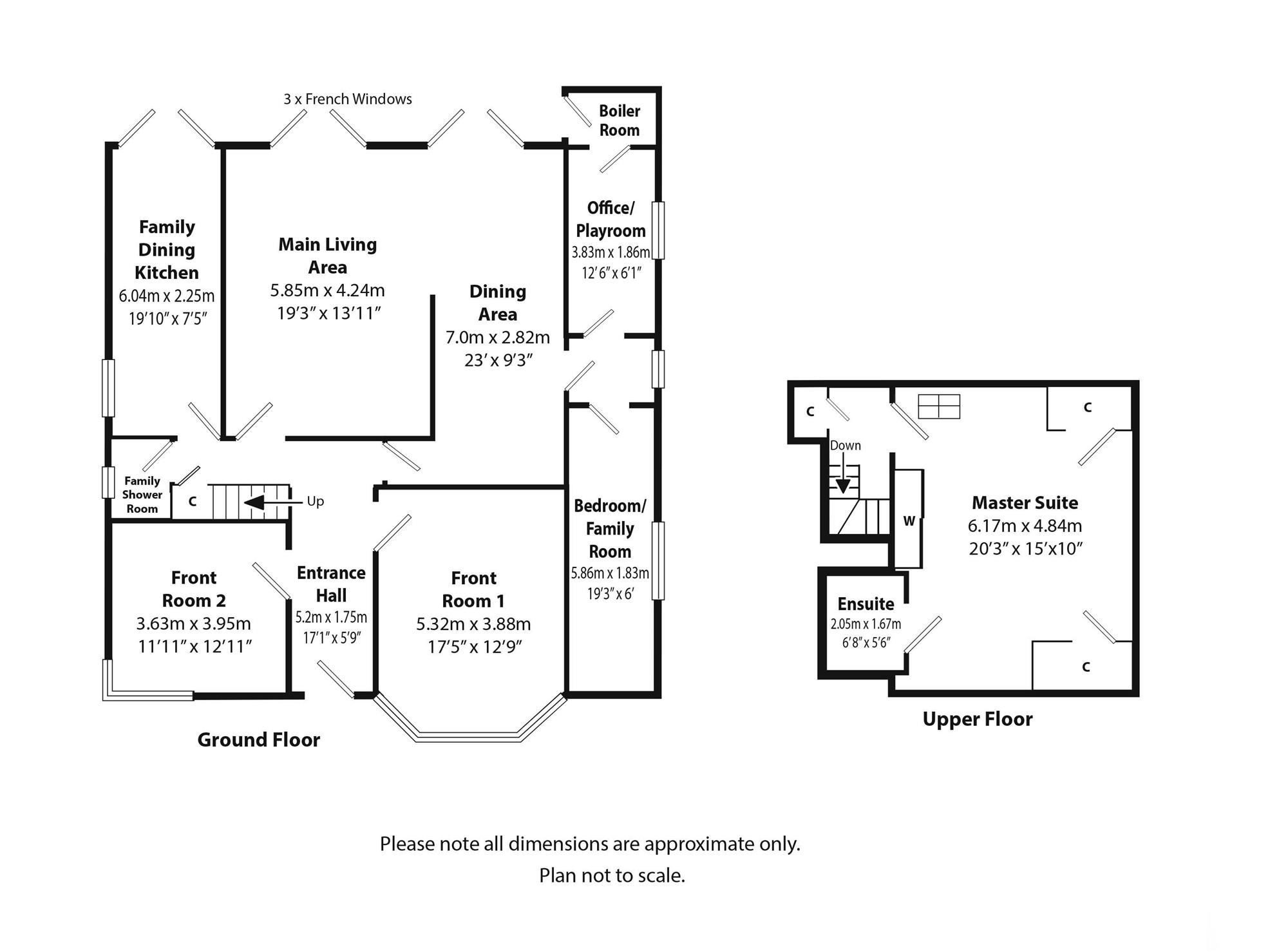
This fabulous two storey villa can only be described as truly walk in condition; boasting a flexible family living accommodation with four bedrooms, two reception rooms and two beautifully fitted bathrooms. The accommodation flows very well with a lovely sense of arrival through the front door leading to a wonderful reception hall with a prominent wooden staircase in full view. All main apartments are accessed from the hallway with only the master suite being situated on the upper level.

Two large bedrooms/reception rooms are situated at the front of the property, one of which features a striking bay window allowing views to the fabulous mature front garden. To the rear of the property there is a large breakfasting kitchen which has a stylish blend of traditional shaker style solid wood units, complete with a sizeable breakfast bar all with brand new integrated cooking and laundry appliances. There is also direct access to the spacious rear gardens.

The main living and dining areas are also at the rear of the property. This vast and open area is ideal for family living, with an open plan feel yet division between lounge/dining area. Two sets of French doors lead into the wonderful rear gardens, which is perfect for entertaining, relaxing and having quality family time. There are two further rooms on the ground level which could be used as bedrooms offering flexible living and each could be used as a playroom, office or further family room. The lower level of the property also offers a large family shower room and sizeable storage cupboard.

The master suite on the upper level is bright and spacious with two large windows and a feature balcony. There is an abundance of storage with large built in wardrobe and large additional storage cupboards as well as a beautiful en-suite bathroom comprises of a bath with Victorian chrome sanitaryware and shower, wc and wash hand basin.

Surrounding the property there area very well managed gardens to include a large multi car driveway leading to a large garage with power and light which could easily be adapted for use as additional workspace, office or gym. The rear garden offers a mixture of mature trees and shrubs along with planted flowers. The garden is easily maintained and enclosed for a child safe environment, along with a raised sitting area, and fitted patio. A striking black wrought iron gates make the rear grounds completely safe and child friendly.

Kinfauns Drive is a popular and exclusive location in Newton Mearns with numerous local facilities in close proximity including Parklands Country Club, David Lloyd Leisure, Waitrose, Marks and Spencer Food Store, Asda, as well as excellent local restaurants, coffee shops, dentists, doctors, libraries and post offices. Nearby schools include Kirkhill and St. Cadocs Primary as well as Mearns Castle, Eastwood High and St. Ninians Secondary.

EPC Band: D

Lounge & Dining (1) (5.87m (19'3") x 4.24m (13'11"))

Breakfasting Kitchen (1) (6.05m (19'10") x 2.26m (7'5"))

Bedroom One (1) (5.31m (17'5") x 3.89m (12'9"))

Bedroom Two (1) (3.94m (12'11") x 3.63m (11'11"))

Family / Bedroom Four (5.87m (19'3") x 1.85m (6'1"))

Office / Guest Bedroom (3.81m (12'6") x 1.85m (6'1"))

Bedroom One (1) (6.17m (20'3") x 4.83m (15'10") - Below Slopes)

Floor Plans

Property Location

Marketed by Home Connexions



By submitting this form, you accept our Terms of Use.

Disclaimer Property descriptions and related information displayed on this page are marketing materials provided by Home Connexions. estateagents365.uk does not warrant or accept any responsibility for the accuracy or completeness of the property descriptions or related information provided here and they do not constitute property particulars. Please contact Home Connexions for full details and further information.