Detached house for sale in Birmingham B13, 5 Bedroom

Birmingham, Birmingham, UK

Quick Summary

Property Type:
Detached house
Status:
For sale
Price
£ 995,000
Beds:
5
Baths:
3
Recepts:
3
County
West Midlands
Town
Birmingham
Outcode
B13
Location
Reddings Road, Moseley, Birmingham B13
Marketed By:
Robert Powell and Co
Posted
2024-04-08
B13 Rating:





More Info?
Please contact Robert Powell and Co on 0121 659 0195 or Request Details

Property Description

Open house viewing Sat 18th may 11:30AM.
A beautifully refurbished Edwardian five bedroomed detached house offering substantial family accommodation set within a large plot in a most sought after road.

Location

Reddings Road is a popular address in Moseley, located some 3 miles to the south of Birmingham City Centre. The property is within a quarter of a mile of Cannon Hill Park and also falls within the proposed new catchment area for the much sought after King Edward VI Camp Hill Grammar School which is one of the country's leading schools.

Description & Accommodation

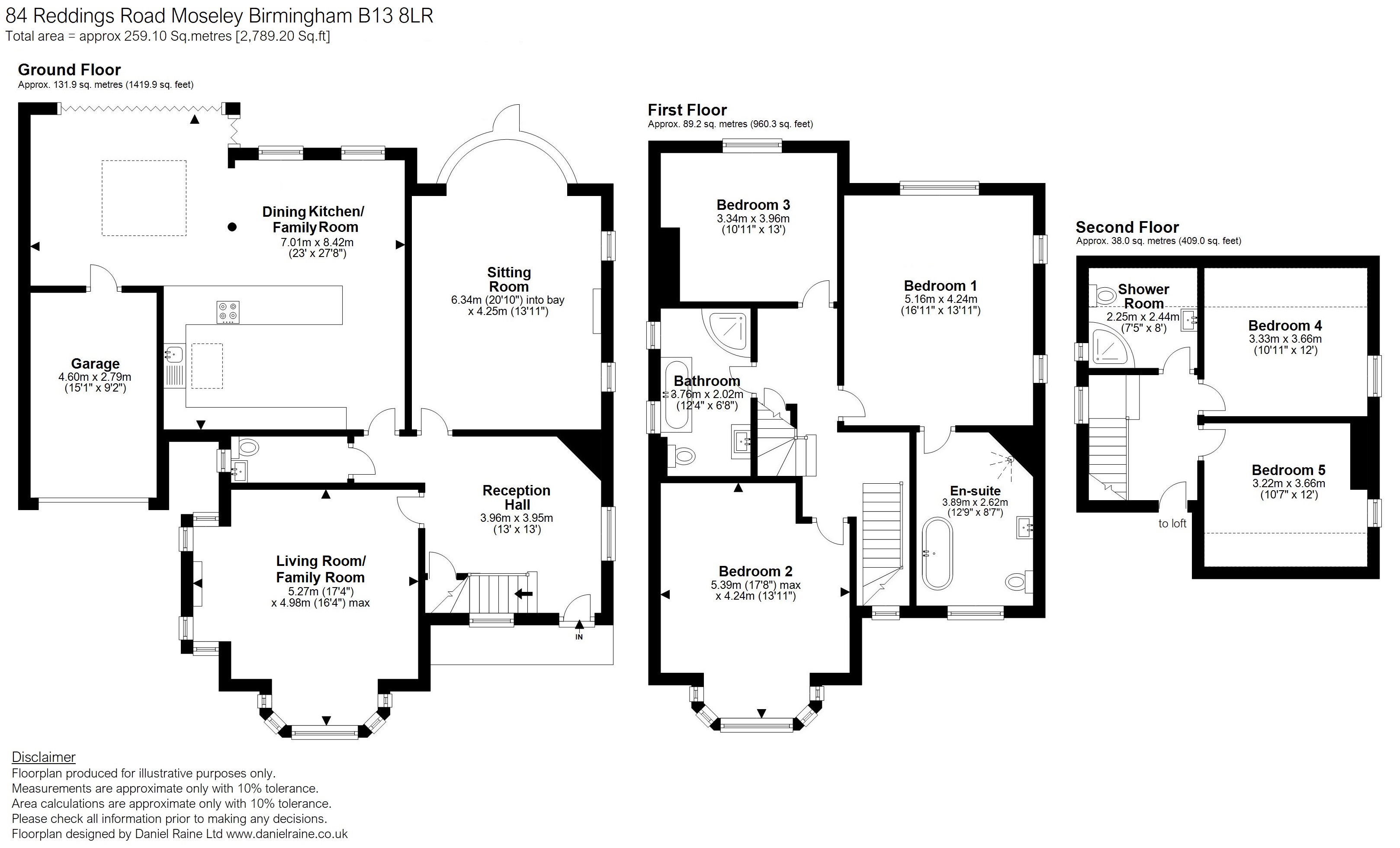
84 Reddings Road is a most attractive Edwardian detached house which has been significantly renovated and modernised by the present owners. Despite the extensive refurbishment, many original features have been retained and enhanced, including some stunning stained and leaded glass windows. Extending in all to some 2,789 sq ft (259 sq m) over three floors the property is ideal for family living as well as for socialising and entertaining.

The house is entered via an attractive part glazed front door which opens into the spacious reception hall. There are two generously proportioned reception rooms, the larger of which has an almost full height window with central door opening to the garden whilst the other has a fabulous inglenook fireplace. The hub of the house is the superb open-plan kitchen/dining/ living room which has under-floor and a stylish modern fitted kitchen with quality Miele appliances and a breakfast bar separating the dining area. The living area is cleverly defined by being set at a lower level and enjoys pleasant views of the garden via a set of fully retractable bi-folding doors.

The bedroom accommodation is spread over the two upper floors. The master bedroom has a beautifully appointed en suite with large rain shower, oval shaped freestanding bath and under-floor heating. There are two additional double bedrooms on the first floor, served by a smart house bathroom. Bedrooms 4 and 5 on the second floor are also double bedrooms and share a modern shower room.

Outside
To the front of the house is a substantial driveway and lawned foregarden as well as an integral single garage. To the rear is an extensive garden with a paved terrace, large central lawn, deep mature borders with an abundance of shrubs and trees. To the far end of the garden is a vegetable patch, greenhouse and large garden shed. The total plot extends to just over a quarter of an acre.

Published May 2019

Floor Plans

Property Location

Marketed by Robert Powell and Co



By submitting this form, you accept our Terms of Use.

Disclaimer Property descriptions and related information displayed on this page are marketing materials provided by Robert Powell and Co. estateagents365.uk does not warrant or accept any responsibility for the accuracy or completeness of the property descriptions or related information provided here and they do not constitute property particulars. Please contact Robert Powell and Co for full details and further information.