Terraced house for sale in Bristol BS7, 3 Bedroom

Bristol, Bristol, UK

Quick Summary

Property Type:
Terraced house
Status:
For sale
Price
£ 545,000
Beds:
3
Baths:
1
Recepts:
2
County
Bristol
Town
Bristol
Outcode
BS7
Location
Manor Road, Bishopston, Bristol BS7
Marketed By:
CJ Hole Bishopston
Posted
2018-11-03
BS7 Rating:





More Info?
Please contact CJ Hole Bishopston on 0117 444 9753 or Request Details

Property Description

Open Day - Saturday 18th August - By Appointment Only.
Located close to highly rated local primary and secondary schools and the popular Gloucester Road with its unique array of independent retailers, is this imposing three bedroom Victorian terraced property. Offering impressive accommodation to include to the ground floor: Two separate reception rooms, a well-proportioned kitchen/diner which overlooks the delightful rear garden with decked and lawned areas. Three double bedrooms, each with period fireplaces, and, a four piece bathroom suite can be found to the first floor. Many character features still remain in this cosy family home, including stained glass and cornicing. An early viewing is highly recommended to appreciate the standard and space being offered.

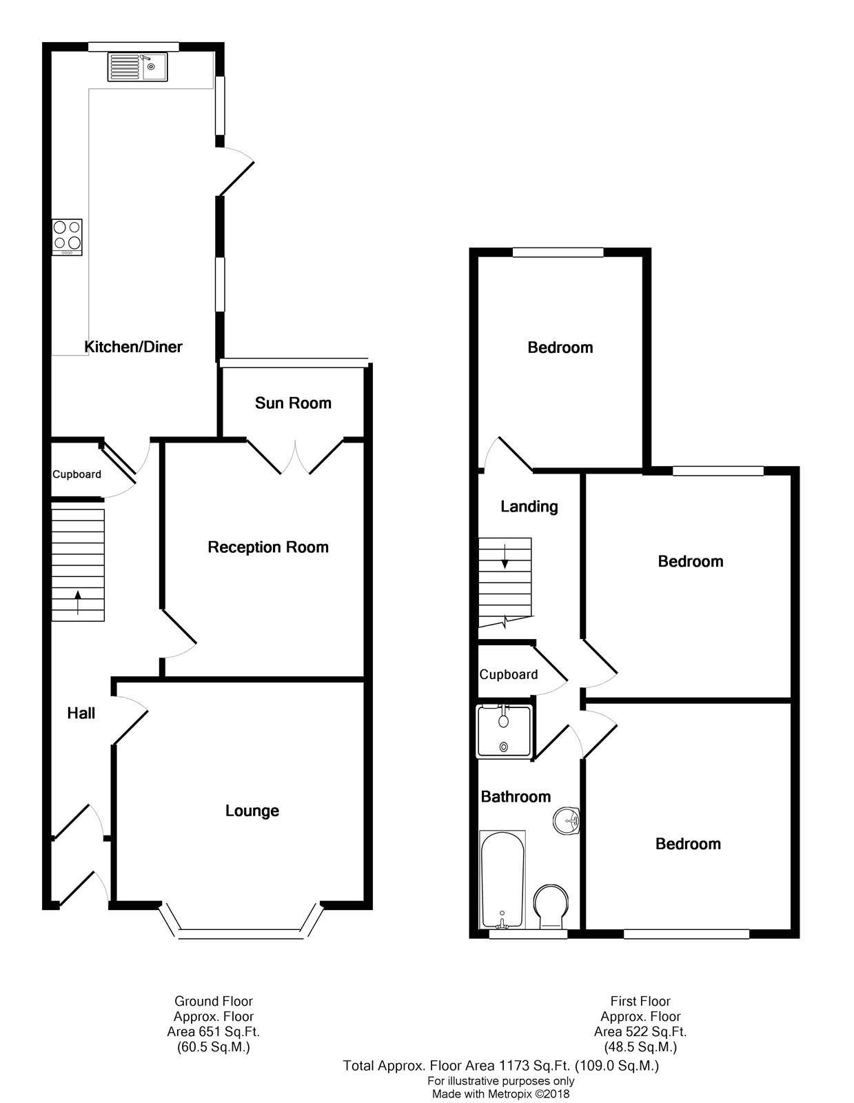
Entrance Via wooden door with stained glass lightwell over leading into entrance vestibule.

Entrance vestibule Wooden door with stained glass insert leading into hallway.

Hallway Staircase rising to the first floor, understairs storage, radiator, stripped wood flooring, doors to rooms.

Lounge 15'1" x 13'3" (4.6m x 4.04m). To maximum points. Double glazed bay window to the front aspect, coving, ceiling rose, fireplace with wood-burner, wooden mantle and tiled hearth, radiator, stripped wood flooring.

Reception two 12'6" x 10'10" (3.8m x 3.3m). Glazed double doors leading into sun room, coving, fireplace with wooden mantle and marble hearth, radiator, stripped wood flooring.

Sun room 6'8" x 4' (2.03m x 1.22m). Windows to the rear aspect, tiled floor.

Kitchen/diner 22'6" x 9'6" (6.86m x 2.9m). Double glazed windows to the rear and side aspect, partially glazed door to the side aspect providing access onto the rear garden, kitchen comprising a range of matching wall and base units with work surfaces over, stainless steel sink and drainer unit, tiled splashbacks, integrated oven and hob, space and plumbing for washing machine and dishwasher, space for upright fridge/freezer, two radiators, tiled floor.

First floor landing Access to loft space via hatch, built-in storage cupboard, doors to rooms.

Bedroom one 12'6" x 11'2" (3.8m x 3.4m). Double glazed windows to the front aspect, coving, ceiling rose, fireplace, radiator.

Bedroom two 12'2" x 11'2" (3.7m x 3.4m). Double glazed window to the rear aspect, radiator, stripped wood flooring.

Bedroom three 11'4" x 9'5" (3.45m x 2.87m). Double glazed window to the rear aspect, fireplace, radiator.

Family bathroom 12'10" x 5'5" (3.91m x 1.65m). Obscured double glazed window to the front aspect, four piece suite comprising low level WC, pedestal wash hand basin, panelled bath, shower cubicle, tiled splashbacks to wet areas, radiator, stripped wood flooring.

Rear garden Enclosed by fence and wall boundaries, decked area, lawned area with mature flowerbeds and shrubs.

Front garden Enclosed by low level boundary walls, pathway leading to front door.


Floor Plans

Property Location

Marketed by CJ Hole Bishopston



By submitting this form, you accept our Terms of Use.

Disclaimer Property descriptions and related information displayed on this page are marketing materials provided by CJ Hole Bishopston. estateagents365.uk does not warrant or accept any responsibility for the accuracy or completeness of the property descriptions or related information provided here and they do not constitute property particulars. Please contact CJ Hole Bishopston for full details and further information.