Terraced house for sale in Bristol BS4, 3 Bedroom

Bristol, Bristol, UK

Quick Summary

Property Type:
Terraced house
Status:
For sale
Price
£ 325,000
Beds:
3
Baths:
2
Recepts:
2
County
Bristol
Town
Bristol
Outcode
BS4
Location
Maxse Road, Knowle, Bristol BS4
Marketed By:
Ocean - Knowle
Posted
2024-05-14
BS4 Rating:





More Info?
Please contact Ocean - Knowle on 0117 444 9480 or Request Details

Property Description

3 bedroom period family home in the heart of Knowle that is currently vacant and offered with no onwards chain, in need of some updating but price to reflect this work however it could easily be lived in immediately.

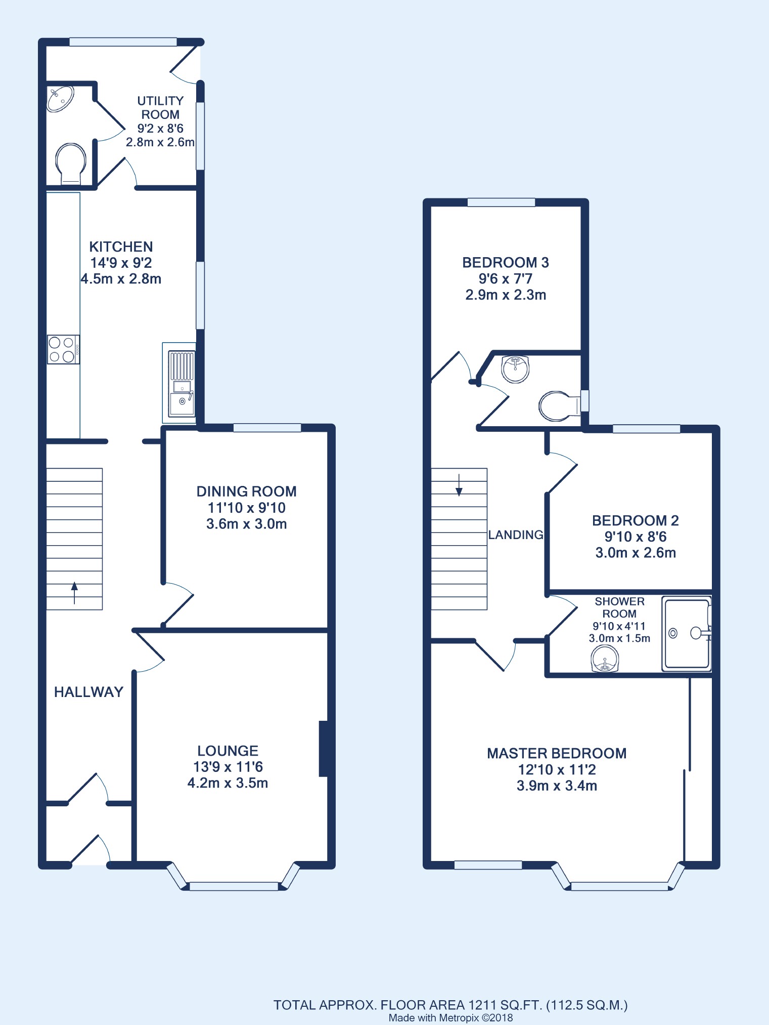
Downstairs there is a living room, dining room and a recently updated kitchen that leads to a utility room and a WC. Upstairs there are 3 double bedrooms and a shower room with sink and a separate toilet with sink. Outside there is a rear garden that is laid to lawn and benefits from gated rear access.

Additionally there is double glazing and a combi boiler.

Lounge (3.5m x 4.2m (11'6" x 13'9"))

Dining Room (3m x 3.6m (9'10" x 11'10"))

Kitchen (2.8m x 4.5m (9'2" x 14'9"))

Utiliy Room (2.8m x 2.6m (9'2" x 8'6"))

Wc (0.8m x 1.7m (2'7" x 5'7"))

Master Bedroom (3.9m x 3.4m (12'10" x 11'2"))

Bedroom 2 (3m x 2.6m (9'10" x 8'6"))

Bedroom 3 (2.9m x 2.3m (9'6" x 7'7"))

Shower Room (3m x 1.5m (9'10" x 4'11"))

Toilet (1.9m x 1.2m (6'3" x 3'11"))

You may download, store and use the material for your own personal use and research. You may not republish, retransmit, redistribute or otherwise make the material available to any party or make the same available on any website, online service or bulletin board of your own or of any other party or make the same available in hard copy or in any other media without the website owner's express prior written consent. The website owner's copyright must remain on all reproductions of material taken from this website.

Floor Plans

Property Location

Marketed by Ocean - Knowle


By submitting this form, you accept our Terms of Use.

Disclaimer Property descriptions and related information displayed on this page are marketing materials provided by Ocean - Knowle. estateagents365.uk does not warrant or accept any responsibility for the accuracy or completeness of the property descriptions or related information provided here and they do not constitute property particulars. Please contact Ocean - Knowle for full details and further information.