Terraced house for sale in Bristol BS16, 3 Bedroom

Bristol, Bristol, UK

Quick Summary

Property Type:
Terraced house
Status:
For sale
Price
£ 285,000
Beds:
3
Baths:
2
Recepts:
1
County
Bristol
Town
Bristol
Outcode
BS16
Location
Wickham View, Stapleton, Bristol BS16
Marketed By:
CJ Hole Downend
Posted
2018-11-08
BS16 Rating:





More Info?
Please contact CJ Hole Downend on 0117 444 9752 or Request Details

Property Description

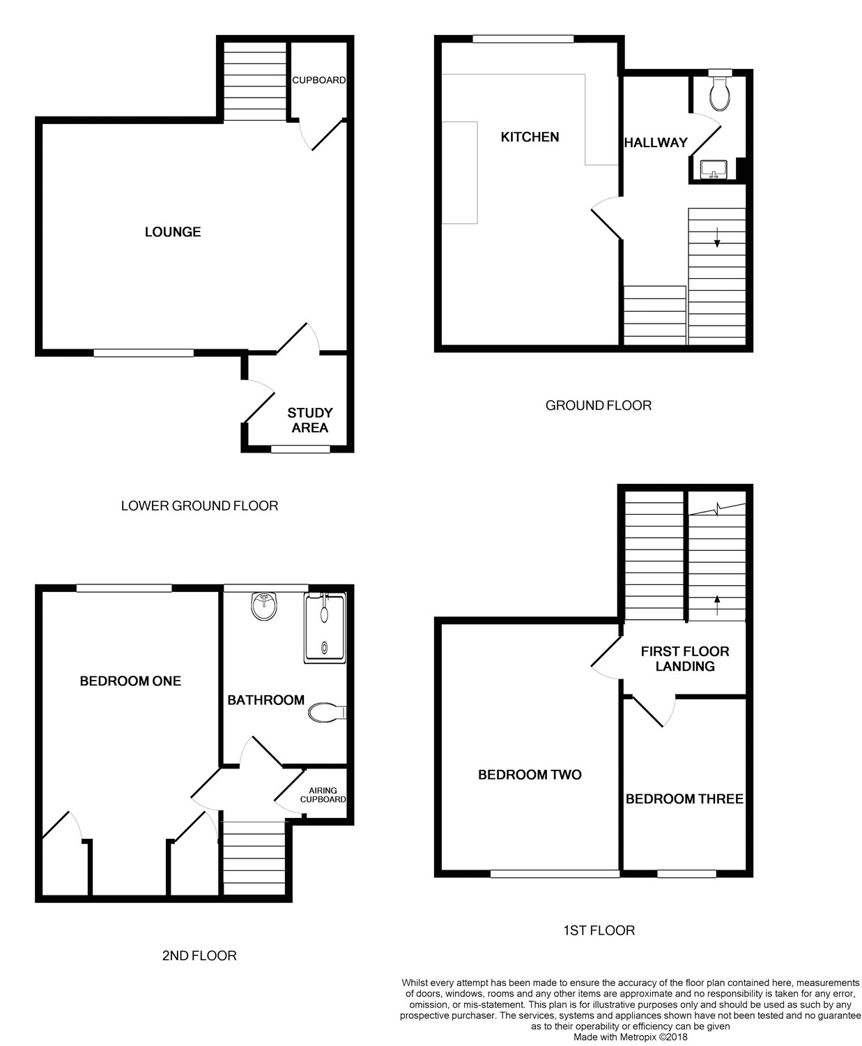
Sold with No Onward Chain and located on the popular Trendlewood Park Estate sits this recently redecorated three bed terraced home on Wickham View that offers a convenient and sought after location, close to local schools, shops and amenities with beautiful walks and parks along the Frome Valley. The property is a split level home set over four floors and offers a fantastic balance of light and space, with new carpets and flooring throughout. The property is accessed via the ground floor porch leading to the large lounge with stairs leading to the first floor which offers the kitchen diner and cloakroom with access to the rear garden, the second floor includes two bedrooms with stairs to the third floor and a generous master bedroom and family bathroom. Externally the home includes private front and rear gardens with garage and parking to front.

Entrance Porch Double glazed windows and door to rear, timber glazed door to lounge.

Lounge 15'9" x 13'6" (4.8m x 4.11m). Double glazed window to rear, under stairs cupboard, TV point, exposed brick wall, stairs to first floor, radiator x2.

First floor Landing Porch with internal glazed door, double glazed door to rear, door to cloakroom, radiator.

Cloakroom Shutter window to front, two piece suite comprising low level WC, pedestal wash hand basin over base unit, tiled splash back.

Kitchen Diner 16'1" x 9'5" (4.9m x 2.87m). Double glazed window to front, range of wall and base units, sink drainer, tiled splash backs, space for oven, washing machine and fridge freezer, glazed door to landing, radiator.

Second Floor Landing Access to loft, spot lights.

Bedroom Three 10' x 6'7" (3.05m x 2m). Double glazed window to rear, radiator.

Bedroom Two 13'6" x 8'7" (4.11m x 2.62m). Double glazed window to rear, built in cupboard, radiator.

Third Floor Landing Airing cupboard, access to loft.

Master Bedroom 15'7" x 9'6" (4.75m x 2.9m). Double glazed window to front, two built in cupboards, TV point, radiator.

Bathroom 8'2" x 5'9" (2.5m x 1.75m). Double glazed window to front, three piece suite comprising shower, low level WC, pedestal wash hand basin, fully tiled, spot lights, radiator.

Rear Garden Laid to patio, lawn, shrub and flower borders, brick built storage shed, access gate, glass house.

Front Garden Laid to patio and lawn, mature shrub and hedge borders, garage with electrics.


Floor Plans

Property Location

Marketed by CJ Hole Downend



By submitting this form, you accept our Terms of Use.

Disclaimer Property descriptions and related information displayed on this page are marketing materials provided by CJ Hole Downend. estateagents365.uk does not warrant or accept any responsibility for the accuracy or completeness of the property descriptions or related information provided here and they do not constitute property particulars. Please contact CJ Hole Downend for full details and further information.