Semi-detached house for sale in Leeds LS7, 3 Bedroom

Leeds, Leeds, UK

Quick Summary

Property Type:
Semi-detached house
Status:
For sale
Price
£ 289,950
Beds:
3
Baths:
1
Recepts:
2
County
West Yorkshire
Town
Leeds
Outcode
LS7
Location
Dominion Avenue, Leeds LS7
Marketed By:
Your Move - Barrett Hynes
Posted
2024-06-01
LS7 Rating:





More Info?
Please contact Your Move - Barrett Hynes on 0113 427 8984 or Request Details

Property Description



Your move barrett hynes are delighted to offer for sale this spacious, traditional semi detached property in a fabulous location close to the centre of Chapel Allerton. The property which has a gas central heating system and double glazed windows briefly comprises; entrance porch, two reception rooms, kitchen, rear porch, three bedrooms and a bathroom with a separate wc. The property occupies a generous plot with gardens to the front and rear and a driveway and garage to the side offering plenty of scope for an extension subject to planning. The current owner has lived in the property for almost 50 years and it appears to have been very well looked after, although it would now benefit from some cosmetic updating. The property is being sold with no onward chain and we strongly recommend a viewing. Awaiting EPC

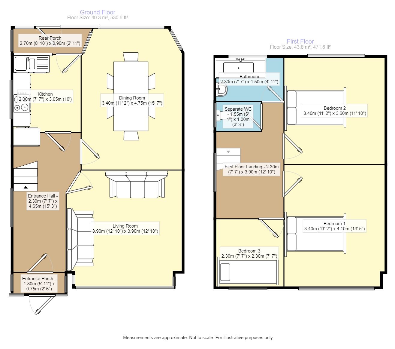
Entrance Porch

Entrance Hall

Living Room (3.9m x 3.9m)

Dining Room (4.3m x 3.4m)

Kitchen (2.6m x 2.3m)

Rear Porch

First Floor Landing

Bedroom 1 (2.9m (to wardrobes) x 4.1m (into bay))

Bedroom 2 (2.9m (to wardrobes) x 3.6m)

Bedroom 3 (2.3m x 2.3m)

Bathroom (1.5m x 2.3m)

Separate WC

Garage

Gardens

Important note to purchasers:

We endeavour to make our sales particulars accurate and reliable, however, they do not constitute or form part of an offer or any contract and none is to be relied upon as statements of representation or fact. Any services, systems and appliances listed in this specification have not been tested by us and no guarantee as to their operating ability or efficiency is given. All measurements have been taken as a guide to prospective buyers only, and are not precise. Please be advised that some of the particulars may be awaiting vendor approval. If you require clarification or further information on any points, please contact us, especially if you are traveling some distance to view. Fixtures and fittings other than those mentioned are to be agreed with the seller.

/3

Floor Plans

Property Location

Marketed by Your Move - Barrett Hynes



By submitting this form, you accept our Terms of Use.

Disclaimer Property descriptions and related information displayed on this page are marketing materials provided by Your Move - Barrett Hynes. estateagents365.uk does not warrant or accept any responsibility for the accuracy or completeness of the property descriptions or related information provided here and they do not constitute property particulars. Please contact Your Move - Barrett Hynes for full details and further information.