Semi-detached house for sale in Leeds LS26, 4 Bedroom

Leeds, Leeds, UK

Quick Summary

Property Type:
Semi-detached house
Status:
For sale
Price
£ 294,995
Beds:
4
Baths:
2
Recepts:
1
County
West Yorkshire
Town
Leeds
Outcode
LS26
Location
"Woodcote" at Station Road, Methley, Leeds LS26
Marketed By:
Barratt Homes - St Oswald's View
Posted
2019-05-17
LS26 Rating:





More Info?
Please contact Barratt Homes - St Oswald's View on 0113 427 8489 or Request Details

Property Description

The woodcote is the ideal family home. Downstairs you will find a breakfast kitchen, cloakroom and spacious dining lounge a glazed bay leading to the south facing garden. On the first floor, there are 3 bedrooms as well as the family bathroom. The master bedroom is on the second floor and benefits from dressing area and en suite shower room.

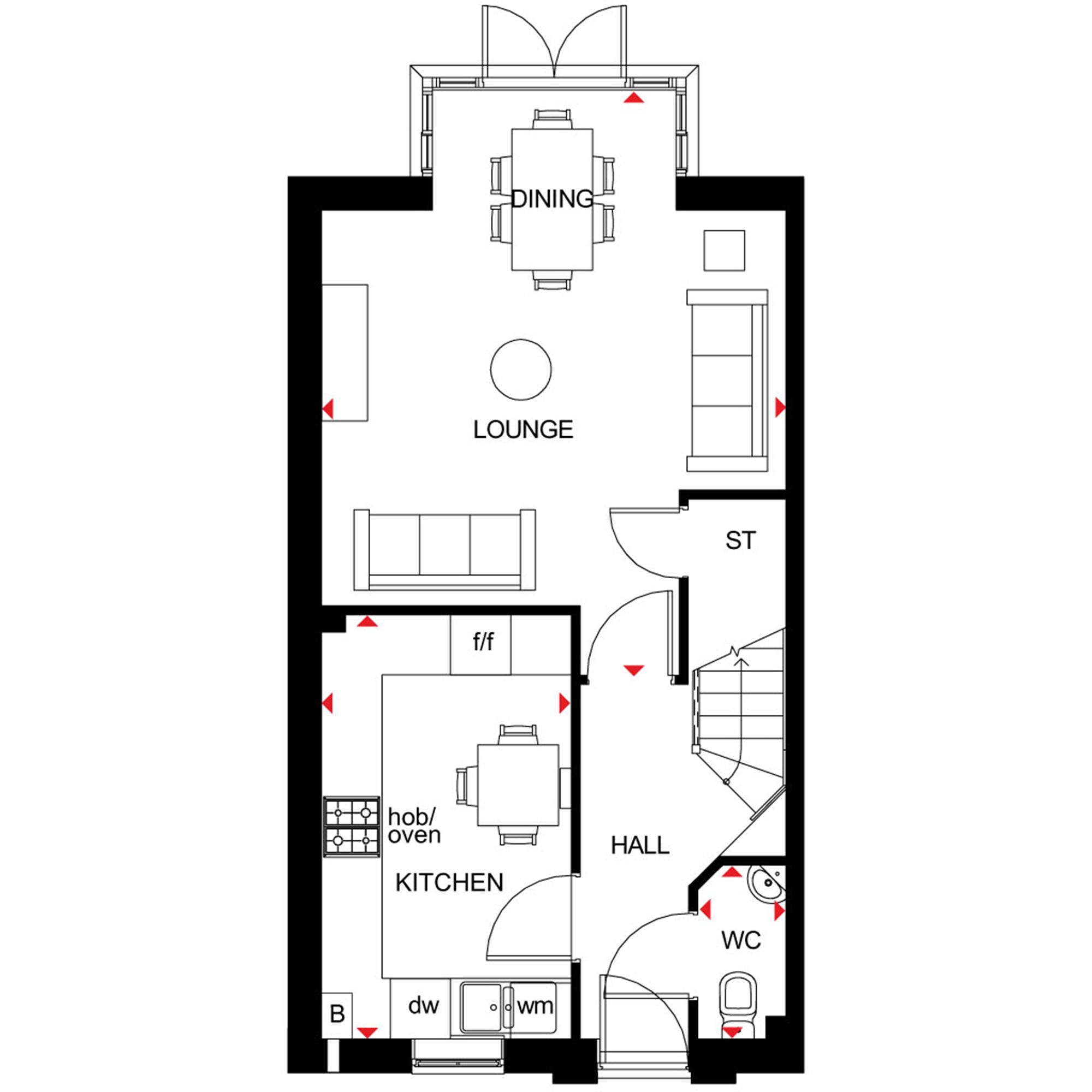
Rooms


Ground
  • Kitchen (4.21 x 2.48m (13'9'' x 8'1''))
  • Lounge / Dining (5.84 x 4.61m (19'2'' x 15'1''))
  • Wc (1.73 x 0.88m (5'7'' x 2'10''))
First
  • Bedroom 2 (Double) (2.61 x 4.41m (8'6'' x 14'5''))
  • Bedroom 3 (Double) (2.61 x 3.72m (8'6'' x 12'2''))
  • Bedroom 4 (Single) (1.91 x 2.78m (6'3'' x 9'1''))
  • Bathroom (1.91 x 2.11m (6'3'' x 6'11''))
Second
  • Bedroom 1 (Double) (3.48 x 5.65m (11'5'' x 18'6''))
  • Dressing (2.59 x 2.57m (8'6'' x 8'5''))
  • Ensuite 1 (1.93 x 2.49m (6'3'' x 8'1''))

About St Oswald's View, Methley


A quiet semi-rural development of 3 and 4 bedroom homes tucked away in the village of Methley. We have homes now ready to move into. Your new home will be less than 9 miles from Leeds city centre and close by to the M62, M1 and A1 for travel across Yorkshire and beyond. Our stylish collection of new homes offer you suburban living with the convenience of nearby shops, pubs, transport and excellent schools. Perfect for professionals and growing families.

Leisure


Nearby Wakefield has a choice of wine bars and traditional pubs. There is also a choice of restaurants and cafés. Wakefield Playhouse offers some excellent productions and entertainment and Rothwell Leisure Centre has a swimming pool, gym, sports halls and crèche. Xscape on the M62 Jct 32 offers winter sports along with a wide variety of eateries and bars.

Education


There are several local schools and colleges in close proximity to the St Oswald's View development as well play groups and day nurseries. Methley Primary School has an 'Outstanding' Ofsted rating, with the majority of schools in the area performing to a 'good' standard.

Shopping


Ideally situated within easy reach of Rothwell, Wakefield, Castleford and Leeds, you'll find a varied choice of bars and restaurants as well as independent and high street shops just a short journey away. Asda Superstore and Morrison's are both around 4 miles away where you can get all your essentials and weekly shop.

Transport


An ideal location for commuting with excellent links to Wakefield, Leeds and beyond. You'll find good links to the M1 and junction 31 of the M62 is located just 4 miles south, providing access to the highway network. The closest train stations are located in Woolesford (3 miles) and Castleford (4 miles). The nearest bus station is in Castlesford (3.6 miles).

Health


St Oswald's View is surrounded by a choice of healthcare facilities, ensuring you have everything you need within easy reach. Pinderfields nhs Hospital is just 5.7 miles away. There is also a choice of doctor's surgeries and medical centres nearby.

Opening Hours


Open Tuesday-Sunday 10.00am to 5.30pm, Monday 12.30pm to 5.30pm

Directions


Leave the M62 at J30. Travel along A642 Wakefield Road. Turn right at roundabout (Rothwell Leisure Centre is on the right). Continue onto A639 Methley Lane for 1.8 miles. Turn left onto Church Lane. Continue along Church Lane, go under bridge. Take the first left on Church Lane onto Micklefield Road. Go straight on at the mini roundabout onto Station Road. Continue on Station road.

Disclaimer


Please note that all images (where used) are for illustrative purposes only.

Floor Plans

Property Location

Marketed by Barratt Homes - St Oswald's View



By submitting this form, you accept our Terms of Use.

Disclaimer Property descriptions and related information displayed on this page are marketing materials provided by Barratt Homes - St Oswald's View. estateagents365.uk does not warrant or accept any responsibility for the accuracy or completeness of the property descriptions or related information provided here and they do not constitute property particulars. Please contact Barratt Homes - St Oswald's View for full details and further information.