Semi-detached house for sale in Leeds LS17, 4 Bedroom

Leeds, Leeds, UK

Quick Summary

Property Type:
Semi-detached house
Status:
For sale
Price
£ 419,950
Beds:
4
Baths:
2
Recepts:
2
County
West Yorkshire
Town
Leeds
Outcode
LS17
Location
Primley Park Grove, Leeds LS17
Marketed By:
Your Move - Barrett Hynes
Posted
2024-06-01
LS17 Rating:





More Info?
Please contact Your Move - Barrett Hynes on 0113 427 8984 or Request Details

Property Description



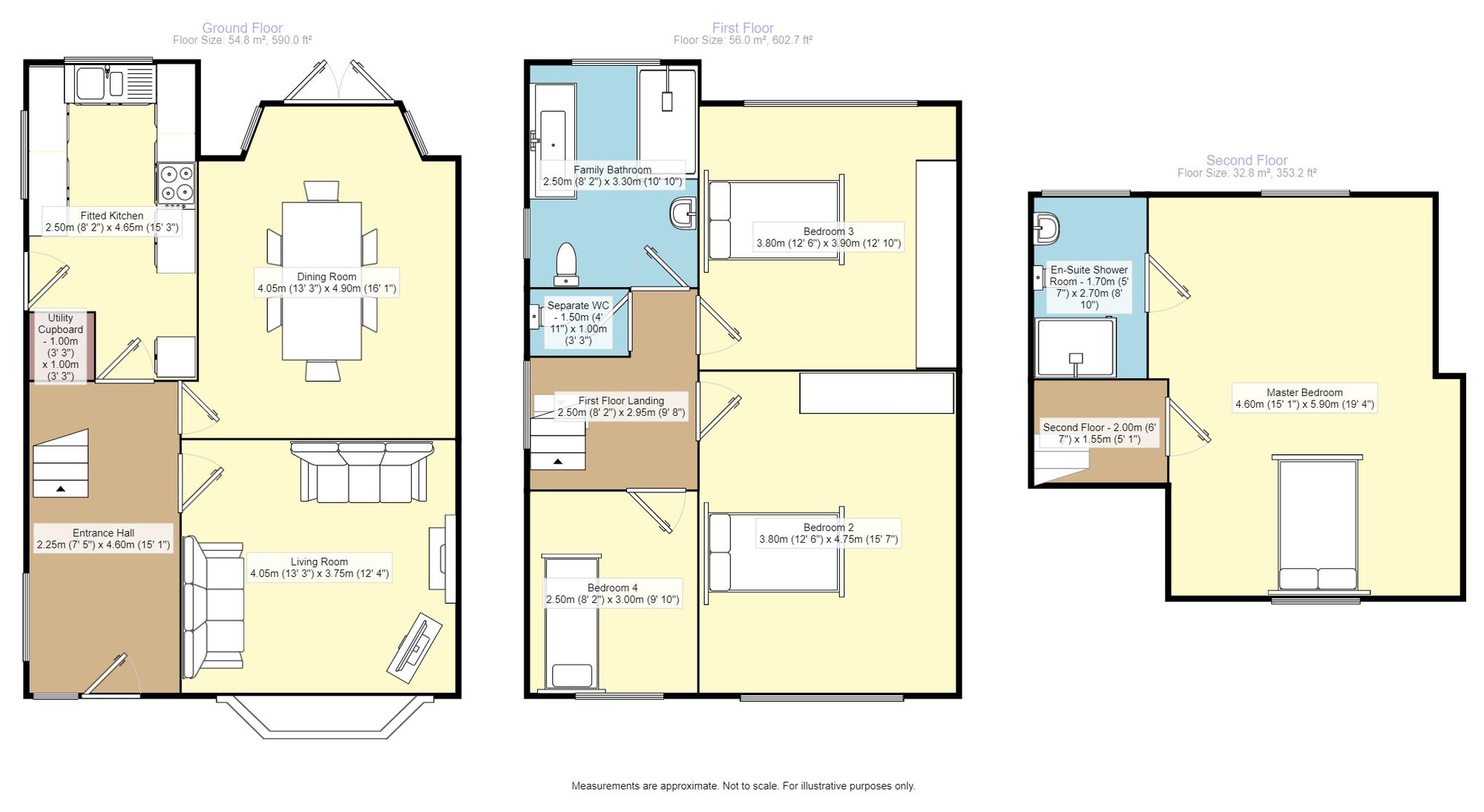
A most impressive and spacious extended semi detached property occupying a very pleasant position within this sought after prime residential area which is particularly well placed for the regions road networks along with local amenities and schools. The accommodation on the ground floor briefly comprises; entrance hall, lovely living room, separate dining room with double doors leading out to the rear garden and a stylish fitted kitchen with a useful utility cupboard. On the first floor there's three double bedrooms (2 with fitted wardrobes) and a fabulous family bathroom with an oval shaped bath, wc, shower cubicle and wash basin, there's also an additional separate wc. Completing the accommodation is the large master bedroom on the second floor which has wardrobes and plenty of eaves storage along with a modern en-suite shower room. Externally there's a garden area to the front, a driveway to the side, a single garage and a well proportioned rear garden, laid predominantly to lawn with a stone flagged patio area. EPC rating D.

Entrance Hall (4.60m x 2.26m)

Living Room (4.36m x 4.06m)

Dining Room (4.92m x 3.64m)

Fitted Kitchen (4.66m x 2.49m)

First Floor Landing

Bedroom 2 (4.74m x 3.88m)

Bedroom 3 (3.92m x 3.68m)

Bedroom 4 (3.02m x 2.53m)

Family Bathroom (3.29m x 2.61m)

Separate WC

Second Floor

Master Bedroom (4.6m (max) x 5.9m (max))

En-Suite Shower Room (2.7m x 1.7m)

Garage

Gardens

Important note to purchasers:

We endeavour to make our sales particulars accurate and reliable, however, they do not constitute or form part of an offer or any contract and none is to be relied upon as statements of representation or fact. Any services, systems and appliances listed in this specification have not been tested by us and no guarantee as to their operating ability or efficiency is given. All measurements have been taken as a guide to prospective buyers only, and are not precise. Please be advised that some of the particulars may be awaiting vendor approval. If you require clarification or further information on any points, please contact us, especially if you are traveling some distance to view. Fixtures and fittings other than those mentioned are to be agreed with the seller.

/3

Floor Plans

Property Location

Marketed by Your Move - Barrett Hynes



By submitting this form, you accept our Terms of Use.

Disclaimer Property descriptions and related information displayed on this page are marketing materials provided by Your Move - Barrett Hynes. estateagents365.uk does not warrant or accept any responsibility for the accuracy or completeness of the property descriptions or related information provided here and they do not constitute property particulars. Please contact Your Move - Barrett Hynes for full details and further information.