Semi-detached house for sale in Goole DN14, 3 Bedroom

Goole, Goole, UK

Quick Summary

Property Type:
Semi-detached house
Status:
For sale
Price
£ 212,995
Beds:
3
Baths:
2
Recepts:
1
County
East Riding of Yorkshire
Town
Goole
Outcode
DN14
Location
"Norbury" at Station Road, Carlton, Goole DN14
Marketed By:
Barratt Homes - Carlton Green
Posted
2024-04-07
DN14 Rating:





More Info?
Please contact Barratt Homes - Carlton Green on 01702 787511 or Request Details

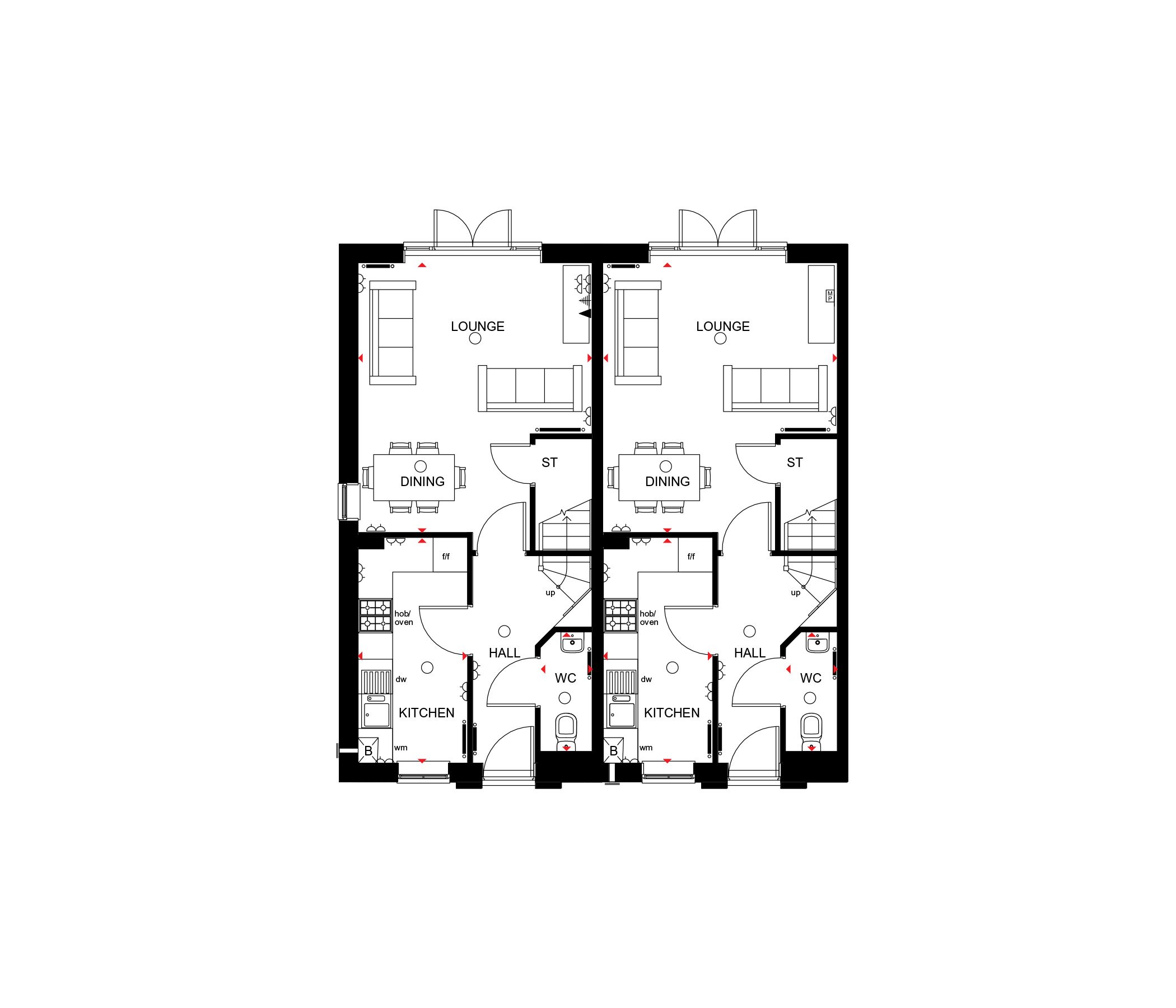
Property Description

This spacious two and a half storey, three bedroom home features and open-plan lounge and dining room with French doors opening onto the rear garden. The stylish kitchen comes with quality units and appliances in range of finishes. The first floor has two double bedrooms and a dual access family bathroom. The master bedroom is located on the second floor and features an en suite shower room.

Rooms


G
  • Kitchen (3910mm x 1900mm (12'9'' x 6'2''))
  • Lounge / Dining (4056mm x 4991mm (13'3'' x 16'4''))
  • Wc (897mm x 2272mm (2'11'' x 7'5''))
1
  • Bedroom 2 (Double) (2965mm x 4056mm (9'8'' x 13'3''))
  • Bedroom 3 (Double) (3386mm x 4056mm (11'1'' x 13'3''))
  • Bathroom (2146mm x 1698mm (7'0'' x 5'6''))
2
  • Bedroom 1 (Double) (4056mm x 8673mm (13'3'' x 28'5''))
  • Ensuite 1 (1858mm x 2799mm (6'1'' x 9'2''))

About Carlton Green


Great if you're a first time buyer or growing family, Carlton Green is a modern collection of 2,3 & 4 bedroom homes in the small village of Carlton, near Selby.
At Carlton Green you'll be able to enjoy good local schools, as well as handy commuter links into York, Leeds, Hull and Doncaster. Situated just 10 minutes from Selby, you'll have easy access to all the local amenities that Carlton and the surrounding towns have to offer.
Register your details online to be kept up-to-date with the latest news and offers.

Leisure


At Carlton Green you can enjoy life in a quiet location while still being close to all the amenities needed for a convenient lifestyle. You’ll be close to local pubs and shops and just a short trip to surrounding towns that offer entertainment and leisure for all the family to enjoy.

Education


Carlton Green is within close proximity of a number of outstanding and good local schools including Carlton-in-Snaith Community Primary School which is less than 1 mile away. Other schools include Camblesforth Community Primary School, Holy Family Catholic High School and The Snaith School.

Shopping


Ideally located with Selby town centre just a short drive away. Here you will find all you need for everyday life. There’s a selection of shops and banks as well as cosy cafés, modern restaurants and vibrant bars. A market is held in Market Place the third Saturday of every month with fresh fruit, cakes, clothing and a range of other goods.

Transport


Carlton has excellent transport links, with the A63 and M62 close by, neighbouring cities are just a stone's throw away. Selby train station is less than 6 miles from Carlton Green which runs frequent trains to cities such as York, Leeds and Doncaster.

Health


Residents of Carlton Green can take advantage of being close to The Snaith and Rawcliffe Medical Group with Selby War Memorial Hospital just a short drive away.

Opening Hours


Monday 12.30-17.30, Tuesday - Sunday 10.00-17.30

Directions


From A19
- Head south on A19 towards Carr Ln
- Continue on A19
- At the roundabout, take the 2nd exit onto A63
- Continue on A63
- At the roundabout, take the 1st exit onto Bawtry Rd/A1041
- At the roundabout, take the 2nd exit onto Station Rd/A1041

Disclaimer


Please note that all images (where used) are for illustrative purposes only.

Floor Plans

Property Location

Marketed by Barratt Homes - Carlton Green



By submitting this form, you accept our Terms of Use.

Disclaimer Property descriptions and related information displayed on this page are marketing materials provided by Barratt Homes - Carlton Green. estateagents365.uk does not warrant or accept any responsibility for the accuracy or completeness of the property descriptions or related information provided here and they do not constitute property particulars. Please contact Barratt Homes - Carlton Green for full details and further information.