Semi-detached house for sale in Glasgow G44, 3 Bedroom

Glasgow, Glasgow, UK

Quick Summary

Property Type:
Semi-detached house
Status:
For sale
Price
£ 235,000
Beds:
3
Baths:
1
Recepts:
1
County
Glasgow
Town
Glasgow
Outcode
G44
Location
Brunton Street, Cathcart, Glasgow G44
Marketed By:
Clyde Property, Shawlands
Posted
2024-04-20
G44 Rating:





More Info?
Please contact Clyde Property, Shawlands on 0141 376 9406 or Request Details

Property Description

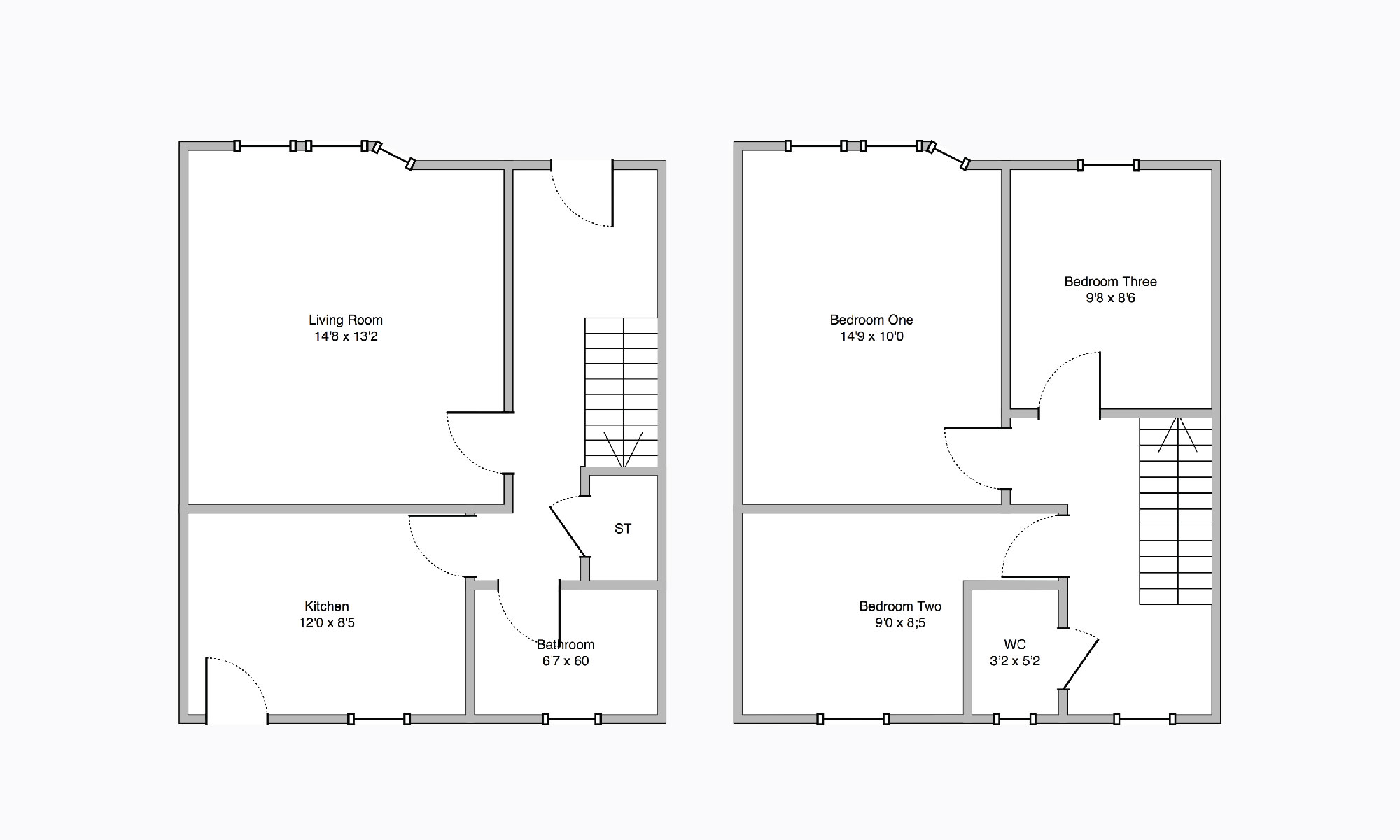
HD Property Video Available. Occupying a sought after setting within Cathcart this lovely Semi Detached three bedroom villa features a delightful rear garden, driveway parking and is a fantastic example of a family home. Internally the property has been decorated in neutral colours throughout and offers flexible family accommodation. In brief the accommodation extends to: Entrance vestibule into welcoming reception hallway with under stair store cupboards, front facing lounge with feature fireplace, rear facing kitchen which gives access to the rear garden. The kitchen has been fitted to include a range of wall and floor mounted units and integrated appliances. To complete the lower accommodation there is a three piece bathroom with an corner bath and over hanging shower. The carpeted staircase leads to the first floor which extends to a generously proportioned front facing bedroom with ample space for free standing storage, second double bedroom which is rear facing, front facing third bedroom with storage space and a W/C with wash hand basin. The property is set within a generous plot including driveway parking to the front and a large tiered rear garden, which is enclosed and child friendly. The property is further complimented by gas fired central heating with combination boiler and double glazed windows throughout. EER Rating D

Floor Plans

Property Location

Marketed by Clyde Property, Shawlands


By submitting this form, you accept our Terms of Use.

Disclaimer Property descriptions and related information displayed on this page are marketing materials provided by Clyde Property, Shawlands. estateagents365.uk does not warrant or accept any responsibility for the accuracy or completeness of the property descriptions or related information provided here and they do not constitute property particulars. Please contact Clyde Property, Shawlands for full details and further information.