Flat for sale in Brentwood CM14, 2 Bedroom

Brentwood, Brentwood, UK

Quick Summary

Property Type:
Flat
Status:
For sale
Price
£ 625,000
Beds:
2
Baths:
2
Recepts:
3
County
Essex
Town
Brentwood
Outcode
CM14
Location
The Clock Tower, The Galleries, Brentwood, Essex CM14
Marketed By:
Balgores Hayes
Posted
2024-04-18
CM14 Rating:





More Info?
Please contact Balgores Hayes on 01277 699241 or Request Details

Property Description

A two/three bedroom duplex apartment forming part of the charming 'Clock Tower'. Extending to almost 1,500 . This exclusive property benefits from two allocated parking spaces, concierge and open planning living at its best.

Overview & Location

The Galleries is a truly remarkable collection of 1,2 and 3 bedroom conversions and new build apartments on the site of the former Warley Hospital originally created by City and Country. The development is within easy access to Brentwood's mainline station with convenient links into London Liverpool Street and the impending arrival of Crossrail. This unique apartment is located at the front of the development providing elevated views over the surrounding locality and into London. One fine feature of this apartment is the original working clock to the former hospital site.

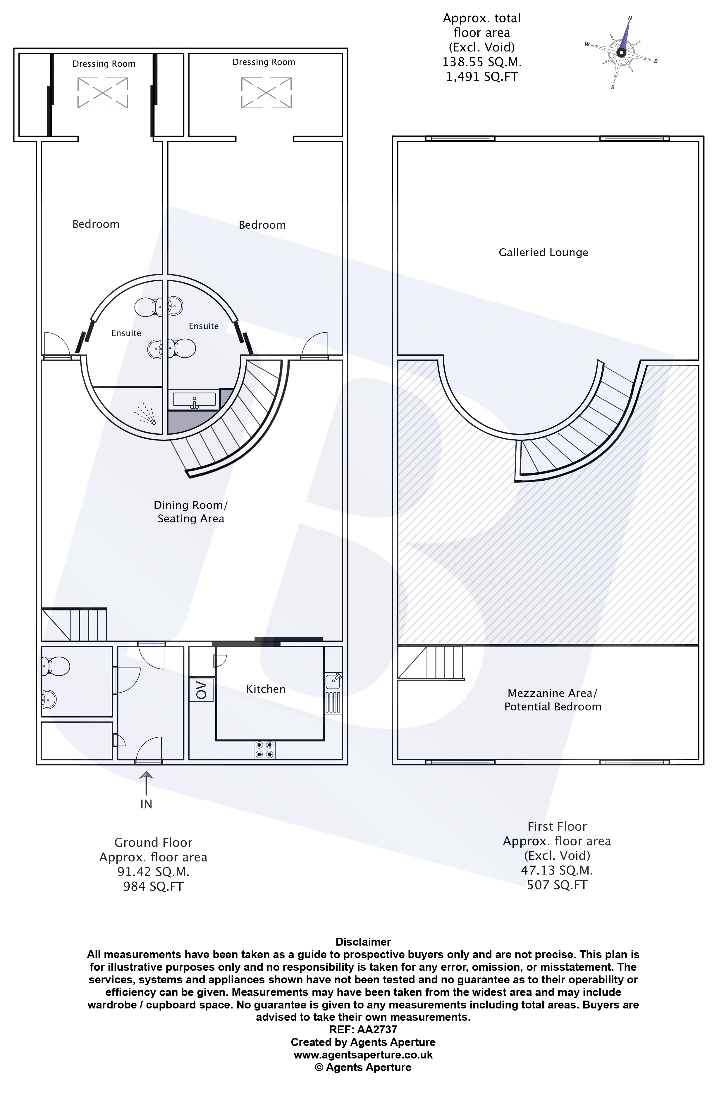
Main Accommodation

Entrance via impressive communal entrance hall with door to reception hallway.

Reception Hallway (8' 0" x 4' 4")

Recess ceiling lights. Single storage cupboard. Tiled floor with underfloor heating. Doors to cloakroom and dining room/seating area.

Cloakroom (4' 9" x 3' 9")

Recess ceiling lights. Wall mounted wash hand basin, low level wc. Wall mounted heated chrome towel rail. Tiled floor with underfloor heating.

Dining Room/Seating Area (20' 6" x 18' 11")

Overall measurement. Full height ceiling with recess ceiling lights. This room creates an ideal area for entertaining and showcases this fine apartment. Staircase to mezzanine area/potential bedroom three and further staircase to galleried lounge. Tiled floor with underfloor heating. Doors to bedrooms and kitchen.

Kitchen (10' 6" x 8' 0")

Recess ceiling lights. Fitted with a contemporary range of units with contrasting stone work surfaces, glass splash backs and recess mood lighting. Inset one bowl sink unit with mixer tap. Integrated appliances include Neff four ring gas hob, Neff oven, Neff microwave, unbranded fridge/freezer, Hotpoint dishwasher and Hotpoint washer dryer. Tiled floor with underfloor heating.

Mezzanine Area/Potential Bedroom Three (20' 4" x 7' 9")

Two high level feature windows. This area provides an elevated view over the main accommodation and can lend itself to a multitude of uses away from the main bedrooms and lounge area for potential third bedroom, study area or additional reception space.

Galleried Lounge (20' 6" x 19' 6")

Overall measurement. Two high level feature windows to rear elevation. Solid oak floor with underfloor heating. Elevated view over the main accommodation. The lounge is a fine feature of this apartment.

Bedroom One (14' 8" x 11' 11")

Recess ceiling lights. Underfloor heating. Open plan to dressing room. Door to ensuite bathroom.

Ensuite Bathroom (8' 1" x 5' 6")

Max. Recess ceiling lights. Suite comprises of tiled bath with shower above, wall mounted wash hand basin and wall mounted low level wc. Tiled floor with underfloor heating.

Dressing Room One (9' 9" x 6' 1")

Lantern style window. Fitted storage cupboards and railing.

Bedroom Two (14' 7" x 8' 3")

Recess ceiling lights. Underfloor heating. Open plan to dressing room. Door to ensuite shower room.

Ensuite Shower Room (9' 4" x 4' 4")

Recess ceiling lights. Suite comprises of walk-in shower with rainfall shower head, wall mounted wash hand basin and wall mounted low level wc. Part tiling to walls and tiled floor with underfloor heating.

Dressing Room Two (10' 4" x 5' 9")

Overall measurement. Lantern style roof light. Two sets of fitted wardrobes. Underfloor heating.

Exterior

The property benefits from two secure under cover parking spaces.

Floor Plans

Property Location

Marketed by Balgores Hayes



By submitting this form, you accept our Terms of Use.

Disclaimer Property descriptions and related information displayed on this page are marketing materials provided by Balgores Hayes. estateagents365.uk does not warrant or accept any responsibility for the accuracy or completeness of the property descriptions or related information provided here and they do not constitute property particulars. Please contact Balgores Hayes for full details and further information.