End terrace house for sale in London SE5, 3 Bedroom

London, London, UK

Quick Summary

Property Type:
End terrace house
Status:
For sale
Price
£ 800,000
Beds:
3
Baths:
2
County
London
Town
London
Outcode
SE5
Location
Cambria Road, London SE5
Marketed By:
Urban Village
Posted
2024-04-08
SE5 Rating:





More Info?
Please contact Urban Village on 020 8022 1468 or Request Details

Property Description

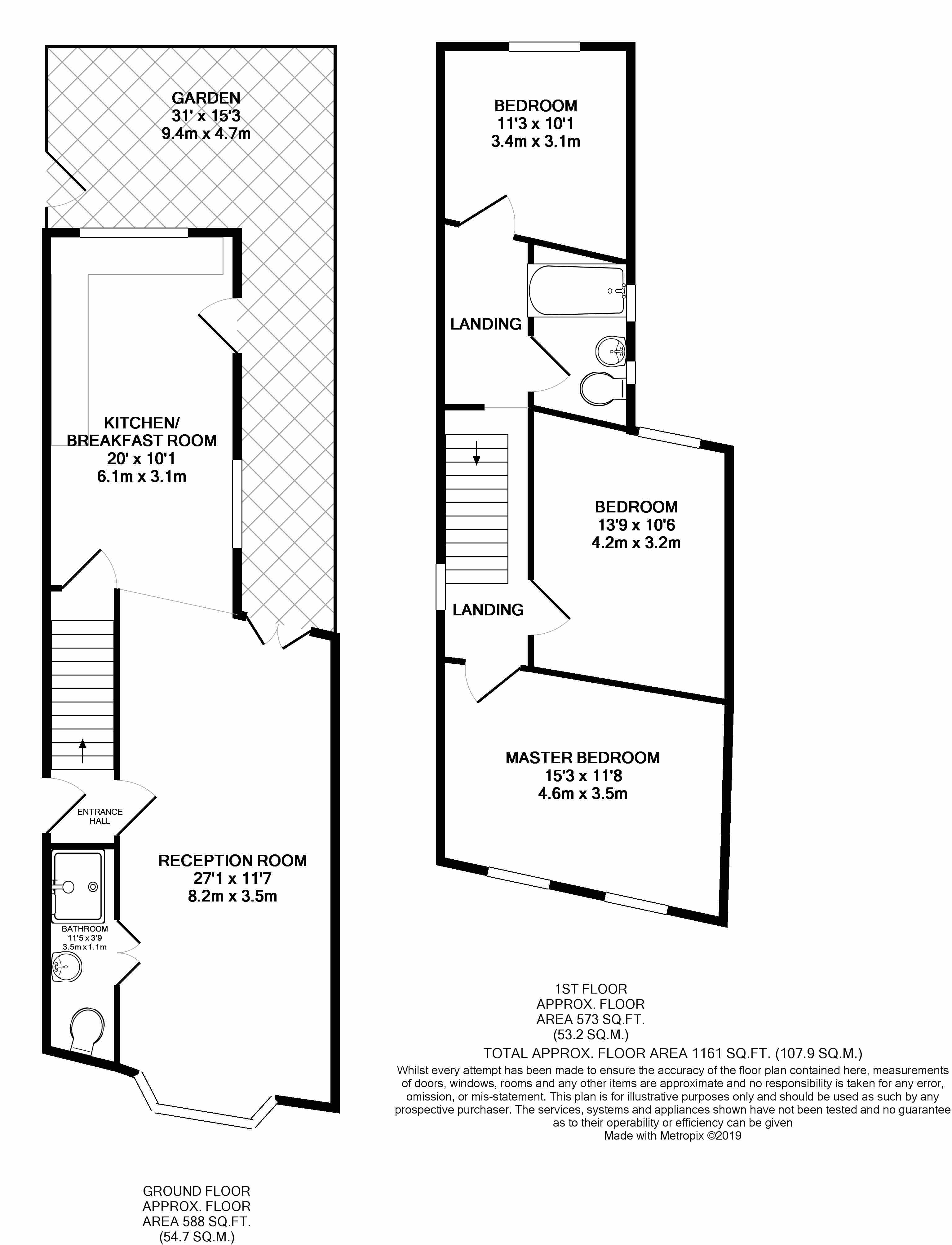
A spacious end terrace Victorian House, located in the popular Ruskin Park area of Denmark Hill. Three double bedrooms, through lounge, extended kitchen and two bathrooms. Side access to rear garden. Potential to covert the loft (stpd). A great location, walking distance to Loughborough junction station, Brixton tube, Ruskin Park, Denmark Hill and Kings College Hospital. Offered chain free, quick sale preferred.

Floor Plans

Property Location

Marketed by Urban Village


By submitting this form, you accept our Terms of Use.

Disclaimer Property descriptions and related information displayed on this page are marketing materials provided by Urban Village. estateagents365.uk does not warrant or accept any responsibility for the accuracy or completeness of the property descriptions or related information provided here and they do not constitute property particulars. Please contact Urban Village for full details and further information.