End terrace house for sale in London SE25, 3 Bedroom

London, London, UK

Quick Summary

Property Type:
End terrace house
Status:
For sale
Price
£ 449,995
Beds:
3
County
London
Town
London
Outcode
SE25
Location
Macclesfield Road, London SE25
Marketed By:
Streets Ahead - Croydon
Posted
2024-04-03
SE25 Rating:





More Info?
Please contact Streets Ahead - Croydon on 020 3478 3454 or Request Details

Property Description

Location


This is a lovely example of a traditional South London family home and it is situated to take advantage of both Croydon's and South Norwood's regeneration. The home itself is a period terraced three bedroom family home which is ready to move into, the accommodation comprises of three bedrooms, with two large reception rooms, a lovely fitted kitchen, two family bathrooms. The property also benefits from a beatifully maintained rear garden.

Superbly located for Arena Tram stop, South Norwood Country Park and local Portland Road shops. Central Croydon is within easy reach via public transport as is Norwood Junction mainline station offering a frequent service to the city of London.

The property is near the Country Park, with uninterrupted views towards Sydenham Hill and the City.There is excellent access to transport; Arena tram stop is 250m away, connecting with Beckenham and East Croydon station. It is within walking distance of Norwood Junction and Elmers End stations with services to Central and North London and Docklands. Nearby schools include 'outstanding'-rated Oasis Ashburton, and Harris South Norwood. Croydon town centre with the Whitgift and Centrale shopping centres are just a short walk from East Croydon station. The local shops of Portland Road, Bywood Road, Croydon Arena, South Norwood Leisure Centre are all close at hand.


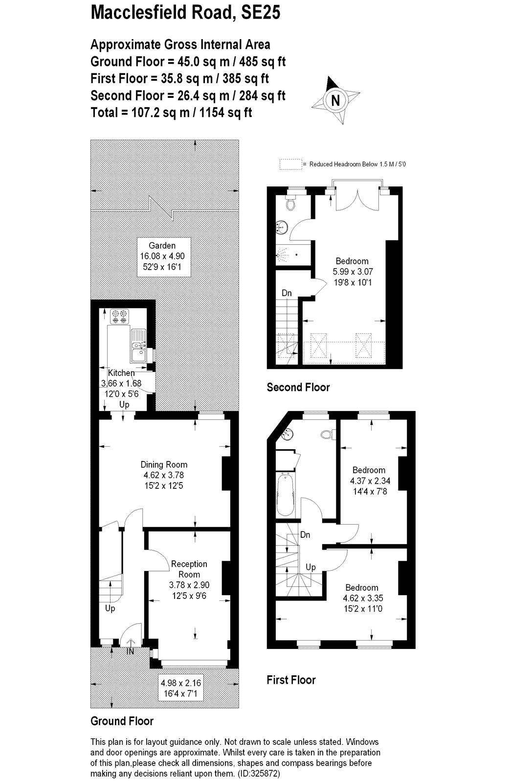
Floor Plans

Property Location

Marketed by Streets Ahead - Croydon


By submitting this form, you accept our Terms of Use.

Disclaimer Property descriptions and related information displayed on this page are marketing materials provided by Streets Ahead - Croydon. estateagents365.uk does not warrant or accept any responsibility for the accuracy or completeness of the property descriptions or related information provided here and they do not constitute property particulars. Please contact Streets Ahead - Croydon for full details and further information.