End terrace house for sale in Leicester LE8, 3 Bedroom

Leicester, Leicester, UK

Quick Summary

Property Type:
End terrace house
Status:
For sale
Price
£ 250,000
Beds:
3
County
Leicestershire
Town
Leicester
Outcode
LE8
Location
Orchard Road, Willoughby Waterleys, Leicester LE8
Marketed By:
EweMove Sales & Lettings - Blaby
Posted
2018-11-17
LE8 Rating:





More Info?
Please contact EweMove Sales & Lettings - Blaby on 0116 484 9779 or Request Details

Property Description

A three bedroom end of terrace house situated in a the very popular and sought-after village of Willoughby Waterleys
The property is located in a quite cul-de-sac in the heart of the village and just a walk to the village pub.
The property consists of front garden and off-road parking for one car with more on street parking.
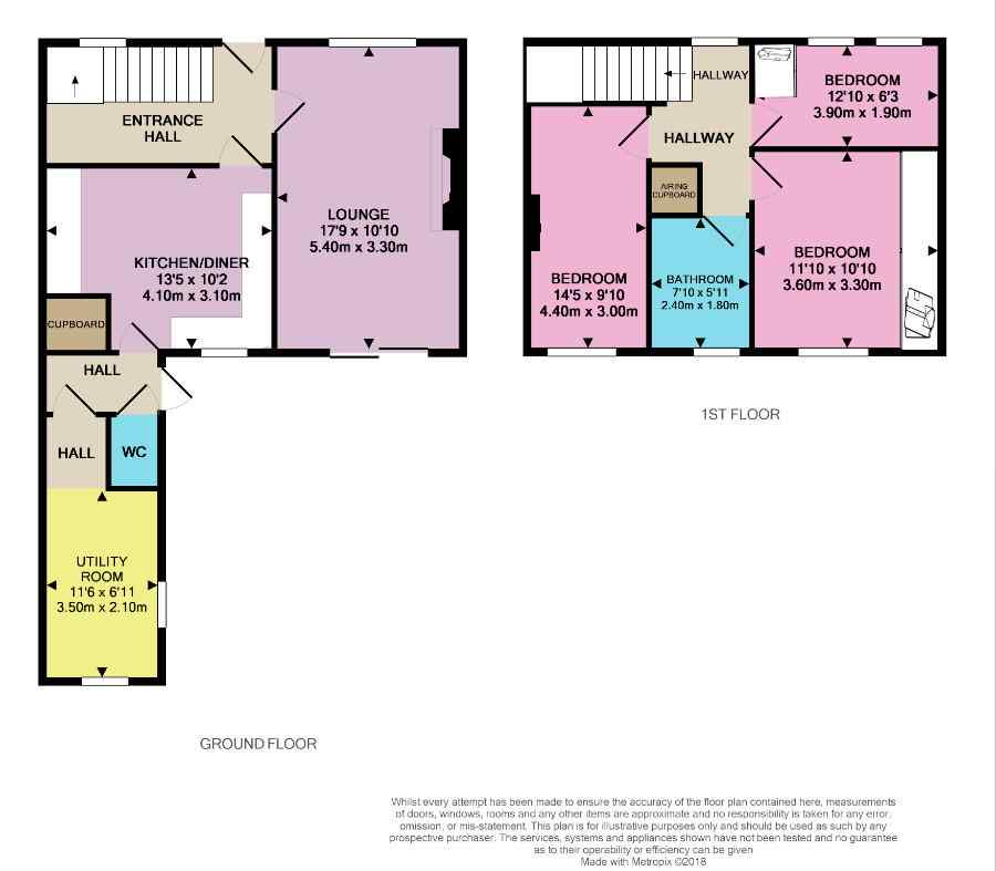
As you enter the property from the front there is an entrance hallway, lounge, kitchen diner, WC and utility room to the first floor.
The Lounge area has a gas fireplace with rear patio doors leading to the patio area and rear garen
There is a good sized kitchen diner with built in appliances
To the rear of the property there is a large utility room/study/workshop
The first floor comprises of 3 bedrooms and a family bathroom.
The property has a well established rear garden with patio area and backs onto open fields.
Be quick as this property wont be about for long

This home includes:

  • Lounge

    5.4m x 3.3m (17.8 sqm) - 17' 8" x 10' 9" (191 sqft)

    Patio doors to garden
    Gas Fire

  • Kitchen / Dining Room

    3.1m x 4.09m (12.7 sqm) - 10' 2" x 13' 5" (136 sqft)

  • Utility Room

    3.5m x 2.1m (7.3 sqm) - 11' 5" x 6' 10" (79 sqft)

  • Bedroom 1

    3.3m x 3.6m (11.8 sqm) - 10' 9" x 11' 9" (127 sqft)

    Built in Wardrobes

  • Bedroom 2

    4.4m x 3m (13.2 sqm) - 14' 5" x 9' 10" (142 sqft)

  • Bedroom 3

    3.9m x 1.9m (7.4 sqm) - 12' 9" x 6' 2" (79 sqft)

  • Bathroom

    2.4m x 1.8m (4.3 sqm) - 7' 10" x 5' 10" (46 sqft)

  • Please note, all dimensions are approximate / maximums and should not be relied upon for the purposes of floor coverings.


Marketed by EweMove Sales & Lettings (Blaby) - Property Reference 18277

Floor Plans

Property Location

Marketed by EweMove Sales & Lettings - Blaby


By submitting this form, you accept our Terms of Use.

Disclaimer Property descriptions and related information displayed on this page are marketing materials provided by EweMove Sales & Lettings - Blaby. estateagents365.uk does not warrant or accept any responsibility for the accuracy or completeness of the property descriptions or related information provided here and they do not constitute property particulars. Please contact EweMove Sales & Lettings - Blaby for full details and further information.