End terrace house for sale in Ilford IG6, 7 Bedroom

Ilford, Ilford, UK

Quick Summary

Property Type:
End terrace house
Status:
For sale
Price
£ 650,000
Beds:
7
Baths:
1
Recepts:
1
County
Essex
Town
Ilford
Outcode
IG6
Location
New North Road, Ilford IG6
Marketed By:
Balgores Dagenham
Posted
2024-04-17
IG6 Rating:





More Info?
Please contact Balgores Dagenham on 020 8033 4480 or Request Details

Property Description

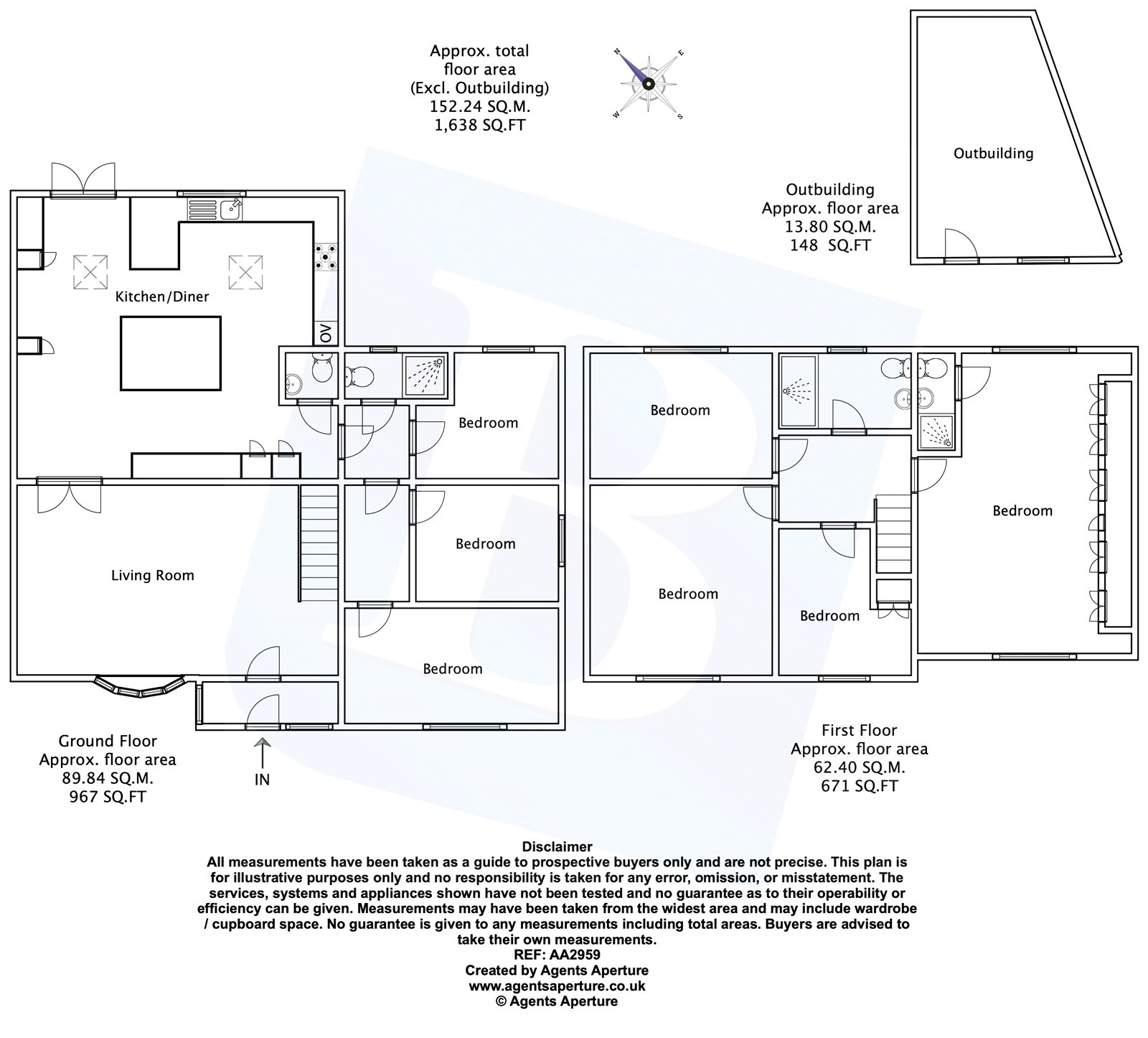
We are pleased to present this extended seven bedroom end terrace which benefits from a 12th living room, 18ft kitchen/diner, ground floor wc, bathroom, shower room and a en-suite. This property also benefits from off street parking for up to three vehicles. Being conveniently located for Coppice Primary School and The Forest Academy also all local amenities.

Reception Room

12.01' x 20

Kitchen/Diner

18' x 16

WC

5' x 3.06

First Floor Landing

Doors to accomodation.

Bedroom One

11' x 19.07

En-Suite

2.11' x 6.02

Bedroom Two

11.11' x 12.02

Bedroom Three

11' x 18.08

Bedroom Four

9.01' x 8.10

Bedroom Five

9.04' x 7.09

Bedroom Six

9.07' x 8.01'
Double glazed window to side.

Bedroom Seven

7.10' x 13

Shower Room

2.11' x 16.06

Bathroom

5.08' x 8.08

Front Of Property

Off street parking for three vehciles.

Floor Plans

Property Location

Marketed by Balgores Dagenham


By submitting this form, you accept our Terms of Use.

Disclaimer Property descriptions and related information displayed on this page are marketing materials provided by Balgores Dagenham. estateagents365.uk does not warrant or accept any responsibility for the accuracy or completeness of the property descriptions or related information provided here and they do not constitute property particulars. Please contact Balgores Dagenham for full details and further information.