End terrace house for sale in Bristol BS15, 4 Bedroom

Bristol, Bristol, UK

Quick Summary

Property Type:
End terrace house
Status:
For sale
Price
£ 299,950
Beds:
4
Baths:
1
Recepts:
2
County
Bristol
Town
Bristol
Outcode
BS15
Location
Cross Street, Kingswood, Bristol BS15
Marketed By:
Ocean - Downend
Posted
2024-05-14
BS15 Rating:





More Info?
Please contact Ocean - Downend on 0117 444 9476 or Request Details

Property Description

Ocean are please to offer this 4 bedroom end of terrace house is situated in Kingswood and has a loft conversion all completed to regulations. It also boasts a workshop (half garage not big enough for a car) to the side and has a much larger than average rear garden.

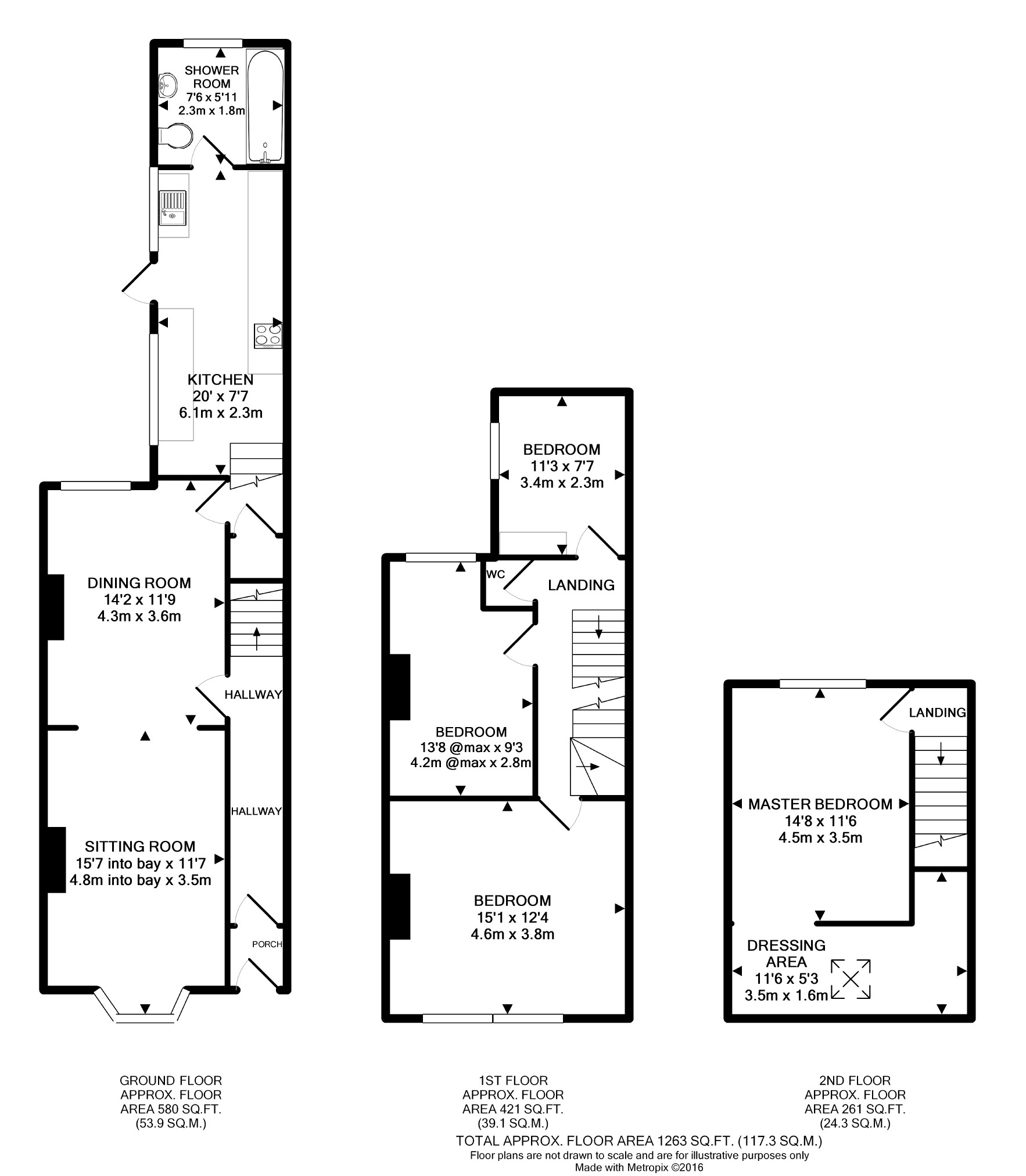
Spread over 3 floors the master bedroom to the top of the house has some fantastic views over the hills of Kingwood as well as a walk in wardrobe/dressing area. This area also has potential in the future to put in an en-suite.

The 1st floor has 3 bedrooms and a toilet. The ground floor has a sitting room with bay window and feature fireplace, dining room, kitchen/breakfast room and a bathroom.

Additionally this property includes gas central heating and double glazing. Being in a convenient location this is a deceptively spacious house that is close to shops, schools and other amenities.

Porch (1.25m x 0.88m (4'1" x 2'11"))

Entrance (3.72m x 0.89m (12'2" x 2'11"))

Sitting Room (4.75m in to bay x 3.5m (15'7" in to bay x 11'6"))

Dining Room (4.31m x 3.59m (14'2" x 11'9"))

Kitchen/Breakfast Room (6.10m x 2.30m (20'0" x 7'7"))

Master Bedroom (4.48m x 3.51m (14'8" x 11'6"))

Dressing Area (3.51m x 1.59m (11'6" x 5'3"))

Bedroom 2 (4.60m x 3.76m (15'1" x 12'4"))

Bedroom 3 (4.16m x 2.82m (13'8" x 9'3"))

Bedroom 4 (3.43m x 2.30m (11'3" x 7'7"))

Wc (1.17m x 0.65m (3'10" x 2'2"))

Bathroom (2.29m x 1.80m (7'6" x 5'11"))

You may download, store and use the material for your own personal use and research. You may not republish, retransmit, redistribute or otherwise make the material available to any party or make the same available on any website, online service or bulletin board of your own or of any other party or make the same available in hard copy or in any other media without the website owner's express prior written consent. The website owner's copyright must remain on all reproductions of material taken from this website.

Floor Plans

Property Location

Marketed by Ocean - Downend



By submitting this form, you accept our Terms of Use.

Disclaimer Property descriptions and related information displayed on this page are marketing materials provided by Ocean - Downend. estateagents365.uk does not warrant or accept any responsibility for the accuracy or completeness of the property descriptions or related information provided here and they do not constitute property particulars. Please contact Ocean - Downend for full details and further information.