Detached house for sale in Pickering YO18, 4 Bedroom

Pickering, Pickering, UK

Quick Summary

Property Type:
Detached house
Status:
For sale
Price
£ 625,000
Beds:
4
County
North Yorkshire
Town
Pickering
Outcode
YO18
Location
Newton Upon Rawcliff, Pickering YO18
Marketed By:
Hunters - Malton
Posted
2018-09-24
YO18 Rating:





More Info?
Please contact Hunters - Malton on 01653 609004 or Request Details

Property Description

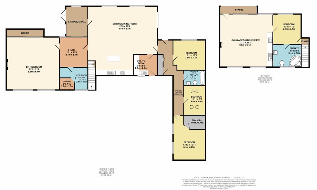
This four bedroomed property, was converted from a barn and farmyard approximately Forty years ago and maintains many features throughout the property such as vaulted-beamed ceilings, stone floors, floor to ceiling windows and exposed stone walls, whilst enjoying a modern bespoke kitchen, three bathrooms and has accommodation comprising; Double entrance door into the entrance hall, which in turn leads to the impressive living area with stone floors, vaulted ceiling and exposed beams giving you a fantastic feeling of space. There is a bespoke solid wood kitchen with central unit and breakfast bar and a door to the utility. To the left hand-side of the property is a side entrance leading to three bedrooms. Master bedroom has a walk-in-wardrobe, there are two other double bedrooms with vaulted ceilings and exposed beams, also the house bathroom. The office is a versatile room that could be used for different purposes, but also gives access to the Wet room/Sauna and the large sitting room which measures twenty one feet square with an Inglenook fireplace and arched floor to ceiling windows to the front elevation.The annexe is to the first floor which is accessed by the Haylofts original stone steps, which in turn leads to an open plan living space with fitted kitchen, double bedroom and En-suite, with views over open fields and hills from the living area to the rear of the house. Outside is a driveway leading to a large parking area to the rear. A west facing rear garden with different seating points to enjoy the surrounding views, peace and tranquillity of this beautiful area. Beyond that is a 1.8 acre grass paddock with planning permission for a stable block of two. The heating is oil fired, but also has Calor gas to the property and Solar panels situated on the roof to the rear of the house.

Entrance hall
Exposed stone walls with paved flooring and exposed wooden ceiling;

living area
A fantastic feeling of space in this room with vaulted ceilings and exposed beams, the room has a York stone flooring and windows overlooking the rear of the property. The open plan kitchen has a Howdens bespoke range of solid oak wall and base units with integral appliances to include a Rayburn, separate gas hob, electric oven, sink with mixer taps, central preparation unit with second sink, breakfast bar and seats. There is also a door which leads to;

utility room
Howdens solid oak range of wall and base units, sink with mixer taps plumbing for washing machine, a stable door opens to the front of the property and a York stone floor.

Side entrance
Tiled floor with built in cupboard space which has plumbing for the washing machine and space for a tumble dryer, utilities and coats. Which in turn leads to;

bedroom
Vaulted ceiling with exposed beams to the ceiling, laminatefloor boards and stone sill to the window.

Bedroom
Vaulted ceiling with beams, laminate flooring and Velux window for light.

Master bedroom
Vaulted ceiling with exposed beams, laminate flooring, Velux window for light and a walk-in-wardrobe with Elfa fittings including hanging rails, shelving and pull out drawers.

House bathroom
A white three piece suite comprising of a bath with electric shower over, low level W/C, wash hand basin and a heated towel rail, tiled floor and walls.

Office/gym
Currently used as an office this room leads to the sitting room, wet room/sauna and has a beamed ceiling with quarry tiled floor.

Wet room/sauna
A large open shower area fully tiled walls and floor, with a shower over, wash hand basin, low level W/C, hanging rails, adjustable ceiling and floor lighting and a Finnholme Sauna to seat four people.

Sitting room
Twenty one feet square this spacious room has an open grate fire with stone surround, copper hood and stone hearth. There is a solid oak floor and floor to ceiling windows overlooking the front of the property. It also hard wired for Wifi/TV/Media.

Annexe
Accessed by the original outside “Hayloft” steps, is an open plan living area with an open plan fitted kitchen with integral appliances to include; cooker, sink with mixer taps, space to accommodate an undercounter fridge and plumbing for washing machine/dishwasher. The sitting/dining area has a log burning stove with stone fire surround and stone hearth. The kitchen area has laminate flooring with the remainder carpeted

bedroom
Double bedroom with carpeted floor and dual aspect windows.

En-suite
A white three piece suite comprising of a large corner bath with shower over, low level W/C, wash hand basin and Rhino flooring in white washed oak.

Outside
Gravelled drive leads to the side of the property and opens up to a parking area for multiple vehicles measuring approximately 30 x 70 feet. There are various patios area’s set up around the garden for Alfresco afternoons and evenings to enjoy the surrounding views. There is also a sizeable pond with a rockery water feature and an area set to lawn and well established mature shrub and flower bed borders. A gate leads to a 1.8 acre grass paddock ideal for horses, sheep or any type of grazing with a post and rail fence to the perimeter and planning permission for a Stable block of two.


Floor Plans

Property Location

Marketed by Hunters - Malton



By submitting this form, you accept our Terms of Use.

Disclaimer Property descriptions and related information displayed on this page are marketing materials provided by Hunters - Malton. estateagents365.uk does not warrant or accept any responsibility for the accuracy or completeness of the property descriptions or related information provided here and they do not constitute property particulars. Please contact Hunters - Malton for full details and further information.