Detached house for sale in Livingston EH54, 5 Bedroom

Livingston, Livingston, UK

Quick Summary

Property Type:
Detached house
Status:
For sale
Price
£ 354,995
Beds:
5
Baths:
3
Recepts:
3
County
West Lothian
Town
Livingston
Outcode
EH54
Location
"Napier" at Dedridge East Industrial Estate, Abbotsford Rise, Livingston EH54
Marketed By:
Miller Homes - Fairnielea
Posted
2019-02-15
EH54 Rating:





More Info?
Please contact Miller Homes - Fairnielea on 01506 354903 or Request Details

Property Description

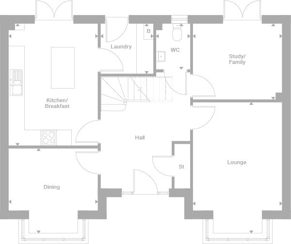
The magnificent entrance hall sets the tone for a home filled with premium features. Both the lounge and the dining room include bay windows, twin french doors open out from the breakfasting kitchen and the study/family room, and two of the bedrooms are en-suite.

Rooms


Ground
  • Kitchenbreakfast (3.443 x 4.701 m)
    max/max
  • Lounge (3.443 x 5.081 m)
    max/max
  • Dining (3.443 x 3.297 m)
    max/max
  • Studyfamily (3.443 x 2.916 m)
    max/max
  • Laundry (2.027 x 1.932 m)
  • WC (1.297 x 1.757 m)
    max/max
First
  • Master Bedroom (3.466 x 2.6 m)
    max
  • Ensuite 1 (1.75 x 1.955 m)
  • Bedroom 2 (3.443 x 2.795 m)
    max
  • Ensuite 2 (1.853 x 1.75 m)
    max/max
  • Bedroom 3 (3.443 x 3.82 m)
    max/max
  • Bedroom 4 (2.903 x 2.475 m)
    max
  • Bedroom 5 (3.47 x 1.945 m)
  • Bathroom (2.138 x 1.955 m)
    max/max

About Fairnielea


Launching in Autumn 2018 - Register now for new, updates and plot releases

Close to the West Lothian countryside on the edge of Livingston, half an hour’s drive from Edinburgh city centre, this superb neighbourhood of modern, energy-efficient three, four and five bedroom homes combines fresh air and wide horizons with one of the most convenient locations in central Scotland. Offering easy access to Glasgow, the Queensferry Crossing and Edinburgh Airport, this is both a quiet residential area and a superb strategic base.

Welcome to Fairnielea...

Directions


From Edinburgh via the A71

Leave Edinburgh by Calder Road, following signs for Kilmarnock through the Sighthill and Bankhead roundabouts and the Calder Junction. Stay on the A71 for eight miles, passing through two more Lizzie Brice’s Roundabout take the first exit and carry on for two miles, through the Newpark roundabout, then at the Wilderness roundabout take the third exit into Fairnielea.

From the M8

Leave the M8 at junction 3 following signs for Livingston via the A899. Stay on the A899 for two and a half miles. At Lizzie Brice’s Roundabout take the third exit and carry on for another two miles, passing through the Newpark roundabout, and at the Wilderness roundabout take the third exit into Fairnielea.

Sat Nav: EH54 9BU

Disclaimer


The house plans shown above, including the room specifications, may vary from development to development and are provided for general guidance only. For more accurate and detailed plans for a specific plot, please check with your local Miller Homes sales adviser. Carpets and floor coverings are not included in our homes as standard.

Floor Plans

Property Location

Marketed by Miller Homes - Fairnielea



By submitting this form, you accept our Terms of Use.

Disclaimer Property descriptions and related information displayed on this page are marketing materials provided by Miller Homes - Fairnielea. estateagents365.uk does not warrant or accept any responsibility for the accuracy or completeness of the property descriptions or related information provided here and they do not constitute property particulars. Please contact Miller Homes - Fairnielea for full details and further information.