Detached house for sale in Liverpool L37, 4 Bedroom

Liverpool, Liverpool, UK

Quick Summary

Property Type:
Detached house
Status:
For sale
Price
£ 460,000
Beds:
4
Baths:
3
Recepts:
3
County
Merseyside
Town
Liverpool
Outcode
L37
Location
Edenhurst Drive, Formby, Liverpool L37
Marketed By:
EweMove Sales & Lettings - Formby
Posted
2018-12-21
L37 Rating:





More Info?
Please contact EweMove Sales & Lettings - Formby on 01704 206684 or Request Details

Property Description

This thoughtfully extended, four bed detached house offers plenty of flexible space and could provide you with the perfect family home. The property is situated in a quiet corner of Formby, with woodland walks and the beach on your doorstep, and excellent schools and local amenities nearby. Contact us 24/7 to arrange a viewing.

Enter this lovely home via the porch and into the hallway, where the feeling of spaciousness is immediately apparent. Downstairs the accomodation includes a front dining room, extended rear living room, breakfast kitchen, study and WC.

Upstairs are four large double bedrooms; two of which benefit from fitted wardrobes, and the Master having an ensuite bathroom. There is also a main family shower room.

Outside, is a lovely south facing, private rear garden which is mostly lawned and bordered by mature trees and shrubs. There is also a bloc paved patio area providing the ideal space for outdoor entertaining and with which to sit back and enjoy the garden. To the side of the house is a brick built carport secured by an electric garage door. Beyond the carport is a double garage offering plenty of storage and accessed via the bloc paved driveway. To the front of the property is a further area of lawn and a bloc paved paved driveway providing off road parking for two vehicles. There is also a gate to the side, providing direct access to the rear of the house.

This home includes:

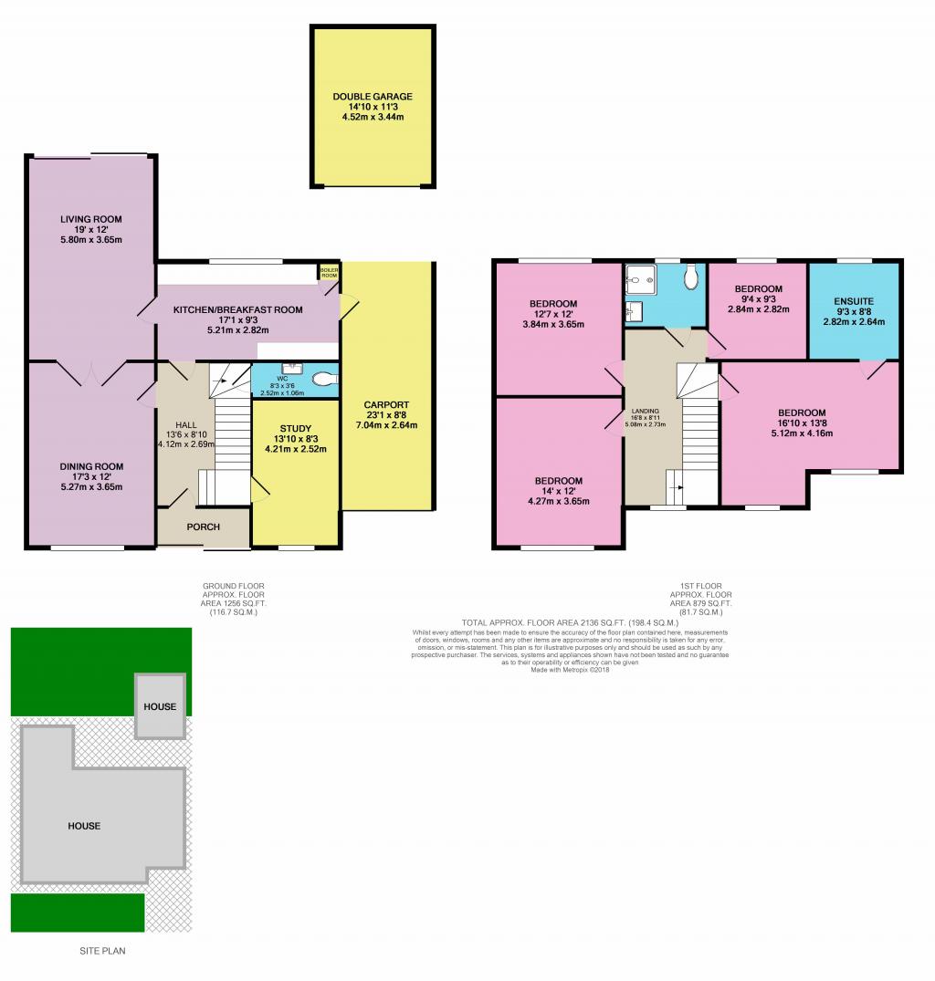
  • Porch

    2.68m x 1.12m (3 sqm) - 8' 9" x 3' 8" (32 sqft)

    Double glazed siding porch doors. Tiled floor.

  • Hall

    Spacious entrance hall. Fitted carpet. Radiator. Staircase to first floor landing. Understairs cupboard.

  • Dining Room

    5.26m x 3.64m (19.1 sqm) - 17' 3" x 11' 11" (206 sqft)

    Double glazed window to front aspect. Fitted carpet. Radiator. Double doors through to rear living room.

  • Living Room

    5.81m x 3.66m (21.2 sqm) - 19' x 12' (228 sqft)

    Double glazed sliding patio doors to the rear aspect providing access to the south facing garden. Fitted carpet. Radiator.

  • Breakfast Kitchen

    4.67m x 2.82m (13.1 sqm) - 15' 3" x 9' 3" (141 sqft)

    Modern kitchen with a range of low and high level fitted base units. Double glazed window to rear aspect. Integrated double gas oven, hob and extractor fan. Sink. Tile effect floor and part tiled walls. UPVC rear door providing access to the car port and garage.

  • Study

    4.21m x 2.5m (10.5 sqm) - 13' 9" x 8' 2" (113 sqft)

    Double glazed window to front aspect. Fitted carpet. Radiator.

  • WC

    2.47m x 0.88m (2.1 sqm) - 8' 1" x 2' 10" (23 sqft)

    WC and sink. Tiled floor and walls. Double glazed frosted window to side aspect.

  • Landing

    Spacious landing providing access to each of the four bedrooms and family bathroom. Loft hatch.

  • Bedroom 1

    5.5m x 3.96m (21.7 sqm) - 18' x 12' 11" (234 sqft)

    Large Master bedroom. Two double glazed windows to front aspect. Fitted wardrobes. Fitted carpet. Radiator. Spot lights. Access to En-suite.

  • Ensuite

    2.78m x 2.63m (7.3 sqm) - 9' 1" x 8' 7" (78 sqft)

    Stylish En-suite with Panelled corner bath, WC, sink with vanity unit, shower cubicle and towel rail. Tiled floor and part tiled walls. Extractor fan.

  • Bedroom 2

    4.28m x 3.67m (15.7 sqm) - 14' x 12' (169 sqft)

    Double bedroom. Fitted wardrobes. Double glazed window to front aspect. Fitted carpet. Radiator.

  • Bedroom 3

    3.88m x 3.65m (14.1 sqm) - 12' 8" x 11' 11" (152 sqft)

    Double Bedroom. Fitted carpet. Double glazed window to rear aspect. Radiator.

  • Bedroom 4

    2.81m x 2.41m (6.7 sqm) - 9' 2" x 7' 10" (72 sqft)

    Double bedroom. Fitted carpet. Double glazed window to rear aspect. Radiator.

  • Family Bathroom

    2.36m x 1.9m (4.4 sqm) - 7' 8" x 6' 2" (48 sqft)

    Shower cubicle, WC and sink. Double glazed frosted window to rear aspect. Tiled floor and walls.

  • Garden

    South facing private rear garden, mainly laid to lawn and bordered by mature trees and shrubs. Side gate.

  • Carport

    Brick built car port to side of the property with an electric garage door, providing access through to the rear of the property.

  • Double Garage

    Double garage accessed via the car port.

  • Please note, all dimensions are approximate / maximums and should not be relied upon for the purposes of floor coverings.


Marketed by EweMove Sales & Lettings (Formby & Crosby) - Property Reference 18958

Floor Plans

Property Location

Marketed by EweMove Sales & Lettings - Formby



By submitting this form, you accept our Terms of Use.

Disclaimer Property descriptions and related information displayed on this page are marketing materials provided by EweMove Sales & Lettings - Formby. estateagents365.uk does not warrant or accept any responsibility for the accuracy or completeness of the property descriptions or related information provided here and they do not constitute property particulars. Please contact EweMove Sales & Lettings - Formby for full details and further information.