Detached house for sale in Crieff PH6, 6 Bedroom

Crieff, Crieff, UK

Quick Summary

Property Type:
Detached house
Status:
For sale
Price
£ 385,000
Beds:
6
Baths:
2
Recepts:
2
County
Perth & Kinross
Town
Crieff
Outcode
PH6
Location
Braco Road, Comrie PH6
Marketed By:
Miller Hendry
Posted
2018-09-21
PH6 Rating:





More Info?
Please contact Miller Hendry on 01764 446966 or Request Details

Property Description

Miller Hendry are delighted to offer for sale this impressive five/six bedroom period Detached Villa boasting many traditional features and enjoying an enviable location in the highly sought after Perthshire village of Comrie.

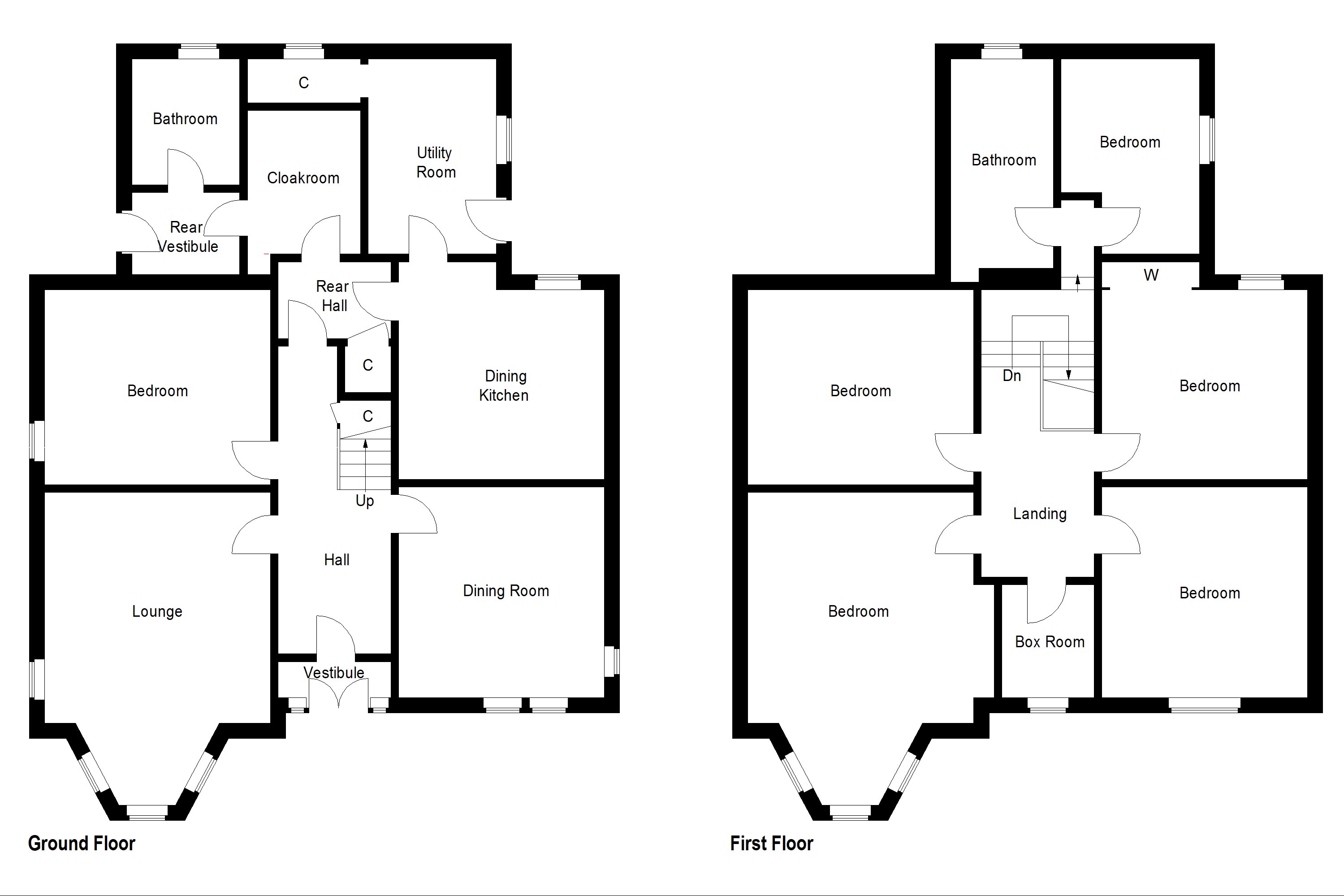
Set over two floors, the property boasts spacious accommodation comprising on the ground floor; Entrance Vestibule with traditional tiled flooring and impressive entrance through to the main hallway, large Lounge with beautiful front facing bay window with wooden surrounds and a feature fireplace, a lovely spacious Dining Room with dual aspect windows, Kitchen and large Utility Room, Cloakroom and a family Bathroom comprising bath, WC and wash hand basin. Also located on the ground floor is a spacious room currently used as a large bedroom but could easily be a further reception room if desired.

Access to the upper level is via the traditional wooden staircase. A mid-level landing leads to a further family Bathroom comprising bath, WC and wash hand basin as well as a large single Bedroom with side facing window. The upper landing leads to the four double bedrooms including the large Master Bedroom with front facing bay window. The other three bedrooms are all of good size with plenty of space for free standing furniture. There is also a useful store room which has front facing windows and could easily be converted into a small study area.

The property maintains many of the traditional features such as the engraved glass entrance door, attractive fireplaces and cornices. Heating is provided by a gas fired boiler system and the property is single glazed throughout. Tigh-na-Greine will undoubtedly be a welcome addition to the market, a property with substantial accommodation and huge potential which we feel is a super opportunity to purchase a forever family home.

Location - The village of Comrie nestles amidst spectacular scenery at the junction of the glens of Artney and Lednock and where the rivers Ruchill and Lednock flow into the Earn. The village has a thriving community with good shopping and primary educational facilities together with a Medical Centre and Dental Practice. Sporting activities include golf, cricket, bowling and of course hill walking, climbing, fishing and watersports at Loch Earn. Comrie lies seven miles to the west of Crieff with good road links and regular bus services making Comrie easily accessible to Perth and Stirling, Edinburgh and Glasgow.

Directions - Heading West through Comrie along the A85, take the left turn onto the B827 (Dalginross), travel to the end of Dalginross out to the right along the Braco Road, Tigh-Na-Greine is located on the right hand side as indicated by our For Sale board.

Accommodation

Entrance Vestibule 7’5” x 3’1” Hallway 20’5” x 7’5” Lounge 19’9” x 15’ Dining Room 14’11” x 12’7” Bedroom Five 15’2” x 12’5” Rear Hallway 7’2” x 3’4” Cloakroom 8’5” x 7’1” Hallway 7’1” x 4’7” Bathroom 7’2” x 6’3” Kitchen 12’10”x 12’5” Utility Room 12’1” x 9’ Mid landing 8’3” x 7’1” Bedroom Six 11’9” x 9’3” Bathroom 13’1” x 6’2”
Landing 11’4” x 7’3” Bedroom One 19’8” x 15’ Bedroom Two 12’11” x 12’10” Bedroom Three 13’8” x 12’7” Bedroom Four 13’11” x 13’9” Store 7’9” x 4’7”
outside - Tigh-na-Greine boasts a private and substantial wrap around garden comprising many fruit trees, lawn, a wide variety of shrubs and bushes and a gravelled driveway leading to a large garage.

Schooling - Catchment area for Comrie and St Dominic’s Primary Schools and Crieff High School within Strathearn Community Campus. Private schooling is available at Morrison’s Academy and Ardvreck Preparatory School.

Items included in sale - For the avoidance of doubt, the pine dresser in the Utility Room and the pulley fittings in the kitchen ceiling are not included in the sale. The Dining Room table and 8 chairs are available under separate negotiation.

Home report value/EPC rating - £385,000/D

council tax band - Band G



Out Of Hours Viewings To arrange a viewing when our office is closed please contact Perthshire Solicitors Property Centre on and they will be happy to help. Their lines are open 8am to 9 pm weekdays, 9am to 4pm on Saturdays and 10am - 4pm on Sundays.

Floor Plans

Property Location

Marketed by Miller Hendry



By submitting this form, you accept our Terms of Use.

Disclaimer Property descriptions and related information displayed on this page are marketing materials provided by Miller Hendry. estateagents365.uk does not warrant or accept any responsibility for the accuracy or completeness of the property descriptions or related information provided here and they do not constitute property particulars. Please contact Miller Hendry for full details and further information.