Detached house for sale in Cambridge CB21, 3 Bedroom

Cambridge, Cambridge, UK

Quick Summary

Property Type:
Detached house
Status:
For sale
Price
£ 549,950
Beds:
3
County
Cambridgeshire
Town
Cambridge
Outcode
CB21
Location
High Street, Great Abington, Cambridge CB21
Marketed By:
Elevation Estate Agents
Posted
2018-09-22
CB21 Rating:





More Info?
Please contact Elevation Estate Agents on 01223 784779 or Request Details

Property Description

Key features:

  • *Help to buy available*
  • Beautifully secluded development
  • Private garden
  • Detached single garage
  • Desirable village location
  • A rare opportunity for a new build Chalet Bungalow
  • Viewings available everyday
  • 10 year NHBC Warranty

Full description:
A stunning detached home in a tucked away position in this select development. Simply stunning property located within the desirable South Cambridge village of Great Abington. Abington is a beautiful village offering all the amenities and desires of every family, with vibrant community with a primary school, village shop, pub, football and cricket team and a large number of local businesses, most of them at Granta Park makes this 3 bedroom detached chalet bungalow.

** help to buy available **

Buy this superb house with the Help to Buy Scheme and only pay a 5% deposit!

Your 5% Deposit: £27,497
Government Equity Loan of 20% : £109,990
Mortgage of 75%: £412,462

Room Measurements:

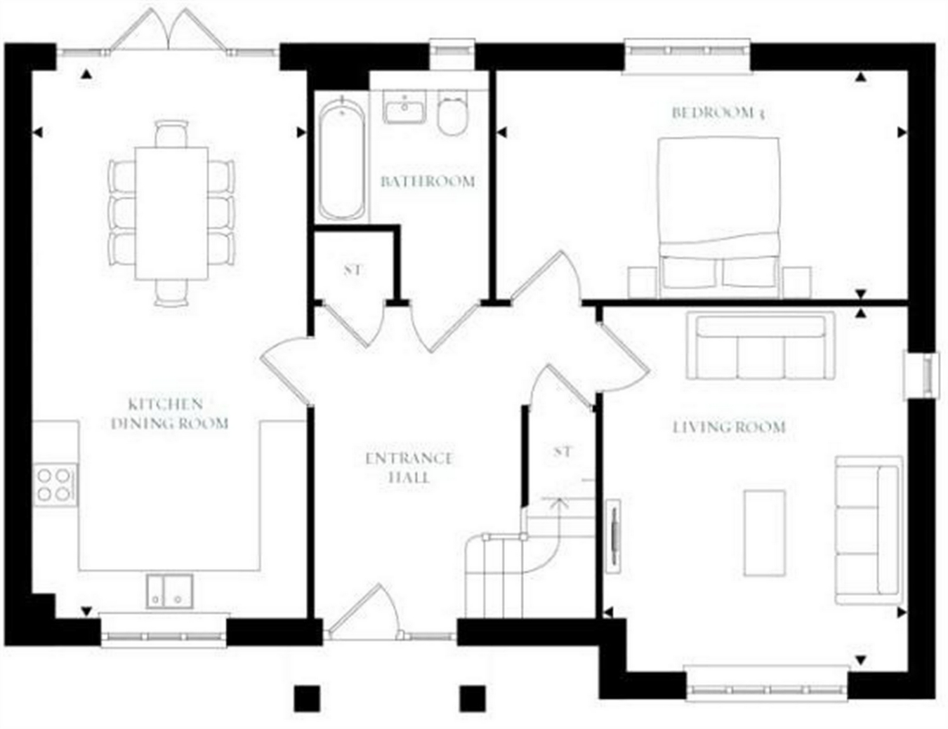
Ground Floor

Kitchen/Dining Room 6.95m x 3.45m 22’10” x 11’5”
Living Room 4.55m x 3.85m 15’0” x 12’8”
Bedroom 3 2.90m x 5.25m 9’6” x 17’3”

First Floor

Master Bedroom 4.95m x 3.80m 16’4” x 12’7”
Bedroom 2 4.95m x 3.85m 16’4” x 12’8”

Specifications:

Warranty


* 10 year NHBC Warranty

This beauitiful chalet bungalow is rarely avalible in a desirable location of a south Cambridge village. When entering the propertry you are greated by a wonderful entrance hall with dowenstairs family bathroom, whilst in the hallway on the left hand side is the large kitchen/ dinning room with French doors opening out onto the private garden. Leading to the right of the hallway is a downstairs bedroom three, also to the right of the halways is the large family living room.

Leading up the stairs within the chalet bunglow leads you to bedroom two and the masted bedroom with ensuit and built in wardrobe space.

About The Area:
Abington is divided into Little and Great Abington, The South Cambridge village offers what most would say is the perfect amount for anyone wanting the private village lifestyle but within striking distance of Cambridge or Saffron Walden.

Moorefield is located within Great Abington on Pampisford Road, with direct access into Cambridge. Moorefield is a beautiful neighbourhood of stylish three, four, five and six bedroom homes. All homes on the development have been thoughtfully designed and developed, taking inspiration from the thatched cottages and listed building of this historic village.

Abington boast a number of superb amenities from a local shop and post office a local pub which provides the best Thai food and would be ideal for any food connoisseurs!

Do not miss this opportunity for this perfect new build property and be sure to contact Thomas Wilkinson the dedicated New Homes Senior sales negotiator to speak further about the development and arrange a viewing. Contact on The added benefit for viewings at Moorefield is with Thomas living in the village viewings are able to be conducted and out of hours times benefitting those who work the usual 9-5 jobs.



Floor Plans

Property Location

Marketed by Elevation Estate Agents



By submitting this form, you accept our Terms of Use.

Disclaimer Property descriptions and related information displayed on this page are marketing materials provided by Elevation Estate Agents. estateagents365.uk does not warrant or accept any responsibility for the accuracy or completeness of the property descriptions or related information provided here and they do not constitute property particulars. Please contact Elevation Estate Agents for full details and further information.