Detached house for sale in Bristol BS16, 5 Bedroom

Bristol, Bristol, UK

Quick Summary

Property Type:
Detached house
Status:
For sale
Price
£ 510,000
Beds:
5
Baths:
3
Recepts:
3
County
Bristol
Town
Bristol
Outcode
BS16
Location
Jellicoe Avenue, Stapleton, Bristol BS16
Marketed By:
CJ Hole Downend
Posted
2018-09-29
BS16 Rating:





More Info?
Please contact CJ Hole Downend on 0117 444 9752 or Request Details

Property Description

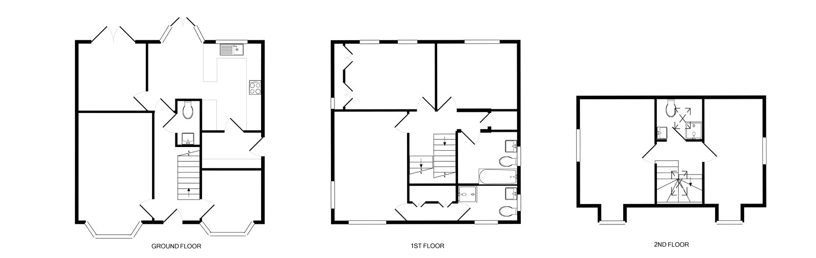
A fantastic opportunity to secure this substantial executive detached property set over three floors on Jellicoe Ave in Stoke Park. The property offers entrance hallway with study to the front and cloakroom, family lounge with doors through to dining room, large kitchen diner and utility room. The first floor includes two double bedrooms with large master bedroom with en-suite, the second includes two further doubles bedrooms and bathroom. Externally the property offers double garage with multiple off street parking spaces, tiered rear garden laid to patio and lawns. With its convenient location to local parks, amenities and within easy reach of Bristol City Centre, large local employers and excellent transport links in the area, this large five bed home makes a fantastic choice for families and professionals alike.

Entrance Hall Double glazed window and door to front, under stairs cupboard, door to cloakroom, radiator.

Cloakroom Two piece suite comprising low level WC, pedestal wash hand basin, extractor fan, partially tiled, radiator.

Study 8'9" (2.67m) x8'1" (2.46m) To Max Into Bay. Double glazed bay window to front, laminate floor, radiator.

Lounge 16'6" x 10'4" To Max (5.03m x 3.15m To Max). Double glazed bay windows to front, feature fire place, laminate floor, TV point, radiators x2.

Dining Room 9'7" x 9'7" (2.92m x 2.92m). Double French doors to rear, laminate floor, radiator.

Kitchen 15'9" x 11'9" (4.8m x 3.58m). Double glazed doors and windows to rear, range of wall and base units, tiled splash backs, integral sink drainer, dual oven and hob with extractor over, integral fridge freezer, spot lights, tiled floor, door to utility.

Utility Room Double glazed door to side, range of base units, space for washing machine and tumble dryer, sink drainer, extractor fan, tiled floor.

First Floor Landing Airing cupboard, radiator.

Master Bedroom 16' x 10'5" (4.88m x 3.18m). Double glazed window to front and side, radiator, TV point, through cupboard to en-suite with built in cupboards, window and radiator.

En-suite Bathroom Double glazed window to front, three piece suite comprising shower, low level WC, pedestal wash hand basin, partially tiled.

Bedroom Two 12'1" x 9' (3.68m x 2.74m). Dual aspect double glazed windows, built in cupboards, radiator.

Bedroom Three 11'3" x 9' (3.43m x 2.74m). Double glazed window to rear, radiator.

Bathroom 8'3" x 7'3" (2.51m x 2.2m). Double glazed window to side, three piece suite comprising bath with shower over, low level WC, pedestal wash hand basin, extractor fan, partially tiled, radiator.

Second Floor Landing Velux window, access to loft.

Bedroom Four 17'3" x 10'5" (5.26m x 3.18m). Dual aspect double glazed windows to front and side, eaves storage, radiator.

Bathroom Velux window, three piece suite comprising shower, low level WC, pedestal wash hand basin, extractor fan, partially tiled.

Rear Garden Tiered garden laid to lawn and patio, rear access to garage, stairs to lower garden,

Front Garden Laid to lawn, off street parking for multiple vehicles, double garage, wrought iron boundary fence.

Double Garage 17'4" x 17'2" (5.28m x 5.23m). Up and over doors, power and light, eaves storage.


Floor Plans

Property Location

Marketed by CJ Hole Downend



By submitting this form, you accept our Terms of Use.

Disclaimer Property descriptions and related information displayed on this page are marketing materials provided by CJ Hole Downend. estateagents365.uk does not warrant or accept any responsibility for the accuracy or completeness of the property descriptions or related information provided here and they do not constitute property particulars. Please contact CJ Hole Downend for full details and further information.