Bungalow for sale in Wigan WN4, 2 Bedroom

Wigan, Wigan, UK

Quick Summary

Property Type:
Bungalow
Status:
For sale
Price
£ 138,500
Beds:
2
Baths:
2
Recepts:
1
County
Greater Manchester
Town
Wigan
Outcode
WN4
Location
Bransford Close, Ashton-In-Makerfield, Wigan WN4
Marketed By:
Reeds Rains - Pemberton
Posted
2024-04-14
WN4 Rating:





More Info?
Please contact Reeds Rains - Pemberton on 01942 566634 or Request Details

Property Description

We are delighted to offer for sale this ...

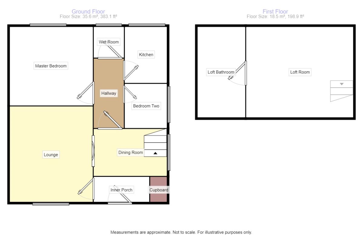
Floor Plans

Property Location

Marketed by Reeds Rains - Pemberton


By submitting this form, you accept our Terms of Use.

Disclaimer Property descriptions and related information displayed on this page are marketing materials provided by Reeds Rains - Pemberton. estateagents365.uk does not warrant or accept any responsibility for the accuracy or completeness of the property descriptions or related information provided here and they do not constitute property particulars. Please contact Reeds Rains - Pemberton for full details and further information.