Terraced house for sale in Livingston EH54, 2 Bedroom

Livingston, Livingston, UK

Quick Summary

Property Type:
Terraced house
Status:
For sale
Price
£ 120,000
Beds:
2
County
West Lothian
Town
Livingston
Outcode
EH54
Location
Craigswood, Livingston EH54
Marketed By:
Ennova
Posted
2019-04-24
EH54 Rating:





More Info?
Please contact Ennova on 0131 268 9824 or Request Details

Property Description



*New to market - open viewing Sunday 1-3pm*

Summary

This is the perfect 2 bedroom family home, with bright spacious rooms and a private gardens to the front and rear. There is the opportunity to convert to 3 bed subject to relevant consents. Conveniently located in Livingston's established residential area of Craigshill, with access to off street parking directly in front of the house, this home will appeal to families, young professionals, and investment landlords.

Detailed Description

Lying within easy reach of Livingston’s excellent amenities, schools, and the train station, this two-bedroom mid-terraced house would appeal to first-time buyers, young families, and commuting professionals preferring a quiet retreat within easy commuting distance of Edinburgh, Glasgow, and further afield.

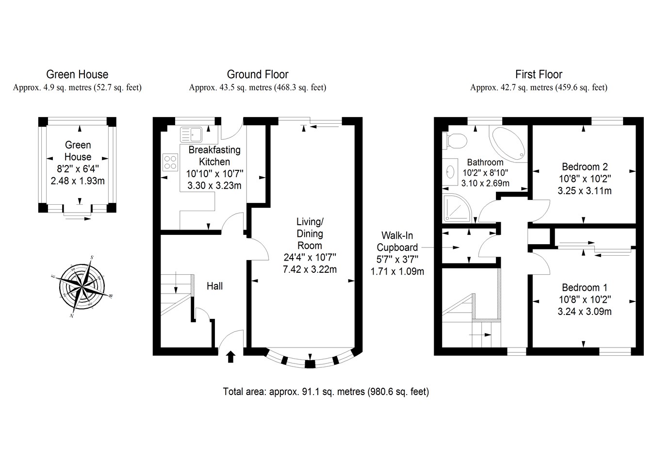
Accessed via a pathway through an attractively-fenced garden, the front door opens into an airy hallway with a handy under-stair storage cupboard. Here, muted décor and light wood-styled flooring offer a welcoming first impression and set the tone for the tasteful interiors to follow. This understated finish continues into the adjoining double-aspect living and dining room. Stretching the entire depth of the property, this exceptionally generous reception area promises flexible floorspace for lounge furniture and a separate seated dining area. A contemporary wall-mounted electric fire and plush carpeting further enhance the space, whilst south-facing patio doors open onto the rear garden – ideal for social gatherings during the warmer months! The equally sunny adjoining kitchen (with garden access) is fitted with a wide range of beech-effect cabinetry supplemented by plentiful workspace and matching splashback panelling, whilst a breakfast bar creates the ideal space for morning coffee and busy weekday breakfasts!

Upstairs, a landing (with a shelved walk-in storage cupboard) leads to two double bedrooms. The larger bedroom is carpeted and houses a built-in wardrobe with a useful mirrored frontage, whilst the remaining bedroom enjoys a peaceful rear-facing position and a wonderfully sunny aspect. Finally, a partially-tiled four-piece bathroom comes replete with a corner shower enclosure, a large corner bathtub, a basin set into storage, and a WC. Gas central heating and double glazing ensure year-round comfort and efficiency.

Outside, the house enjoys low-maintenance gardens to the front and rear. The rear garden boasts an enviable south-facing aspect and features a handy greenhouse. The property further benefits from access to off-street parking.

Local Area information

Craigshill, Livingston

Craigshill is an established residential area of Livingston; a thriving town situated just 15 miles west of the capital. Craigshill Shopping Mall offers a good range of shops for everyday essentials, with more extensive shopping facilities available in the centre of Livingston. Offering some the best designer and High Street shops in Scotland, The Centre houses over 50 shops, various restaurants and fast food outlets, whilst Livingston Designer Outlet boasts over 70 leading brand stores, cafés and restaurants. The scenic open spaces of Almondvale and Almond Parks provide lovely walks, cycle paths and running trails, a children’s playground and wildlife viewing platforms - ideal for those looking to escape the hustle and bustle. For the active type, Xcite Craigswood, which is situated just a stone’s throw from the property, includes a state-of-the-art gym, a varied timetable of fitness classes, indoor and outdoor football pitches, an outdoor athletics track, and a children’s soft play area. For a fun family day out, Almond Valley Heritage Trust offers a museum, train ride and farm animal enclosures. Craigshill is served by three primary schools and falls in the catchment area for Inveralmond Community High School. Situated conveniently close to the M8, commuting to Edinburgh and Glasgow is swift and convenient. A short drive from the property takes you to Uphall, Livingston North or Livingston South train stations, all offering regular rail links to Edinburgh, Glasgow and beyond.


Floor Plans

Property Location

Marketed by Ennova



By submitting this form, you accept our Terms of Use.

Disclaimer Property descriptions and related information displayed on this page are marketing materials provided by Ennova. estateagents365.uk does not warrant or accept any responsibility for the accuracy or completeness of the property descriptions or related information provided here and they do not constitute property particulars. Please contact Ennova for full details and further information.