Terraced house for sale in Leeds LS13, 2 Bedroom

Leeds, Leeds, UK

Quick Summary

Property Type:
Terraced house
Status:
For sale
Price
£ 135,000
Beds:
2
County
West Yorkshire
Town
Leeds
Outcode
LS13
Location
Kirkham Street, Rodley, Leeds, West Yorkshire LS13
Marketed By:
Manning Stainton - Pudsey
Posted
2018-09-16
LS13 Rating:





More Info?
Please contact Manning Stainton - Pudsey on 0113 482 9688 or Request Details

Property Description

Situated in the heart of the popular village of Rodley within a short distance of the local pubs, eateries and Rodley Nature Reserve, this extremely well-presented two bedroom mid back-to-back terrace offers immaculately presented accommodation arranged over two floors which is in ready to move into condition and is sure to appeal to first time buyers in particular. Internal viewing is highly recommended to appreciate what this lovely property has to offer.

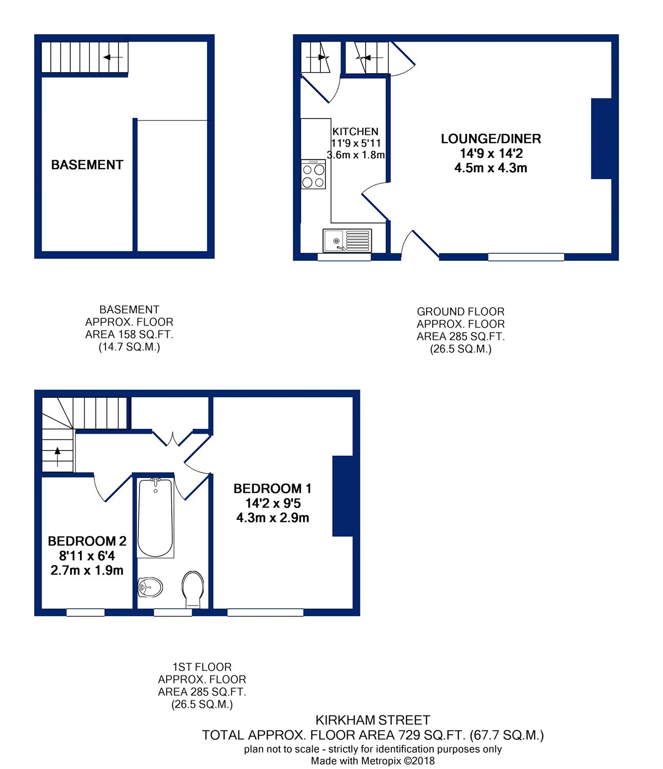
Featuring uPVC double glazing and gas fired central heating the accommodation briefly comprises to the ground floor: A spacious and welcoming reception room with stripped wood flooring, a feature fireplace and ample space for living and dining furniture, and a separate kitchen which is fitted with a range of modern wall and base units. To the first floor is the master bedroom which is a good size double with a feature fireplace, second bedroom which is a good size single, and the house bathroom which is part-tiled and fitted with a modern white three piece suite.

The pleasant 'village' of Rodley sits aside the Leeds-Liverpool Canal and offers the commuter easy access to Leeds City Centre and the Leeds Outer Ring Road but retains a more rural feel. The canal welcomes the walker to scenic towpath strolls towards both Leeds and Bradford through areas of countryside and farmland. The Owlcotes Shopping Centre, which is a short drive away along the Ring Road, boasts both Asda and Marks & Spencer superstores.


Floor Plans

Property Location

Marketed by Manning Stainton - Pudsey


By submitting this form, you accept our Terms of Use.

Disclaimer Property descriptions and related information displayed on this page are marketing materials provided by Manning Stainton - Pudsey. estateagents365.uk does not warrant or accept any responsibility for the accuracy or completeness of the property descriptions or related information provided here and they do not constitute property particulars. Please contact Manning Stainton - Pudsey for full details and further information.