Terraced house for sale in Gloucester GL1, 3 Bedroom

Gloucester, Gloucester, UK

Quick Summary

Property Type:
Terraced house
Status:
For sale
Price
£ 175,000
Beds:
3
Baths:
1
Recepts:
2
County
Gloucestershire
Town
Gloucester
Outcode
GL1
Location
Stanley Road, Gloucester GL1
Marketed By:
The Property Centre
Posted
2018-09-07
GL1 Rating:





More Info?
Please contact The Property Centre on 01452 768225 or Request Details

Property Description

Impressive, three bedroom, period terrace in desirable Linden Location...

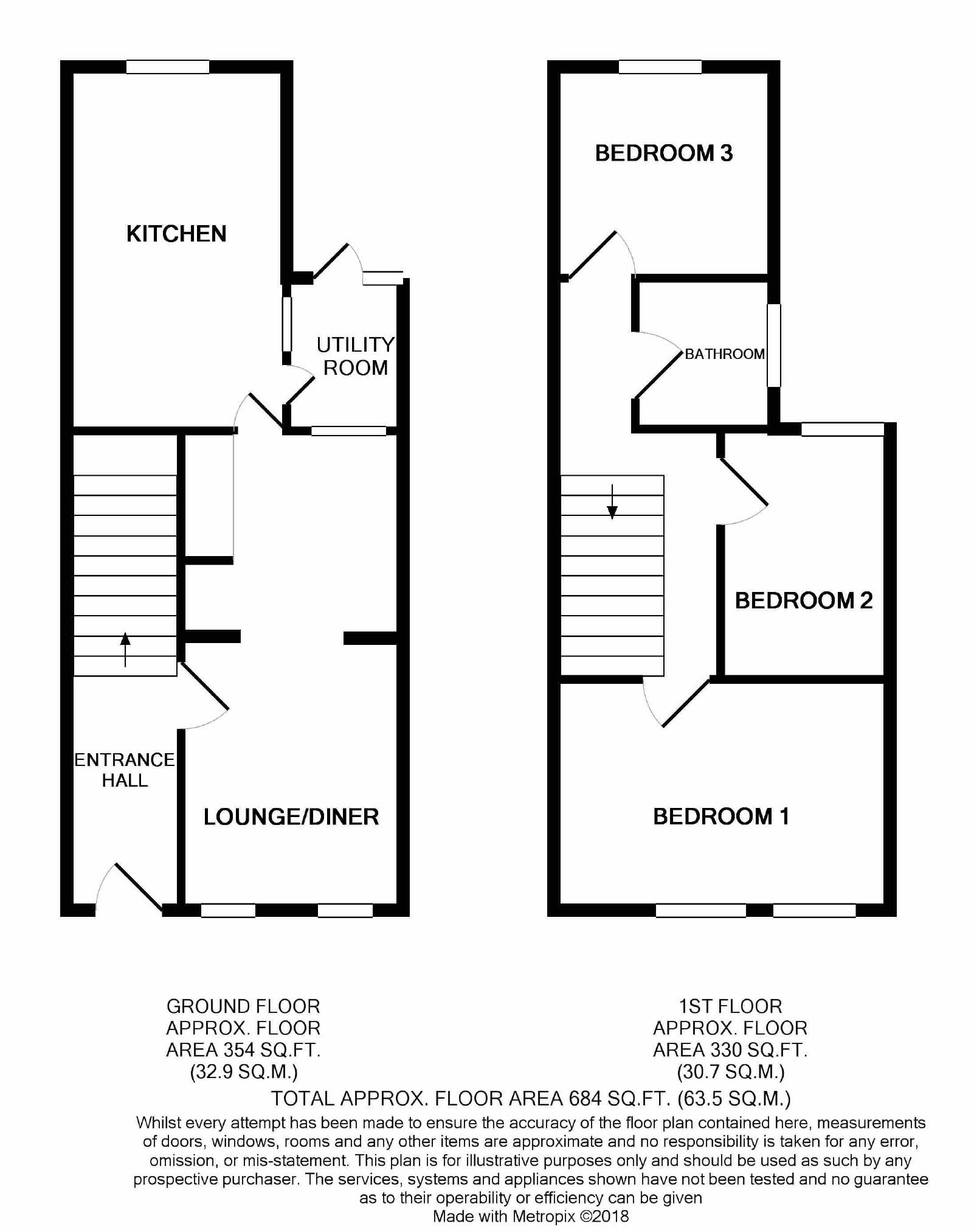
The Property Centre are delighted to offer "For Sale" this highly impressive three bedroom period terrace situated in the sought after residential city suburb of Linden. Having been modernised and upgraded by the current vendors this deceptive home offers generous and well appointed accommodation, briefly comprising; entrance hall, open plan lounge/diner in to a stunning refitted kitchen and a useful lean too utility area. On the first floor there are three bedrooms and a modern fitted bathroom. The property benefits from gas central heating and is double glazed throughout. To the rear there is a good sized enclosed garden. This fantastic home would make a great first time buy, viewing is strongly advised...

Potential rental income of £750pcm-£800pcm

draft details awaiting vendor awaiting vendor approval

Residential sales - disclaimer notice: Appliances such as radiators, heaters, boilers, fixtures or utilities (gas, water, electricity) which may have been mentioned in these details have not been tested and no guarantee can be given that they are suitable or in working order. We cannot guarantee that building regulations or planning permission has been approved and would recommend that prospective purchasers should make their own independent enquiries on these matters. All measurements are approximate.

Residential lettings – agents note: Please note that additional fees from £300.00 will apply depending on the number of applicants. A calculation will be provided prior to payment of any holding fee. Further details can be found at .

Floor Plans

Property Location

Marketed by The Property Centre


By submitting this form, you accept our Terms of Use.

Disclaimer Property descriptions and related information displayed on this page are marketing materials provided by The Property Centre. estateagents365.uk does not warrant or accept any responsibility for the accuracy or completeness of the property descriptions or related information provided here and they do not constitute property particulars. Please contact The Property Centre for full details and further information.