Semi-detached house for sale in York YO32, 4 Bedroom

York, York, UK

Quick Summary

Property Type:
Semi-detached house
Status:
For sale
Price
£ 329,950
Beds:
4
County
North Yorkshire
Town
York
Outcode
YO32
Location
Windsor Drive, Wigginton, York YO32
Marketed By:
Churchills Estate Agents
Posted
2024-05-13
YO32 Rating:





More Info?
Please contact Churchills Estate Agents on 01904 918984 or Request Details

Property Description

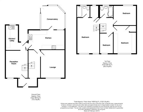
A 3 bedroom home with A fully self contained 1 bedroom extension with lounge, bedroom, kitchen & en-suite... Churchills are delighted to offer for sale this fabulous, versatile, four bedroom semi-detached family home in the popular location of Windsor Drive, in the sought after Village of Wigginton. The spacious living accommodation comprises large entrance hall, 13' lounge and further reception room, modern fitted breakfast kitchen, utility room, conservatory, first floor landing, four bedrooms (master with en-suite bathroom) and a further family bathroom. To the outside is a lawned front garden whilst to the rear is a an enclosed garden and a detached single garage. The property also benefits from uPVC double glazing and gas central heating throughout. An internal viewing is strongly recommended.

Front Door To;

Entrance Porch

Entrance Hallway
17' 9" x 6' (5.41m x 1.83m)

Lounge
13' 1" x 11' 3" (3.99m x 3.43m)
uPVC double glazed window to front, feature fireplace with surround, radiator, power points. Carpet.

Dining Kitchen
17' 3" x 9' 8" (5.26m x 2.95m)
Fabulous modern fitted kitchen comprising matching wall and base units, inset sink with drainer, electric hob with extractor above, eye level oven, power points, part panelled walls, double panelled radiator. Laminate wood flooring. Double glazed window and sliding door to;

Conservatory
11' 5" x 11' (3.48m x 3.35m)
uPVC double glazed windows and double doors to outside. Tiled flooring.

Utility Room
12' x 6' 1" (3.66m x 1.85m)
Fitted wall and base units, inset sink with drainer, space for appliances, plumbing for automatic washing machine, power points, uPVC double glazed window to rear, door to garden. Laminate wood flooring.

Reception Room
12' 7" x 10' 8" (3.84m x 3.25m)
uPVC double glazed window to front, stairs to first floor, radiator, power points, ceiling spotlights. Carpet.

First Floor Landing
Doors leading to;

Bedroom 1
17' x 10' 8" (5.18m x 3.25m)
Two uPVC double glazed windows to front, radiator, power points., TV point, large wardrobe. Door to;

En-Suite Bathroom
Three piece suite in white comprising panelled bath, pedestal wash hand basin, low level WC, uPVC double glazed opaque window to rear, chrome heated towel rail. Vinyl floor.

Bedroom 2
13' 3" x 10' 7" (4.04m x 3.23m)
uPVC double glazed window to front, fitted wardrobes, radiator, power points. Carpet.

Bedroom 3
10' 6" x 9' 3" (3.20m x 2.82m)
uPVC double glazed window to rear, radiator, power points. Carpet.

Bedroom 4
5' 6" x 6' 4" (1.68m x 1.93m)
uPVC double glazed window to front, built in cabin bed, wardrobe and cupboard, radiator, power points. Carpet.

Family Bathroom
Three piece suite in white comprising p-shaped panelled bath, vanity unit with inset wash hand basin, low level WC, uPVC double glazed opaque window to rear, chrome heated towel rail, tiled walls. Vinyl floor.

Outside
Rear garden with lawn and patio areas. Single garage with parking to front.

EPC


Floor Plans

Property Location

Marketed by Churchills Estate Agents



By submitting this form, you accept our Terms of Use.

Disclaimer Property descriptions and related information displayed on this page are marketing materials provided by Churchills Estate Agents. estateagents365.uk does not warrant or accept any responsibility for the accuracy or completeness of the property descriptions or related information provided here and they do not constitute property particulars. Please contact Churchills Estate Agents for full details and further information.