Semi-detached house for sale in Northampton NN5, 3 Bedroom

Northampton, Northampton, UK

Quick Summary

Property Type:
Semi-detached house
Status:
For sale
Price
£ 284,995
Beds:
3
County
Northamptonshire
Town
Northampton
Outcode
NN5
Location
Stone Way, Duston, Northampton NN5
Marketed By:
Jackson Grundy, Duston
Posted
2019-01-15
NN5 Rating:





More Info?
Please contact Jackson Grundy, Duston on 01604 318605 or Request Details

Property Description

A mature 1950s bay fronted semi-detached home, situated in the heart of Duston Village. Within walking distance of a wealth of amenities including the village bakery, shops and schools. Accommodation comprises entrance hall with a solid oak front door, large lounge/dining room with multi-fuel burner, kitchen leading to a utility room and downstairs WC. There is also an internal door to the garage. Upstairs are three bedrooms, two of which benefit from built in wardrobes and a refitted four piece bathroom. Externally the frontage provides off road parking and in turn leads to a single garage. The rear garden is mainly laid to lawn, with a patio area and steps leading to raised beds, hardstanding for a greenhouse, shed and lawn. The property further benefits from double glazing and gas central heating. Offered to the market with no onward chain.
EPC: E


Local area information


Duston is situated approximately 2 miles to the west of Northampton town centre. The old village is centred along Main Road where several business, retail outlets and services are located to include grocery store, newsagent, bakery, building society, estate agent, hairdresser, key cutter/cobbler and florist. Duston also has churches and chapels of varying denominations, a medical centre, nursery, dental surgery and public houses. Schooling is provided through several state primary schools and The Duston School as well as Quinton House independent school which caters for children aged 2 to 18. The village has expanded considerably in recent years with the addition of several modern developments including Alsace Park, St Giles Park and St Crispins. Transport links are excellent with M1 junctions 15a (2 miles) and 16 (3 miles) and a regular bus service to Northampton where a mainline train station operates to both Birmingham New Street and London Euston.


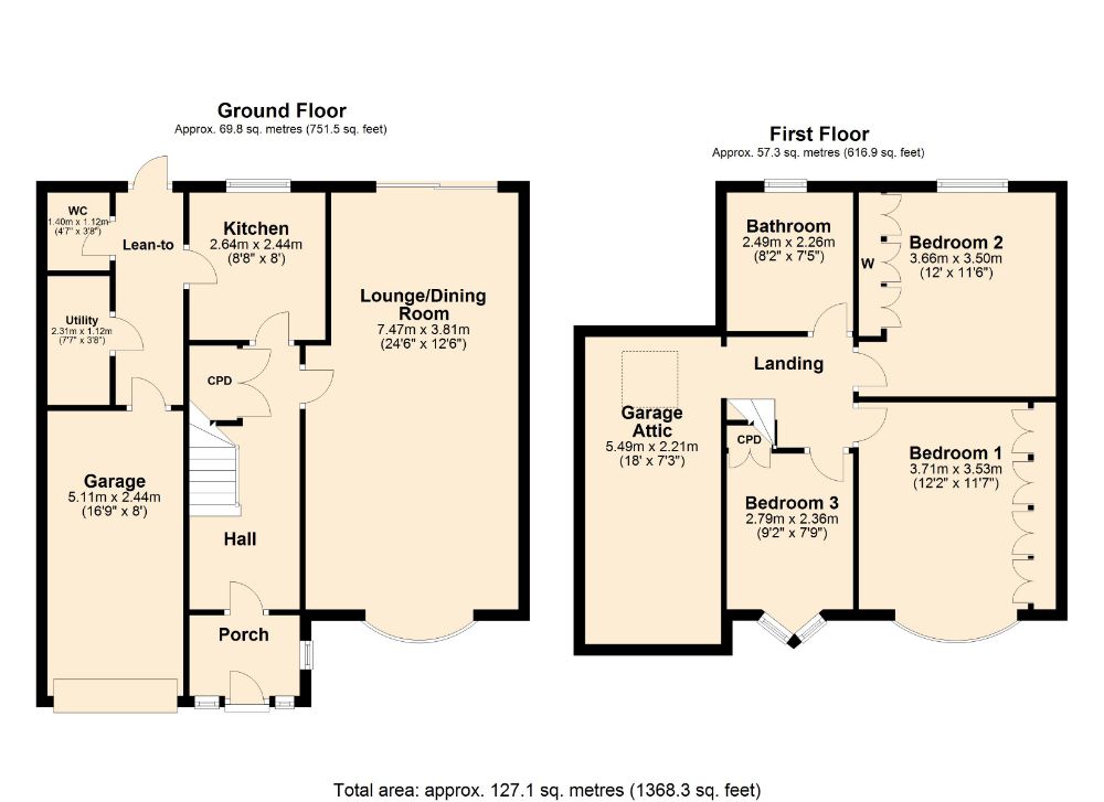
The accommodation comprises

porch


Entry via double glazed door. Double glazed windows to front and side elevations. Solid oak door leading into:


Hall


Stairs rising to first floor landing with cupboard under. Radiator. Doors to connecting rooms.

Lounge/dining room 7.47m (24'6) x 3.81m (12'6)
Double glazed bay window to front elevation. Radiator. Decorative multi-fuel burner. Television and telephone points. Double glazed patio door to rear garden.

Kitchen 2.64m (8'8) x 2.44m (8)
Double glazed window to rear elevation. Refitted with a range of wall mounted and base level units and drawers with granite effect work surface over. One and a half bowl stainless steel sink and drainer unit with mixer tap over. Four ring electric hob with extractor hood over and double oven. Dishwasher. Under counter fridge. Tiling to splash back areas. Door leading to:


Lean-to


Doors to connecting rooms. Door to rear garden. Tiled floor.

W.C. 1.40m (4'7) x 1.12m (3'8)
Obscure double glazed window to rear elevation. Fitted with a low flush WC and hand wash basin. Tiling to splash back areas and to floor.

Utility 2.31m (7'7) x 1.12m (3'8)
Space and plumbing for washing machine. Space for freestanding fridge/freezer. Tiled floor.


Landing


Access to fully boarded loft space via drop down ladder, housing boiler and with light connected. Doors to connecting rooms.

Bedroom one 3.71m (12'2) x 3.53m (11'7)
Double glazed bay window to front elevation. Radiator. Built in wardrobes.

Bedroom two 3.66m (12) x 3.51m (11'6)
Double glazed window to rear elevation. Radiator. Built in wardrobes.

Bedroom three 2.79m (9'2) x 2.36m (7'9)
Double glazed bay window to front elevation. Radiator. Built in cupboard.

Bathroom 2.49m (8'2) x 2.26m (7'5)
Obscure double glazed window to rear elevation. Heated towel rail. Refitted with a four piece suite comprising low level WC, pedestal wash hand basin, tile enclosed bath with shower attachment, and double shower cubicle. Tiling to splash back areas and floor. Extractor fan.

Over garage storage room 5.49m (18) x 2.21m (7'3)
Skylight to rear elevation. Radiator. Power and light connected.


Outside

front garden


Block paved parking leading to a single garage. Gravel area. Enclosed by low level wall, hedging and picket fence.

Garage 5.11m (16'9) x 2.44m (8)
Metal up and over door. Power and light connected. Courtesy door to lean-to.


Rear garden


Patio area leading to lawn. Path leading to small pond and steps up to a further lawn area. Raised beds. Hardstanding for greenhouse and shed. Exposed stone wall.


Draft details


At the time of print, these particulars are awaiting approval from the Vendor(s).


Agents notes


The property is fitted with 7 solar panels, which generate between £500 - £800 per year based on the Feed-in-Tariff system.

Agent's note(S)

The heating and electrical systems have not been tested by the selling agent jackson grundy.


Viewings


By appointment only through the agents jackson grundy – open seven days a week.


Financial advice


We offer free independent advice on arranging your mortgage. Please call our Consultant on . Written quotations available on request. “your home may be repossessed if you do not keep up repayments on A mortgage or any other debt secured on it”.

Floor Plans

Property Location

Marketed by Jackson Grundy, Duston



By submitting this form, you accept our Terms of Use.

Disclaimer Property descriptions and related information displayed on this page are marketing materials provided by Jackson Grundy, Duston. estateagents365.uk does not warrant or accept any responsibility for the accuracy or completeness of the property descriptions or related information provided here and they do not constitute property particulars. Please contact Jackson Grundy, Duston for full details and further information.