Semi-detached house for sale in Darwen BB3, 4 Bedroom

Darwen, Darwen, UK

Quick Summary

Property Type:
Semi-detached house
Status:
For sale
Price
£ 225,000
Beds:
4
Baths:
2
Recepts:
1
County
Lancashire
Town
Darwen
Outcode
BB3
Location
Balmoral Road, Darwen BB3
Marketed By:
William Thomas Estate Agents Ltd
Posted
2024-05-13
BB3 Rating:





More Info?
Please contact William Thomas Estate Agents Ltd on 01204 860100 or Request Details

Property Description

Description



Balmoral Gardens is a luxury gated new development consisting of twenty seven uniquely designed properties. Constructed to a high specification and finished with a contemporary influence, setting it apart from the typical new build developments in the area.

Located in the sought after Whitehall area of Darwen which is quickly becoming a thriving market town. Surrounded by the scenic West Pennine Moors, ideal for walks and outdoor pursuits. Darwen has a number of brand supermarkets, local shops and heritage listed buildings. There are local amenities including highly regarded primary schools, pubs, cafes, post office, to name a few, all within walking distance.

The surrounding towns are close at hand via the A666 including Bolton-8 miles, Blackburn-6 miles and Manchester-20 miles. The M65 motorway is 3 miles and Darwen train station 2 miles providing ideal commuter access to Manchester one way and the Ribble Valley the other.

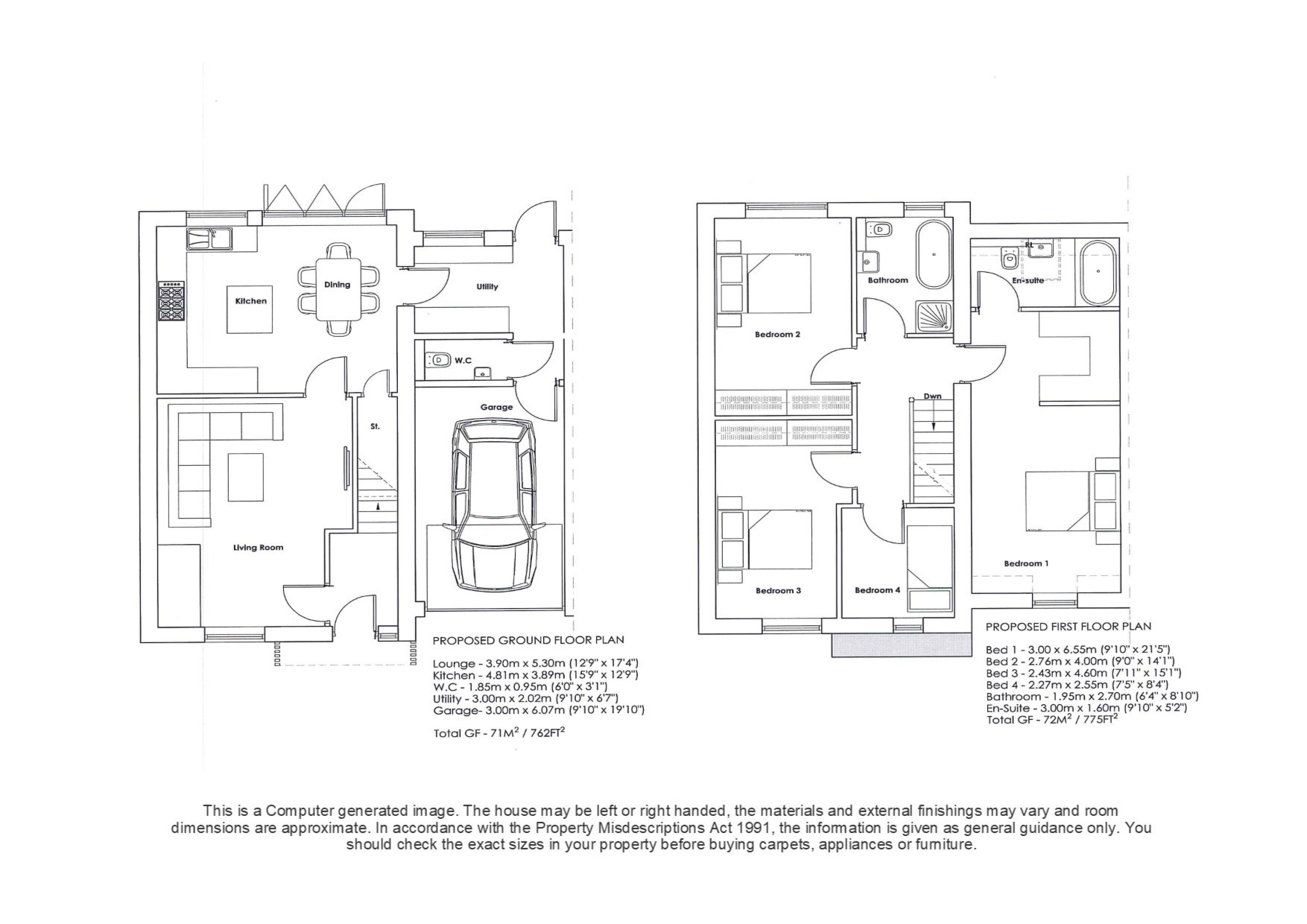
Accommodation Comprising

Entrance Hallway

Living Room

Dining Kitchen

Utility Room

First Floor

Bedrooms 1

En Suite Bathroom

Bedroom 2

Bedroom 3

Bedroom 4

Family Bathroom

Gardens

Driveway

Garage

Site Plan

Agents Notes (1)

William Thomas Estates for themselves and for vendors or lessors of this property whose agents they are given notice that:
(i) the particulars are set out as a general outline only for the guidance of intended purchasers or lessees and do not constitute nor constitute part of an offer or a contract.
(ii) all descriptions, dimensions, reference to condition and necessary permissions for use and occupation and other details are given without responsibility and any intending purchasers or tenants should not rely on them as statements or representations of fact but must satisfy themselves by inspection or otherwise as to the correctness of each of them
(iii) no person in the employment of William Thomas Estates has authority to make or give any representations or warranty whatever in relation to this property

Floor Plans

Property Location

Marketed by William Thomas Estate Agents Ltd



By submitting this form, you accept our Terms of Use.

Disclaimer Property descriptions and related information displayed on this page are marketing materials provided by William Thomas Estate Agents Ltd. estateagents365.uk does not warrant or accept any responsibility for the accuracy or completeness of the property descriptions or related information provided here and they do not constitute property particulars. Please contact William Thomas Estate Agents Ltd for full details and further information.