Semi-detached house for sale in Corsham SN13, 2 Bedroom

Corsham, Corsham, UK

Quick Summary

Property Type:
Semi-detached house
Status:
For sale
Price
£ 325,000
Beds:
2
Baths:
1
Recepts:
1
County
Wiltshire
Town
Corsham
Outcode
SN13
Location
Pool Green, Neston, Corsham SN13
Marketed By:
David Ingram Residential
Posted
2018-11-04
SN13 Rating:





More Info?
Please contact David Ingram Residential on 01249 799982 or Request Details

Property Description

A stunning conversion of a former Club House which backs onto playing fields in the popular village of Neston.

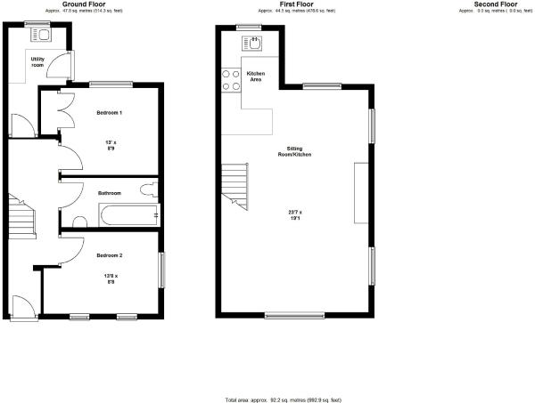
The property offers accommodation comprising entrance hall, fabulous vaulted ceiling first floor reception room with feature fireplace, kitchen with integrated appliances, two double bedrooms on the ground floor, bathroom with white suite and a useful utility room.

Externally there is a lovely private rear garden, single garage and ample driveway parking.

Neston is a popular village situated approximately one mile from Corsham and offers an excellent range of local amenities including a primary school, church, public house and village hall, whilst the nearby Neston Farm Park has a farm shop with home produce and cafe. The picturesque and historic market town of Corsham provides a further range of amenities including supermarket, an interesting range of independent shops, restaurants, public houses, sports and leisure facilities and doctors surgery. More comprehensive facilities can be found at Chippenham c.6 miles and the World Heritage City of Bath c.9 miles. Both offer a high speed rail service to London, Paddington and the M4 motorway junctions 17 & 18 for London and Bristol are within easy access.

Floor Plans

Property Location

Marketed by David Ingram Residential


By submitting this form, you accept our Terms of Use.

Disclaimer Property descriptions and related information displayed on this page are marketing materials provided by David Ingram Residential. estateagents365.uk does not warrant or accept any responsibility for the accuracy or completeness of the property descriptions or related information provided here and they do not constitute property particulars. Please contact David Ingram Residential for full details and further information.