End terrace house for sale in Stafford ST17, 2 Bedroom

Stafford, Stafford, UK

Quick Summary

Property Type:
End terrace house
Status:
For sale
Price
£ 149,950
Beds:
2
Baths:
1
Recepts:
2
County
Staffordshire
Town
Stafford
Outcode
ST17
Location
New Garden Street, Stafford ST17
Marketed By:
Open House Nationwide
Posted
2024-04-28
ST17 Rating:





More Info?
Please contact Open House Nationwide on 020 7768 7005 or Request Details

Property Description

** new instruction - further details to follow **
A well presented two bedroom room end terrace property positioned in a popular residential location within walking distance (approximately 0.5 mile walk) of Stafford Town Centre. Benefiting from two reception rooms and an extended fitted breakfasts kitchen as well as neutral decoration throughout. Ready to move into this property is ideal for first time buyers, investors or those downsizing.

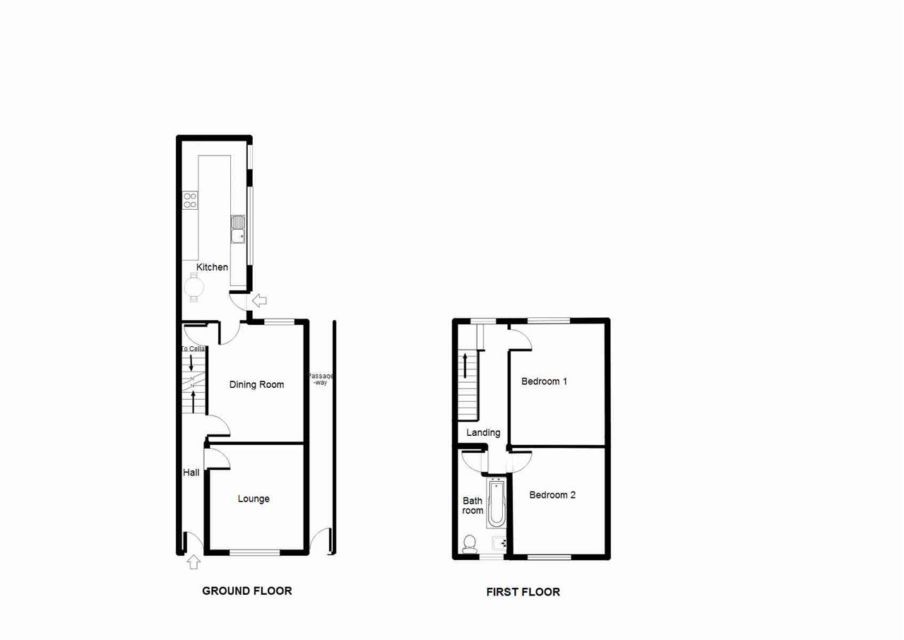
In brief this property consists of :- entrance hall, lounge, dining / sitting room, breakfast kitchen, cellar, two bedrooms, bathroom, garden to the rear and a passageway giving access from the front to the rear.

Floor Plans

Property Location

Marketed by Open House Nationwide


By submitting this form, you accept our Terms of Use.

Disclaimer Property descriptions and related information displayed on this page are marketing materials provided by Open House Nationwide. estateagents365.uk does not warrant or accept any responsibility for the accuracy or completeness of the property descriptions or related information provided here and they do not constitute property particulars. Please contact Open House Nationwide for full details and further information.