End terrace house for sale in Perth PH1, 3 Bedroom

Perth, Perth, UK

Quick Summary

Property Type:
End terrace house
Status:
For sale
Price
£ 128,000
Beds:
3
Baths:
1
Recepts:
1
County
Perth & Kinross
Town
Perth
Outcode
PH1
Location
Wallace Crescent, Perth PH1
Marketed By:
Aberdein Considine
Posted
2019-05-14
PH1 Rating:





More Info?
Please contact Aberdein Considine on 01738 301956 or Request Details

Property Description

A splendid mid terraced villa situated in a convenient residential area. Wallace Crescent lies just off Crieff Road, very close to Perth college and other major employers such as sse. There is easy access to the A85 and A9 trunk routes.

Internal features include modern gas central heating, double glazing, and a roomy reception hall giving access to a large storage cupboard.
The hallway gives access to a very spacious lounge to the rear with picture window overlooking the
enclosed rear gardens. The lounge has an open plan aspect to the dining room.

The kitchen has a range of units and space for a variety of appliances. The first floor landing gives access to three very spacious bedrooms, as well as
further storage cupboards. All rooms
are serviced by a three piece bathroom suite.
Parking is provided by a car park outside the property just off the main road, and communally maintained garden areas nearby.
There is a private garden to the rear. Viewing essential.
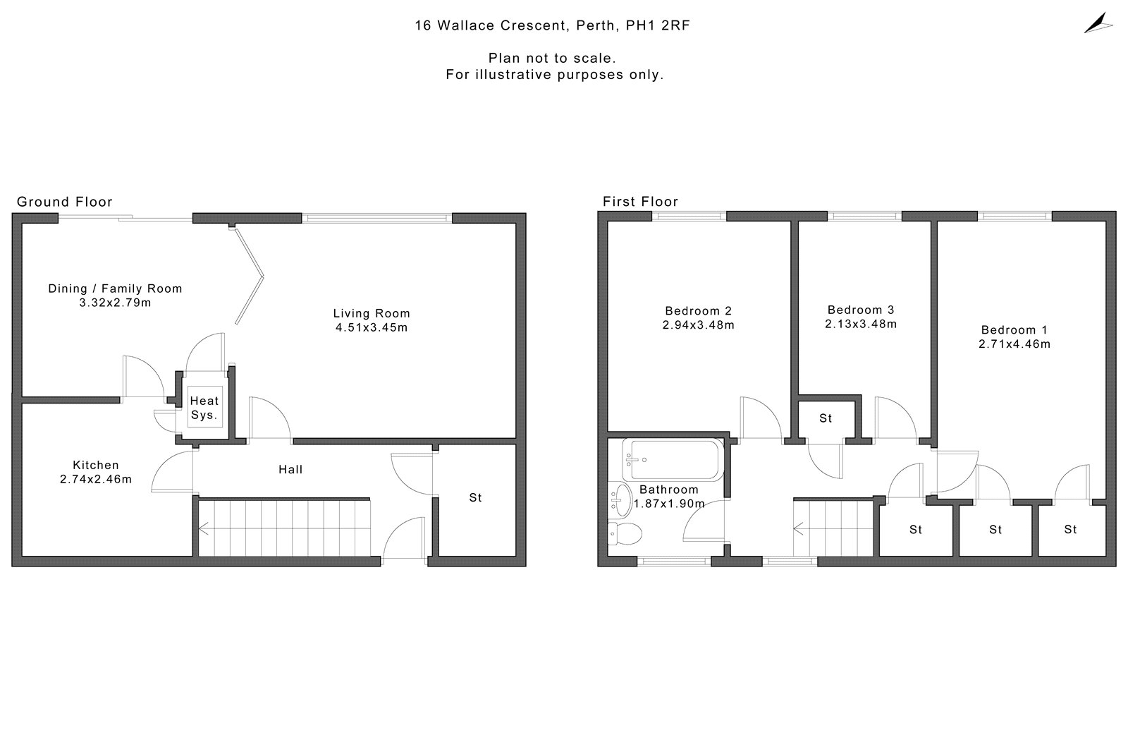
Living Room 14'10" x 11'4" (4.52m x 3.45m).

Dining / Family Room 10'11" x 9'2" (3.33m x 2.8m).

Kitchen 9' x 8'1" (2.74m x 2.46m).

Bedroom 1 14'8" x 8'11" (4.47m x 2.72m).

Bedroom 2 11'5" x 9'8" (3.48m x 2.95m).

Bedroom 3 11'5" x 7' (3.48m x 2.13m).

Bathroom 6'3" x 6'2" (1.9m x 1.88m).


Floor Plans

Property Location

Marketed by Aberdein Considine


By submitting this form, you accept our Terms of Use.

Disclaimer Property descriptions and related information displayed on this page are marketing materials provided by Aberdein Considine. estateagents365.uk does not warrant or accept any responsibility for the accuracy or completeness of the property descriptions or related information provided here and they do not constitute property particulars. Please contact Aberdein Considine for full details and further information.