End terrace house for sale in London NW2, 4 Bedroom

London, London, UK

Quick Summary

Property Type:
End terrace house
Status:
For sale
Price
£ 1,000,000
Beds:
4
Baths:
2
Recepts:
2
County
London
Town
London
Outcode
NW2
Location
Minster Mews, West Hampstead Borders NW2
Marketed By:
Paramount
Posted
2024-03-31
NW2 Rating:





More Info?
Please contact Paramount on 020 8166 7708 or Request Details

Property Description

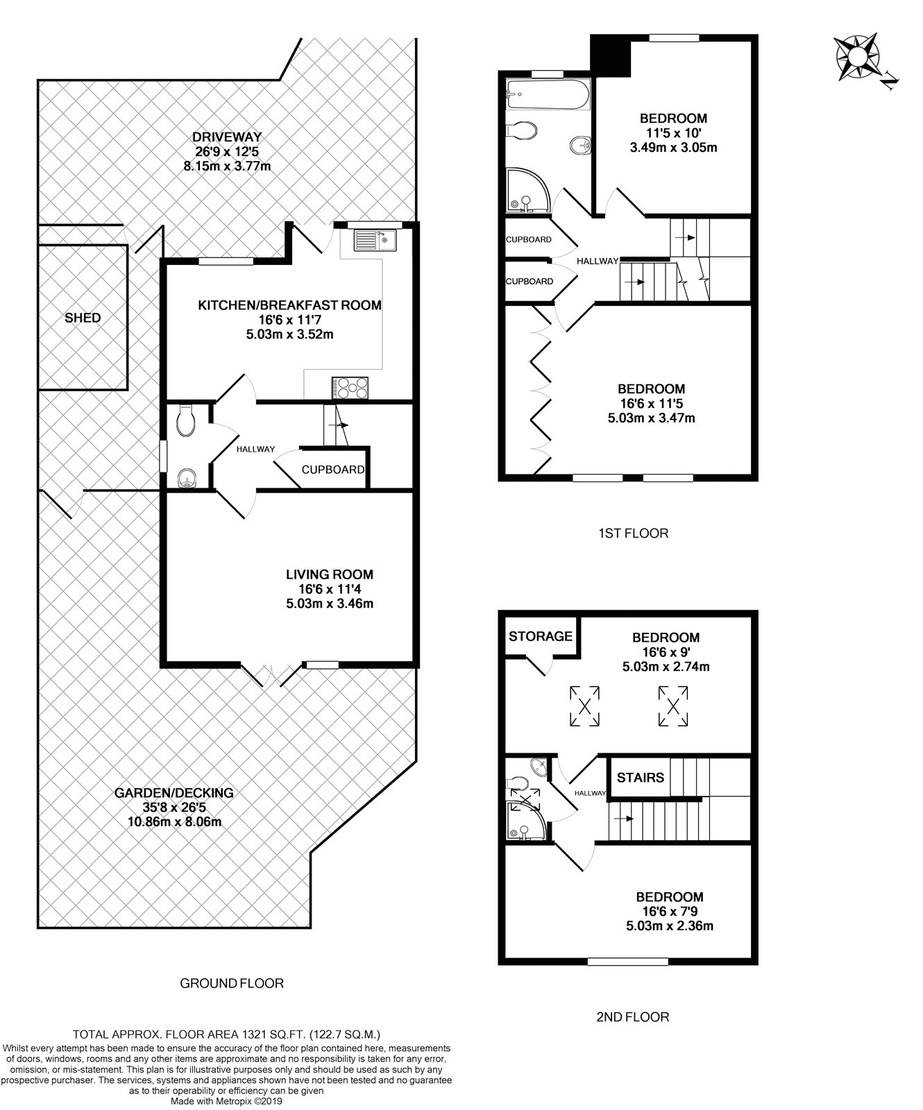
As sole agents Paramount offer this beautiful four bedroom two bathroom town house set into a select and private cul de sac just off Minster road. The area offers local amenities including bus routes, train links and major road links into and out of London. The superb accommodation comprises a super reception/dining room and a large kitchen/breakfast room to the ground floor, two double bedrooms and bathroom to the first floor and two further double bedrooms and bathroom to the top floor. The house also offers a beautiful enclosed decked rear garden and a parking area to the front. This lovely home warrants the earliest possible inspection.

Floor Plans

Property Location

Marketed by Paramount


By submitting this form, you accept our Terms of Use.

Disclaimer Property descriptions and related information displayed on this page are marketing materials provided by Paramount. estateagents365.uk does not warrant or accept any responsibility for the accuracy or completeness of the property descriptions or related information provided here and they do not constitute property particulars. Please contact Paramount for full details and further information.