End terrace house for sale in Grays RM17, 3 Bedroom

Grays, Grays, UK

Quick Summary

Property Type:
End terrace house
Status:
For sale
Price
£ 375,000
Beds:
3
Baths:
1
Recepts:
1
County
Essex
Town
Grays
Outcode
RM17
Location
Grays End Close, Grays, Essex RM17
Marketed By:
Fresh Property
Posted
2024-04-01
RM17 Rating:





More Info?
Please contact Fresh Property on 01375 318854 or Request Details

Property Description

Immaculately presented throughtout - potential to extend stpc - close to town and railway station. Located within the popular area is this extended end of terrace family home. Accommodation comprises, open plan entrance hall, kitchen/diner/sitting room. Lovely size lounge and ground floor cloakroom. First floor is home to three well proportioned bedrooms and three piece shower room. Externally the property holds a beautifully presented rear garden with sunken fish pond. Double garage and plenty of driveway parking.
EPC tbc

Entrance Porch

Entrance Hall

Ground Floor Cloakroom

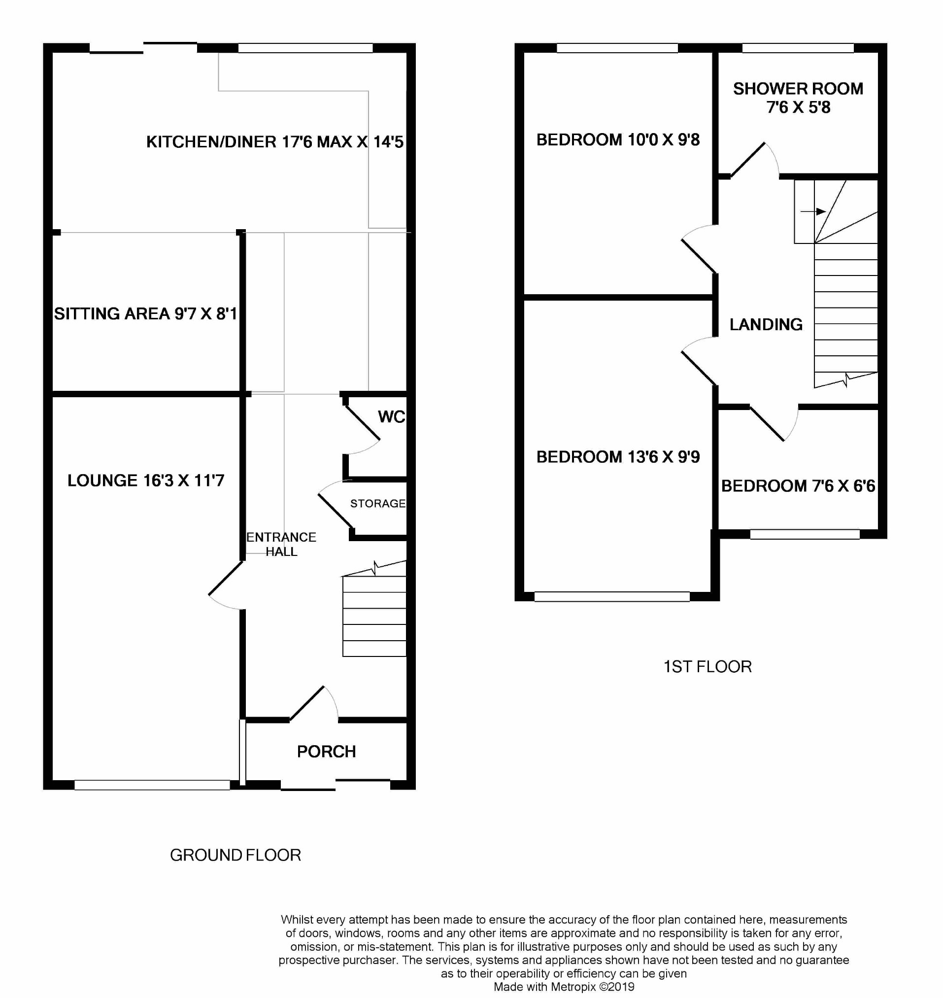
Lounge (16'3 x 11'7 (4.95m x 3.53m))

Kitchen/Diner (17'6 max x 14'5 (5.33m max x 4.39m))

Sitting Area (9'7 x 8'1 (2.92m x 2.46m))

First Floor Landing

Shower Room (7'6 x 5'8 (2.29m x 1.73m))

Master Bedroom (13'6 x 9'9 (4.11m x 2.97m))

Bedroom (10'0 x 9'8 (3.05m x 2.95m))

Bedroom (7'6 x 6'6 (2.29m x 1.98m))

Rear Garden

Double Garage (20'3 x 18'3 (6.17m x 5.56m))

Driveway Parking

Enter the property via porch to front aspect.
Open plan entrance hall gives access to cloakroom/wc. Stairs lead to first floor accommodation. Storage cupboard. Tiled flooring.
Lounge over looks the front. Bowed double glazed window. Feature log burner to remain. Smooth ceiling with Ornate coving.
Kitchen/diner/sitting room offers an array of high gloss wall and base mounted units with matching storage drawers under. Complimentary work surfaces with matching up stands house sink drainer with Swan neck mixer tap. Part tiling to walls. Dual aspect double glazed windows. Open plan dining room/sitting room commences with patio sliding doors to garden. Space for American style fridge/freezer. Continuation of tiled flooring Smooth ceiling with Ornate coving.
First floor landing is home to three lovely size bedrooms and three piece shower room.
Master bedroom is located to the front of the property. Double glazed window. Smooth to coved ceiling.
Bedroom two is also a double room. Double glazed window to rear. Smooth to coved ceiling.
Bedroom three is currently being used as the vendors study. Double glazed window to front. Smooth to coved ceiling.
Shower room comprises, corner shower cubicle, wash hand basin and low level wc. Tiling to splash backs. Obscure double glazed window.
Beautifully presented rear garden commences with cobble stone design patio seating area. Shingled flower bed finished with railway sleeper edging leads to sunken pond with mature climbers over. Remaining garden is laid to lawn with stepping stones to rear. Fencing to boundaries. Outside lighting. Original garage used for storage with power connected. Large shed to remain. Side access gate.
Double garage measures 20'0 x 18'3 power connected.
Plenty of driveway parking to front for multiple vehicles.

Floor Plans

Property Location

Marketed by Fresh Property



By submitting this form, you accept our Terms of Use.

Disclaimer Property descriptions and related information displayed on this page are marketing materials provided by Fresh Property. estateagents365.uk does not warrant or accept any responsibility for the accuracy or completeness of the property descriptions or related information provided here and they do not constitute property particulars. Please contact Fresh Property for full details and further information.